+17 fotó
Hirdetéskód: 8844540
Referenciaszám: 391424
Feltöltve: 1 napja
Dunaharaszti eladó családi ház 5 szobás: 119,8 millió Ft
119,8 millió Ft
798 667 Ft/m²
150 m²
787 m²
5 szoba
Eladó családi ház Dunaharaszti, 150nm, 119.800.000Ft - Eötvös utca
Két önálló családi ház egy telken!
Összeköltözők, befektetők figyelmébe ajánlom!
Két generáció együttélésére alkalmas ingatlant kínálunk megvételre Dunaharaszti Óvárosi részén.
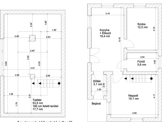
A 787 nm-es telken egy 95 nm-es és egy 55 nm-es önálló családi ház található.
Az 1. ház paraméterei: 2020-ban felújították,
- alapterülete nettó 95 nm,
- téglaépítésű, szigetelt, homlokzata fa dekor panelekkel burkolt,
- 2 rétegű műanyag nyílászárók,
- fűtése Hajdú 1000 literes 2 hőcserélős puffertartályról, radiátoros
hőleadással,
- nappaliban 9 Kw-os kandalló,
- 1 db hűtő-fűtő klima,
- riasztó rendszer.
Beosztása:
-földszint-
- előszoba,
- konyha+ ebédlő,
- hálószoba,
- kádas fürdőszoba+WC,
- nappali,
- az emeleten 1 szobát alakítottak ki.
- szuterén szinten kazánház 8nm, és a tároló 18,6nm található.
A 2. ház paraméterei: felújított, 80 %-ban kész,
- alapterülete nettó 55 nm,
- tégla és ytong falazattal, külső szigeteléssel,
- fa nyílászárókkal,
- 1 db hűtő-fűtő klíma.
Az udvarban gyűrűs kút van, öntözőrendszer előkészítve.
Az ingatlan elhelyezkedése kiváló. Iskola, óvoda, orvosi rendelő, HÉV- megálló gyalogosan néhány perc alatt elérhető.
Amivel segítjük az Ön ingatlanvásárlását:
- ingyenes hitelügyintézés,
- jogi háttér,
- földhivatali ügyintézés,
- energetikai tanúsítvány,
- a vevő számára az ingatlanközvetítés ingyenes.
Irodánk 30 éves szakmai tapasztalattal áll ügyfelei rendelkezésére!
Várom szíves megkeresését! ...TOVÁBBI, TÖBBEZRES INGATLAN KÍNÁLAT: www.gdn-ingatlan.hu - GDN azonosító: 391424
Tulajdonságok
Családi ház
2
Jó állapotú
Egyéb
1970
12 m²
Nem adta meg a hirdető
Vedd fel a kapcsolatot a hirdetővel
+36 70 269 5
Hitelkalkulátor
Második évtől
515 565 Ft A 13. hónaptól
7,99%
Végig fix Futamidő: 20 év Banki visszahívás
Az OTP Bank munkatársai a neked megfelelő napszakban veszik fel veled a kapcsolatot. A becslés a hirdető által megadott adatokon alapul. A jelen tájékoztatás nem minősül ajánlattételnek és nem teljes körű, az egyes feltételek a hitelbírálat eredményétől függően változhatnak. Kérjük, a részletekről tájékozódj az OTP Bank fiókjaiban vagy az OTP Bank honlapján közzétett vonatkozó Üzletszabályzatokból és Hirdetményekből.
Vedd fel a kapcsolatot a hirdetővel
+36 70 269 5
Vedd fel a kapcsolatot a hirdetővel
+36 70 269 5
UI_KIT.CHARACTER_COUNTER__COMPONENT.REMAINING_SPACE__SR_ONLYUI_KIT.CHARACTER_COUNTER__COMPONENT.MAXIMUM_CHARACTER__SR_ONLY
Hasonló eladó ingatlanok Óváros városrészben
Feltöltve: 3 napja
20
119,5 M Ft 919 231 Ft/m²
Eladó családi ház, Dunaharaszti, Óváros

Frissítve: 19 napja
20
129 M Ft 322 500 Ft/m²
Eladó családi ház, Dunaharaszti

Frissítve: 8 napja
20
109 M Ft 363 333 Ft/m²
Eladó családi ház, Dunaharaszti


Fedezd fel a
hasonló házakat!Még további házak Dunaharasztiban 119,8 M Ft körüli értékben
Tovább a hirdetésekhez Frissítve: 13 napja
5
128 M Ft 1 219 048 Ft/m²
Eladó sorház, Dunaharaszti, Csendes, parkos környezet

Frissítve: 1 napja
20
109 M Ft 363 333 Ft/m²
Eladó családi ház, Dunaharaszti

Frissítve: 19 napja
20
109 M Ft 363 333 Ft/m²
Eladó családi ház, Dunaharaszti

