+17 fotó
Hirdetéskód: 8898452
Referenciaszám: 392764
Frissítve: 9 napja
Dunaharaszti eladó családi ház 3 szobás: 125 millió Ft
125 millió Ft
1,15 millió Ft/m²
109 m²
1562 m²
3 szoba
Eladó családi ház Dunaharaszti, 109nm, 125.000.000Ft - Fő út
Eladó önálló családi ház nagy telekkel Dunaharasztiban!
Dunaharaszti frekventált részén az Óvárosban nettó 108,5 nm alapterületű, tégla építésű, önálló családi házat kínálunk megvételre 1562 nm-es telken.
A telek övezeti besorolása: LKe3.
Mérete: 25 x 62 méter.
Az ingatlan több lehetőséget rejt magában, korszerűsítés után kényelmes, élhető otthon lehet nagy telekkel.
Elhelyezkedése miatt vállalkozások számára is kiváló lehetőség
(régen kertészet működött itt).
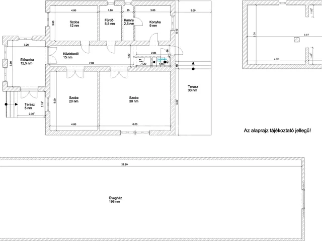
A ház beosztása:
- előszoba 12,5 nm,
- közlekedő 15 nm,
- szoba 12 nm,
- szoba 20 nm,
- szoba 30 nm,
- fürdőszoba 5,5 nm,
- WC 1,0 nm,
- kamra 2,5 nm,
- konyha 9,0 nm,
- padlásfeljáró 1,0 nm,
---------------------------------
összesen: 108,5 nm
+ terasz 33 nm,
+ terasz 5,0 nm,
+ pince 49,5 nm.
A udvarban található még, egy 198 nm-es üvegház, valamint egy tároló.
A telken fúrt kút van.
Minden közmű a házba bekötve.
Az ingatlan elhelyezkedése kiváló, HÉV- megálló a közelben.
Iskola, óvoda, bölcsöde gyalogosan néhány perc alatt elérhető.
Amivel segítjük az Ön ingatlanvásárlását:
- ingyenes hitelügyintézés,
- jogi háttér,
- földhivatali ügyintézés,
- energetikai tanúsítvány,
- a vevő számára az ingatlanközvetítés ingyenes.
Irodánk 30 éves szakmai tapasztalattal áll ügyfelei rendelkezésére!
Várom szíves megkeresését! ...TOVÁBBI, TÖBBEZRES INGATLAN KÍNÁLAT: www.gdn-ingatlan.hu - GDN azonosító: 392764
Tulajdonságok
Családi ház
1
Átlagos
Gáz (konvektor)
1970
38 m²
Nem adta meg a hirdető
Vedd fel a kapcsolatot a hirdetővel
+36 70 269 5
Hitelkalkulátor
Második évtől
537 943 Ft A 13. hónaptól
7,99%
Végig fix Futamidő: 20 év Banki visszahívás
Az OTP Bank munkatársai a neked megfelelő napszakban veszik fel veled a kapcsolatot. A becslés a hirdető által megadott adatokon alapul. A jelen tájékoztatás nem minősül ajánlattételnek és nem teljes körű, az egyes feltételek a hitelbírálat eredményétől függően változhatnak. Kérjük, a részletekről tájékozódj az OTP Bank fiókjaiban vagy az OTP Bank honlapján közzétett vonatkozó Üzletszabályzatokból és Hirdetményekből.
Vedd fel a kapcsolatot a hirdetővel
+36 70 269 5
Vedd fel a kapcsolatot a hirdetővel
+36 70 269 5
UI_KIT.CHARACTER_COUNTER__COMPONENT.ACTUAL_CHARACTER__SR_ONLY UI_KIT.CHARACTER_COUNTER__COMPONENT.MAXIMUM_CHARACTER__SR_ONLY
Hasonló eladó ingatlanok Óváros városrészben
Frissítve: 4 napja
20
115 millió Ft 884,6 ezer Ft/m²
Eladó családi ház, Dunaharaszti, Óváros

Frissítve: 24 napja
20
129 millió Ft 860 ezer Ft/m²
Eladó családi ház, Dunaharaszti, Óváros
Frissítve: 1 napja
20
134,9 millió Ft 531,1 ezer Ft/m²
Eladó családi ház, Dunaharaszti, Óváros


Fedezd fel a
hasonló házakat!Még további házak Dunaharasztiban 125 M Ft körüli értékben
Tovább a hirdetésekhez Frissítve: 9 napja
20
132,5 millió Ft 716,2 ezer Ft/m²
Eladó ikerház, Dunaharaszti, Óváros

Feltöltve: 8 napja
20
129,9 millió Ft 1,4 millió Ft/m²
Eladó ikerház, Dunaharaszti, Óváros
Frissítve: ma
20
129 millió Ft 322,5 ezer Ft/m²
Eladó családi ház, Dunaharaszti

