Hirdetéskód: 8905231
Frissítve: 1 hónapja
Dunakeszi eladó családi ház 5 szobás: 240 millió Ft
240 millió Ft
1 200 000 Ft/m²
200 m²
853 m²
5 szoba
DUNAKESZI- ÁRGARANCIA – REMEK KÖZLEKEDÉS - DUPLA GARÁZS – H-TARIFA- MAGAS MŰSZAKI TARTALOM
Dunakeszin a Kossuth utcában eladó egy új, önálló földszintes 200 nm-es családiház, 750-es telken
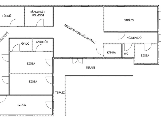
Helyiségek:
amerikai konyhás nappali, 4 szoba, közlekedő, háztartási helyiség, fürdő -kád, gardrób, fürdő – zuhanyzó, kamra, WC, előtér, nagygarázs, terasz
Az ingatlan téglából épül, 15 cm homlokzati szigetelést kap, hő – hangálló nyílászárók, A meleget hőszivattyú biztosítja a hőleadás padlófűtésen keresztül (padlófűtés helyett kérhető radiátor) történik.
Extrák:
H-tarifa, az egyik szobához külön fürdő és gardrób, dupla - fűtött garázs, antracit rejtett redőny, viacolor
Tervezőasztalos értékesítés!
A ház magas műszaki tartalommal készül, tervezésénél fő szempont volt az energiatakarékosság, ezért alacsony fenntartási költségekre lehet számítani. H-tarifa !
Ajándék:
hűtő - fűtő klíma, hogy a nyári melegben is kellemesen érezd magad
dupla - fűtött garázs - védi az utód az esőtől - hótól
H-tarifa - rendkívül alacsony rezsi mert a hőszivattyú is árammal működik
antracit, rejtett redőny - modern, prémium megjelenést ad a háznak, javítja az energiahatékonyságot és növeli az ingatlan értékét.
Nagyon jó közlekedés, közelben iskola, óvoda, boltok!
Várom hívását akár este 8-ig
Tulajdonságok
Családi ház
1
Új építésű
Hőszivattyú
2026
20 m²
A+
Vedd fel a kapcsolatot a hirdetővel
Ingatlanútjelző Az iroda összes hirdetése
+36 30 783 1
Hitelkalkulátor
Második évtől
1 032 851 Ft A 13. hónaptól
7,99% 8,49%
Végig fix Futamidő: 20 év Banki visszahívás
Az OTP Bank munkatársai a neked megfelelő napszakban veszik fel veled a kapcsolatot. A becslés a hirdető által megadott adatokon alapul. A jelen tájékoztatás nem minősül ajánlattételnek és nem teljes körű, az egyes feltételek a hitelbírálat eredményétől függően változhatnak. Kérjük, a részletekről tájékozódj az OTP Bank fiókjaiban vagy az OTP Bank honlapján közzétett vonatkozó Üzletszabályzatokból és Hirdetményekből.
Vedd fel a kapcsolatot a hirdetővel
Ingatlanútjelző Az iroda összes hirdetése
+36 30 783 1
Vedd fel a kapcsolatot a hirdetővel
Ingatlanútjelző Az iroda összes hirdetése
+36 30 783 1
UI_KIT.CHARACTER_COUNTER__COMPONENT.ACTUAL_CHARACTER__SR_ONLY UI_KIT.CHARACTER_COUNTER__COMPONENT.MAXIMUM_CHARACTER__SR_ONLY
Hasonló eladó ingatlanok Dunakeszin
Frissítve: 4 napja
18
234,9 M Ft 1 566 000 Ft/m²
Eladó ikerház, Dunakeszi

Frissítve: 4 napja
20
239 M Ft 995 833 Ft/m²
Eladó családi ház, Dunakeszi

Frissítve: 4 napja
16
258,5 M Ft 923 214 Ft/m²
Eladó családi ház, Dunakeszi


Fedezd fel a
hasonló házakat!Még további házak Dunakeszin 240 M Ft körüli értékben
Tovább a hirdetésekhez Frissítve: 3 napja
A hirdető törölte az ingatlanhirdetést
Frissítve: 4 napja
20
257 M Ft 1 502 924 Ft/m²
Eladó családi ház, Dunakeszi, Duna sor

Frissítve: 4 napja
20
239,9 M Ft 1 831 298 Ft/m²
Eladó családi ház, Dunakeszi

