+17 fotó
Hirdetéskód: 8816607
Referenciaszám: M317855-5101096
Feltöltve: 3 napja
Eger eladó családi ház 3 szobás: 149 millió Ft
149 millió Ft
1 211 382 Ft/m²
123 m²
164 m²
3 szoba
Eladó Ház, Eger
Heves vármegye, Eger belvárosnak közelében egy 140 m2-es elegáns és modern kényelmi megoldásokkal felszerelt családi ház eladó.
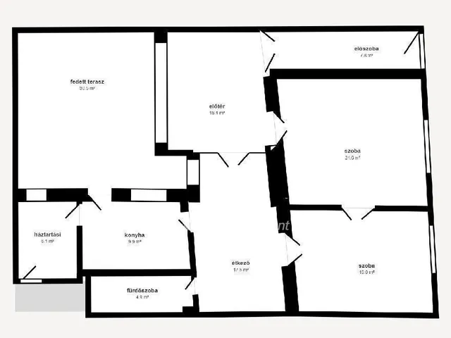
Az ingatlan a Deák Ferenc utcában található, rendezett környezetben. A házban előszoba, fényes nappali, 2 tágas hálószoba, étkező, konyha, zuhanyzós fürdőszoba WC-vel, valamint egy praktikus házimunka helyiség található, ahonnan a pince is megközelíthető. Az 50 m2-es, fűthető pince kis ablakkal rendelkezik, jelenleg klubszobaként van kialakítva. A házhoz tartozik továbbá egy 60 m2-es fedett terasz, amely ideális szabadtéri pihenésre és vendégfogadásra. A fürdőszoba járólappal, a többi helyiség pedig laminált padlóval burkolt. Az otthon melegét hőszivattyús rendszer biztosítja, alternatívaként gáz-cirkó és kályha is rendelkezésre áll.
Az ingatlan néhány éve jelentős felújításon esett át: hőszivattyús fűtési-hűtési rendszer kiépítése, 10 kW-os napelemrendszer telepítése a tetőre, a teljes villamos hálózat korszerűsítése, elektromos redőnyök, kamera-, riasztó- és beléptetőrendszer telepítése, az eredeti fa ablakokat felújítása, hőszigetelt üvegezéssel.
A ház előtt saját, 4-5 autó számára kényelmes parkoló áll rendelkezésre.
Az ingatlan minden részlete átgondolt, jól megtervezett és magas minőséget képvisel. Nemcsak családi háznak, de vendégháznak, elegáns orvosi rendelőnek vagy irodának is kiváló választás.
A ház jelenlegi berendezéssel együtt eladó, így akár azonnal költözhető. A bútorzat a vételár részét képezi, de igény esetén megállapodás tárgyát képezheti.
További információért hívjon bizalommal, akár hétvégén is. Ügyfeleink számára igény esetén kedvező hitellehetőséget, megbízható ügyvédi közreműködést és irodai hátteret biztosítunk a szerződéskötéshez. Kérem, érdeklődéskor hivatkozzon az M317855 számra.
Tulajdonságok
Családi ház
Felújított
Hőszivattyú
1950
Nem adta meg a hirdető
Vedd fel a kapcsolatot a hirdetővel
Nagy Krisztina OTPip - Miskolc Szemere Bertalan utca 20 - OTP Ingatlanpont Iroda Az iroda összes hirdetése
+36 70 886 0
Hitelkalkulátor
Második évtől
641 228 Ft A 13. hónaptól
7,99%
Végig fix Futamidő: 20 év Banki visszahívás
Az OTP Bank munkatársai a neked megfelelő napszakban veszik fel veled a kapcsolatot. A becslés a hirdető által megadott adatokon alapul. A jelen tájékoztatás nem minősül ajánlattételnek és nem teljes körű, az egyes feltételek a hitelbírálat eredményétől függően változhatnak. Kérjük, a részletekről tájékozódj az OTP Bank fiókjaiban vagy az OTP Bank honlapján közzétett vonatkozó Üzletszabályzatokból és Hirdetményekből.
Vedd fel a kapcsolatot a hirdetővel
Nagy Krisztina OTPip - Miskolc Szemere Bertalan utca 20 - OTP Ingatlanpont Iroda Az iroda összes hirdetése
+36 70 886 0
Vedd fel a kapcsolatot a hirdetővel
Nagy Krisztina OTPip - Miskolc Szemere Bertalan utca 20 - OTP Ingatlanpont Iroda Az iroda összes hirdetése
+36 70 886 0
UI_KIT.CHARACTER_COUNTER__COMPONENT.REMAINING_SPACE__SR_ONLYUI_KIT.CHARACTER_COUNTER__COMPONENT.MAXIMUM_CHARACTER__SR_ONLY
Hasonló eladó ingatlanok Egerben
Frissítve: 25 napja
8
155 M Ft 516 667 Ft/m²
Eladó egyéb ház, Eger

Frissítve: 12 napja
20
149 M Ft 573 077 Ft/m²
Eladó családi ház, Eger

Frissítve: 16 napja
20
150 M Ft 535 714 Ft/m²
Eladó családi ház, Eger


Fedezd fel a
hasonló házakat!Még további házak Egerben 149 M Ft körüli értékben
Tovább a hirdetésekhez Frissítve: 15 napja
20
149 M Ft 573 077 Ft/m²
Eladó családi ház, Eger

Frissítve: 12 napja
20
149 M Ft 573 077 Ft/m²
Eladó családi ház, Eger

Frissítve: 12 napja
20
149 M Ft 573 077 Ft/m²
Eladó családi ház, Eger


Töltsd fel hirdetésed ingyenesen!
Egyszerű