

+12 fotó
Hirdetéskód: 8746765
Referenciaszám: M295462-5030782
Feltöltve: 4 napja
Emőd eladó családi ház 2 szobás: 19 millió Ft
19 millió Ft
154 472 Ft/m²
123 m²
400 m²
2 szoba
Eladó Ház, Emőd
Fedezze fel Emőd fő utcáján ezt az egyedülálló INGATLANLEHETŐSÉGET!
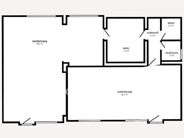
Eladásra kínálunk egy 120 m2 nagyságú épületet, amely REMEK ALKALMAT nyújt mindazoknak, akik családi otthont keresnek, üzlethelyiséget alakítanának ki, vagy BÁRMILYEN VÁLLALKOZÁS számára keresnek ideális helyszínt. Az ingatlan elhelyezkedése KIVÁLÓ, központi fekvése miatt gyorsan elérhető minden fontos helyszín.
Az épület számos előnnyel rendelkezik, amelyek vonzóvá teszik a BEFEKTETŐK és MAGÁNSZEMÉLYEK számára egyaránt. A friss, 2024-es TETŐFELÚJÍTÁS során újralecezést, fóliázást és a szarufák cseréjét végezték el, így a tetőszerkezet hosszú távon MEGBÍZHATÓ. A VÍZVEZETÉKEK és egyéb infrastruktúra szintén korszerűsítésen esett át, így a jövőbeni tulajdonos KORSZERŰ és JÓL MŰKÖDŐ rendszereket vehet birtokba.
Az épület vegyes falazata és VASTAG BETONALAPJA biztosítja a szerkezet stabilitását és a vizesedés kivédését. Az elektromos hálózat RÉZKÁBELLEL van szerelve, ráadásul éjszakai árammal rendelkezik, ami energiatakarékos üzemeltetést tesz lehetővé.
Mindezen felül a vele járó lehetőségek szinte végtelenek: a vizesblokk már elkészült, és különféle helyiségek kialakítására is van lehetőség, hogy az új tulajdonos IGÉNYEI SZERINT alakíthassa tovább a teret.
Finanszírozási megoldásokban teljes OTP BANKI TERMÉKPALLETÁNKKAL (Babaváró, CSOK, személyi kölcsön, lakáshitel) segítjük a vásárlása lebonyolítását, így az ingatlan megvásárlása könnyedén elérhetővé válik minden érdeklődő számára.
Ne hagyja ki ezt a sokoldalú, KIVÉTELES INGATLANLEHETŐSÉGET Emőd szívében! Az ingatlan referenciaszámával kapcsolatban és további információkért kérjük, vegye fel velünk a kapcsolatot! Referenciaszám: M295462
Tulajdonságok
Családi ház
Felújítandó
Egyéb
1960
Nem adta meg a hirdető
Vedd fel a kapcsolatot a hirdetővel
Klubert Gergő OTPip - Miskolc Szemere Bertalan utca 20 - OTP Ingatlanpont Iroda Az iroda összes hirdetése
+36 70 907 0
Hitelkalkulátor
Második évtől
81 767 Ft A 13. hónaptól
7,99%
Végig fix Futamidő: 20 év Banki visszahívás
Az OTP Bank munkatársai a neked megfelelő napszakban veszik fel veled a kapcsolatot. A becslés a hirdető által megadott adatokon alapul. A jelen tájékoztatás nem minősül ajánlattételnek és nem teljes körű, az egyes feltételek a hitelbírálat eredményétől függően változhatnak. Kérjük, a részletekről tájékozódj az OTP Bank fiókjaiban vagy az OTP Bank honlapján közzétett vonatkozó Üzletszabályzatokból és Hirdetményekből.
Vedd fel a kapcsolatot a hirdetővel
Klubert Gergő OTPip - Miskolc Szemere Bertalan utca 20 - OTP Ingatlanpont Iroda Az iroda összes hirdetése
+36 70 907 0
Vedd fel a kapcsolatot a hirdetővel
Klubert Gergő OTPip - Miskolc Szemere Bertalan utca 20 - OTP Ingatlanpont Iroda Az iroda összes hirdetése
+36 70 907 0
UI_KIT.CHARACTER_COUNTER__COMPONENT.REMAINING_SPACE__SR_ONLYUI_KIT.CHARACTER_COUNTER__COMPONENT.MAXIMUM_CHARACTER__SR_ONLY
Hasonló eladó ingatlanok Emődön
Frissítve: 24 napja

14
19 M Ft 154 472 Ft/m²
Eladó családi ház, Emőd

Frissítve: ma

14
19 M Ft 154 472 Ft/m²
Eladó családi ház, Emőd

Frissítve: 21 napja

14
19 M Ft 154 472 Ft/m²
Eladó családi ház, Emőd


Fedezd fel a
hasonló házakat!Még további házak Borsod-Abaúj-Zemplén megyében 19 M Ft körüli értékben
Tovább a hirdetésekhez Frissítve: 12 napja

14
19 M Ft 154 472 Ft/m²
Eladó családi ház, Emőd

Frissítve: 12 napja

14
19 M Ft 154 472 Ft/m²
Eladó családi ház, Emőd

Frissítve: 24 napja

15
19,9 M Ft 243 575 Ft/m²
Eladó családi ház, Emőd


Töltsd fel hirdetésed ingyenesen!
Egyszerű