

+2 fotó
Hirdetéskód: 8575401
Referenciaszám: U0048139
Frissítve: 8 napja
Enese eladó családi ház 4 szobás: 67 millió Ft
67 millió Ft
572 650 Ft/m²
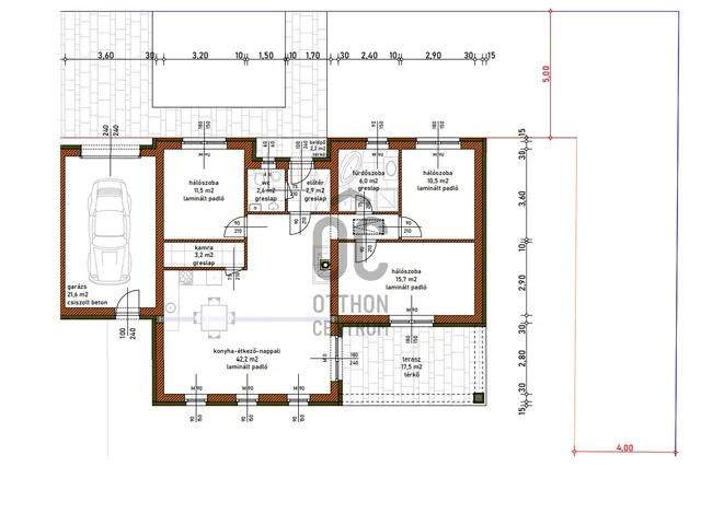
117 m²
600 m²
4 szoba
Nappali és 3 szoba + Garázs
KIZÁRÓLAG AZ OTTHON CENTRUMNÁL,
KIZÁRÓLAG NÁLAM!
Megannyi plusszal!
Olvasd végig mi mindennel adunk többet!
Enesén NEM AZ ÚJ részen, hanem, bent a faluban, kialakult, szép házak között eladó, ezen nappali és 3 szobás, TERASZOS, GARÁZSOS családi ház!
Ha végignézzük az Enesén hirdetett ingatlanokat akkor ezen összegig ikerházakat, vagy garázs nélküli ingatlanokat találunk, kisebb négyzetméterben.
Ezen ingatlan Fűtés készen kerül átadásra, és az ár a telekhányad árát is tartalmazza.
- Bekerített telek
- Fűtés kész állapot
- 30-as főfalakkal
- Aljzat szigetelés, homlokzati szigetelés, födémszigetelés
- 3 rétegű toktoldott műanyag nyílászárók,
- Szigetelt fa födém
- Helyben ácsolt tető
- Belső vakolás,
- Alap villanyszerelés
- Alap csőszerelés
- Gáz církó padlófűtéssel
- Kérheted hőszivattyúval is
- + 1 kémény cserépkályha/kandallónak benne van az árban!
- 3D kerítés
- Térkövezett bejárat
Nem csak a négyzetméter, a Garázs, a Terasz de még a sok minden plusz miatt ez egy kifejezetten kedvező ajánlat!
Kérdéseiddel, észrevételeiddel keressél bátran!
Köszönöm
Hitelre van szüksége? Tudunk segíteni!
Az Otthon Centrum az ország egyik legnagyobb és legmegbízhatóbb hitelközvetítőjeként, teljes körű és díjmentes hitelügyintézéssel, biztosításkötéssel áll rendelkezésére!
Kérje személyre szabott ajánlatunkat Kollégáinktól!
Tulajdonságok
Családi ház
Új építésű
Gázkazán
2025
17,5 m²
Nem adta meg a hirdető
Vedd fel a kapcsolatot a hirdetővel
+36 70 435 2
Hitelkalkulátor
Második évtől
288 337 Ft A 13. hónaptól
7,99% 8,49%
Végig fix Futamidő: 20 év Banki visszahívás
Az OTP Bank munkatársai a neked megfelelő napszakban veszik fel veled a kapcsolatot. A becslés a hirdető által megadott adatokon alapul. A jelen tájékoztatás nem minősül ajánlattételnek és nem teljes körű, az egyes feltételek a hitelbírálat eredményétől függően változhatnak. Kérjük, a részletekről tájékozódj az OTP Bank fiókjaiban vagy az OTP Bank honlapján közzétett vonatkozó Üzletszabályzatokból és Hirdetményekből.
Vedd fel a kapcsolatot a hirdetővel
+36 70 435 2
Vedd fel a kapcsolatot a hirdetővel
+36 70 435 2
UI_KIT.CHARACTER_COUNTER__COMPONENT.REMAINING_SPACE__SR_ONLYUI_KIT.CHARACTER_COUNTER__COMPONENT.MAXIMUM_CHARACTER__SR_ONLY
Hasonló eladó ingatlanok Enesén
Frissítve: 10 napja

2
64,66 M Ft 862 187 Ft/m²
Eladó családi ház, Enese

Frissítve: 17 napja

2
64,66 M Ft 718 489 Ft/m²
Eladó családi ház, Enese

Frissítve: 1 napja

2
64,66 M Ft 718 489 Ft/m²
Eladó családi ház, Enese


Fedezd fel a
hasonló házakat!Még további házak Győr-Moson-Sopron megyében 67 M Ft körüli értékben
Tovább a hirdetésekhez Frissítve: 1 napja

2
72,03 M Ft 960 333 Ft/m²
Eladó családi ház, Enese
Frissítve: 8 napja

16
62 M Ft 775 000 Ft/m²
Eladó sorház, Levél
Frissítve: 9 napja

20
68 M Ft 764 034 Ft/m²
Eladó családi ház, Hédervár


Töltsd fel hirdetésed ingyenesen!
Egyszerű