+13 fotó
Hirdetéskód: 8817629
Referenciaszám: 5069
Frissítve: 5 napja
Ercsi eladó családi ház 4 szobás: 59,9 millió Ft
59,9 millió Ft
658,2 ezer Ft/m²
91 m²
400 m²
4 szoba
Kód: 5069KE Újszerű állapot, N+3 szoba, terasz, fedett gk- beálló, 3 klíma, hangulatos kandalló
Hivatkozzon erre, kód: 5069KE
ÁRCSÖKKENÉS! 65mFt helyett 59.9mFt!
- ÚJSZERŰ ÁLLAPOT
- HANGULATOS ELEKTROMOS KANDALLÓ, CSENDES KÖRNYÉK
- NAPPALI + 3 SZOBA, TERASZ, 2 GK-S FEDETT BEÁLLÓ, SAJÁT KERT
Ercsi Központjához közel kb. 400m2 saját telekkel rendelkező nappali + 3 szobás, összesen nettó 91.11m2-es (teraszok felével + 2 gk-s fedett beálló), újszerű állapotban lévő ikerház jellegű családi ház (1-es épület) eladó.
NINCS KÖZÖS ÖSSZEÉRŐ FAL A LAKÁSOK KÖZÖTT!
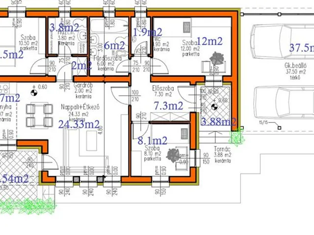
Az ingatlan felosztása a következőképpen alakul (nettó 81.9m2 + 18.42m2 teraszok + kb. 400m2 saját kert): elő - terasz - tornác (3.88m2), előszoba (7.30m2), nappali-étkező (24.33m2), konyha (5.97m2), háztartási helyiség (3.80m2), wc (1.90m2), fürdőszoba (6m2), közlekedő (2m2), 3 szoba (12m2, 10.50m2, 8.10m2), terasz (14.54m2).
Rövid műszaki ismertető: Beton alap. 30-as tégla főfalak, 10cm-es szigeteléssel. Ytong válaszfalak. Fa födém, 10cm üveggyapot szigeteléssel. A tető betoncserép fedésű, antracit színben. A nyílászárók műanyag szerkezetűek 3 rétegű szigetelt üvegezéssel.
Fűtés és meleg víz ellátás: jelenleg az ingatlan fűtését 3 db klíma látja el, de kiépítésre került a hőszivattyús rendszer is. A hőszivattyú beépítését a vételár nem tartalmazza, plusz költsége kb.3 millió Ft. A meleg víz ellátás Ariston villanybojlerről történik.
Az ingatlan frissen festve és a használatból eredő egyéb javítási munkálatok elvégzésével kerül átadásra!
Parkolás: 2gk-s fedett udvari beálló áll rendelkezésre.
Megközelíthetőség és infrastruktúra jó! Buszmegálló kb. 6 perc sétatávolságra található. Óvoda, iskola, bevásárlási lehetőség hamar elérhető!
További hasonló ingatlanok találhatók még a kínálatukban!
Szüksége van hitelre? SEGÍTÜNK!
Bankfüggetlen hitel tanácsadónk díjmentesen áll az Ön rendelkezésére! Keressen bizalommal!
A hirdetésben szereplő adatok, információk, képek, alaprajzok stb... tájékoztató jellegűek! Irodánk az esetleges elírásokért felelősséget nem tud vállalni!
Tájékoztatjuk a Tisztelt Érdeklődőket, hogy az ingatlan hirdetésében szereplő telefonszám felhívásával Önök hozzájárulnak személyes adataik (név, telefonszám), a hirdetést feladó -Otthonplusz.hu Kft. - által a bizalmas kezeléshez és nyilvántartáshoz.
Tulajdonságok
Családi ház
1
Újszerű
Elektromos
15 m²
Nem adta meg a hirdető
Vedd fel a kapcsolatot a hirdetővel
+36 20 976 7
Hitelkalkulátor
Második évtől
257 782 Ft A 13. hónaptól
7,99%
Végig fix Futamidő: 20 év Banki visszahívás
Az OTP Bank munkatársai a neked megfelelő napszakban veszik fel veled a kapcsolatot. A becslés a hirdető által megadott adatokon alapul. A jelen tájékoztatás nem minősül ajánlattételnek és nem teljes körű, az egyes feltételek a hitelbírálat eredményétől függően változhatnak. Kérjük, a részletekről tájékozódj az OTP Bank fiókjaiban vagy az OTP Bank honlapján közzétett vonatkozó Üzletszabályzatokból és Hirdetményekből.
Vedd fel a kapcsolatot a hirdetővel
+36 20 976 7
Vedd fel a kapcsolatot a hirdetővel
+36 20 976 7
UI_KIT.CHARACTER_COUNTER__COMPONENT.ACTUAL_CHARACTER__SR_ONLY UI_KIT.CHARACTER_COUNTER__COMPONENT.MAXIMUM_CHARACTER__SR_ONLY
Hasonló eladó ingatlanok Ercsiben
Frissítve: 4 napja
9
60 millió Ft 705,9 ezer Ft/m²
Eladó ikerház, Ercsi

Frissítve: 18 napja
18
54,9 millió Ft 762,5 ezer Ft/m²
Eladó családi ház, Ercsi

Frissítve: ma
20
64,9 millió Ft 690,4 ezer Ft/m²
Eladó családi ház, Ercsi


Fedezd fel a
hasonló házakat!Még további házak Ercsiben 59,9 M Ft körüli értékben
Tovább a hirdetésekhez Frissítve: 18 napja
20
63,5 millió Ft 311,3 ezer Ft/m²
Eladó családi ház, Ercsi

Frissítve: 18 napja
20
64,9 millió Ft 688,2 ezer Ft/m²
Eladó családi ház, Ercsi

Frissítve: 2 napja
18
54,9 millió Ft 762,5 ezer Ft/m²
Eladó családi ház, Ercsi

