+17 fotó
Zenga
Premier
Hirdetéskód: 8804489
Referenciaszám: M317284
Frissítve: 1 napja
Érd eladó családi ház 4 szobás: 114,9 millió Ft
114,9 millió Ft
999 131 Ft/m² *
* A m² árat a hirdető adta meg.
115 m²
685 m²
4 szoba

Friss hirdetések, amiket nem találsz meg más ingatlankereső portálon.
Fedezd fel elsőként a Zenga Premier címkés eladó ingatlanokat! További részletek A Duna House, OTP Ingatlanpont, Otthon Centrum és további hálózatok új, kizárólagos hirdetéseinek nagy részét a zenga.hu és koltozzbe.hu ingatlankeresőn láthatod legelőször, és a feltöltéstől két hétig nem érhetők el más ingatlankeresőn!
Leírás
NE keressen tovább! Egyszintes négyszobás családi ház, medencével, garázzsal,Érd csendes, de frekventált Dombosvárosi részén!?!?! Felesleges tovább olvasnia, hívjon és egyeztessünk!
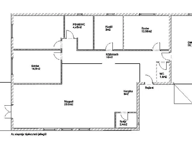
Eladó gondosan megtervezett, nappali + 3 szobás családi ház, amely egy csendes, 675 m2-es, összközműves saroktelken fekszik. A tökéletes DNY-i tájolás garantálja, hogy a kerti medence mellett töltött délutánok a legnaposabbak legyenek! Főbb Jellemzők és Extrák:
115 m2-es, Tágas Élettér: Egy valódi családi fészek, ahol a nappali és a 3 kényelmes hálószoba mindenki számára biztosítja a privát szférát.Két Fürdőszoba , dupla Komfortszint:
Szülői Master Bedroom: Saját, exkluzív fürdőszobával (zuhanyzó és kád), ami igazi luxus érzetet nyújt a mindennapokban.
Második Fürdőszoba: Zuhanyzóval és WC-vel felszerelt, a többi szoba kényelmét szolgálja.
Beépített Medence: A telek ékköve! A forró nyári napok garantált felfrissülése a saját, parkosított kertben.
Energiatakarékos Fűtés: Modern kondenzációs gázcirkó gondoskodik az otthon melegéről, lapradiátoros hőleadókkal. Alacsony rezsi, magas hatékonyság!
Kényelmi Funkciók: Műanyag nyílászárók redőnnyel és szúnyoghálóval felszerelve, a nyugodt éjszakákért és a rovarmentes szellőztetésért.
Fűtött ?Garázs: Az autó biztonságban tudható, közvetlen bejárattal a házba.
Ideális választás A CSENDES KERTES ÉLETET ÉS A KÖNNYŰ BUDAPESTI ELÉRHETŐSÉGET KERESŐ CSALÁDOK SZÁMÁRA!
Ne maradjon le erről a páratlan lehetőségről! Tekintse meg még ma, és kezdje meg az életét ott, ahol a nyaralás érzése a mindennapok része!Csendes mellékutcában,új építésű házak szomszédságában, infrastruktúra szempontjából is megfelelő helyen található, 1 km-en belül távolsági busz, bevásárlási lehetőség, különféle szolgáltató létesítmények, de autóval 5 perc alatt elérhető óvoda, iskola, játszótér. A ház finanszírozásához az OTP Bank vevőinket kedvezményes hitelkonstrukcióval támogatja, legyen az CSOK Plusz, babaváró, 3%-os OTTHON Start hitel. Az adásvételi szerződés megkötéséhez igény esetén megbízható ügyvédi közreműködést biztosítunk és segítséget nyújtunk az adásvételhez kapcsolódó ügyek intézéséhez. További információkért várom szeretettel megtisztelő érdeklődését a hét bármely napján!
Tulajdonságok
Családi ház
1
Átlagos
Gázkazán
2006
13,2 m²
Nem adta meg a hirdető
Vedd fel a kapcsolatot a hirdetővel
Pirik Róbert Budapest XX. kerület Vörösmarty utca 72-76 - OTP Ingatlanpont Iroda Az iroda összes hirdetése
+36 30 201 4
Hitelkalkulátor
Második évtől
494 477 Ft A 13. hónaptól
7,99%
Végig fix Futamidő: 20 év Banki visszahívás
Az OTP Bank munkatársai a neked megfelelő napszakban veszik fel veled a kapcsolatot. A becslés a hirdető által megadott adatokon alapul. A jelen tájékoztatás nem minősül ajánlattételnek és nem teljes körű, az egyes feltételek a hitelbírálat eredményétől függően változhatnak. Kérjük, a részletekről tájékozódj az OTP Bank fiókjaiban vagy az OTP Bank honlapján közzétett vonatkozó Üzletszabályzatokból és Hirdetményekből.
Vedd fel a kapcsolatot a hirdetővel
Pirik Róbert Budapest XX. kerület Vörösmarty utca 72-76 - OTP Ingatlanpont Iroda Az iroda összes hirdetése
+36 30 201 4
Vedd fel a kapcsolatot a hirdetővel
Pirik Róbert Budapest XX. kerület Vörösmarty utca 72-76 - OTP Ingatlanpont Iroda Az iroda összes hirdetése
+36 30 201 4
UI_KIT.CHARACTER_COUNTER__COMPONENT.REMAINING_SPACE__SR_ONLYUI_KIT.CHARACTER_COUNTER__COMPONENT.MAXIMUM_CHARACTER__SR_ONLY
Hasonló eladó ingatlanok Dombosváros városrészben
Frissítve: 4 napja
2
109 M Ft 726 667 Ft/m²
Eladó családi ház, Érd, Dombosváros
Frissítve: 5 napja
9
119 M Ft 1 081 819 Ft/m²
Eladó családi ház, Érd, Dombosváros

Frissítve: 4 napja
5
114,9 M Ft 883 846 Ft/m²
Eladó családi ház, Érd, Dombosváros

Fedezd fel a
hasonló házakat!Még további házak Érden 114,9 M Ft körüli értékben
Tovább a hirdetésekhez Frissítve: 1 hónapja
1
124,9 M Ft 1 040 833 Ft/m²
Eladó ikerház, Érd, Dombosváros
Frissítve: 1 hónapja
18
109,5 M Ft 805 147 Ft/m²
Eladó családi ház, Érd, Dombosváros
Frissítve: 4 napja
5
115 M Ft 821 429 Ft/m²
Eladó családi ház, Érd, Dombosváros

Töltsd fel hirdetésed ingyenesen!
Egyszerű