Hirdetéskód: 8569046
Referenciaszám: 104587
Frissítve: 23 napja
Érd eladó családi ház 4 szobás: 125 millió Ft
125 millió Ft
796 178 Ft/m²
157 m²
900 m²
4 szoba
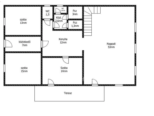
Leírás
"Eladó Érd-Parkvárosban egy építés alatt álló családi ház.
Az ingatlan jellemzői:
- Építés éve: 2024
- Telek mérete: 900 nm
- Ingatlan mérete: 157 nm
- Szobák száma: 4
- Nagy nappali és étkező
- 2 fürdőszoba
- Terasz
- Elektromos kapunyitás
- Padlófűtés, gázkazán
- Gardrób
- Fűtött garázs 2 gépkocsi számára
Autópálya és benzinkút 1 km-en belül található valamint Érd-Parkváros egyik legnagyobb bevásárlóközpontja szintén a közelben helyezkedik el. Az ingatlan környezetében óvoda, iskola, további üzletek, bankok, gyógyszertár széles választéka, pár percnyi közlekedéssel elérhetőek.
További információkért, kivitelezővel történő egyeztetéshez keressenek bizalommal.104587
"
Tulajdonságok
Családi ház
1
Új építésű
Gázkazán
Nem adta meg a hirdető
Vedd fel a kapcsolatot a hirdetővel
Németh István Bp. XIV Ilka utcai iorda Dr. Makkos - Bp. XIV. Ilka utcai franchise iroda Az iroda összes hirdetése
+36 70 326 4
Hitelkalkulátor
Második évtől
537 943 Ft A 13. hónaptól
7,99% 8,49%
Végig fix Futamidő: 20 év Banki visszahívás
Az OTP Bank munkatársai a neked megfelelő napszakban veszik fel veled a kapcsolatot. A becslés a hirdető által megadott adatokon alapul. A jelen tájékoztatás nem minősül ajánlattételnek és nem teljes körű, az egyes feltételek a hitelbírálat eredményétől függően változhatnak. Kérjük, a részletekről tájékozódj az OTP Bank fiókjaiban vagy az OTP Bank honlapján közzétett vonatkozó Üzletszabályzatokból és Hirdetményekből.
Vedd fel a kapcsolatot a hirdetővel
Németh István Bp. XIV Ilka utcai iorda Dr. Makkos - Bp. XIV. Ilka utcai franchise iroda Az iroda összes hirdetése
+36 70 326 4
Vedd fel a kapcsolatot a hirdetővel
Németh István Bp. XIV Ilka utcai iorda Dr. Makkos - Bp. XIV. Ilka utcai franchise iroda Az iroda összes hirdetése
+36 70 326 4
UI_KIT.CHARACTER_COUNTER__COMPONENT.REMAINING_SPACE__SR_ONLYUI_KIT.CHARACTER_COUNTER__COMPONENT.MAXIMUM_CHARACTER__SR_ONLY
Hasonló eladó ingatlanok Érden
Frissítve: 28 napja
20
129 M Ft 806 250 Ft/m²
Eladó családi ház, Érd

Frissítve: 28 napja
20
125 M Ft 892 857 Ft/m²
Eladó családi ház, Érd

Frissítve: 6 napja
2
135,9 M Ft 849 375 Ft/m²
Eladó családi ház, Érd

Fedezd fel a
hasonló házakat!Még további házak Érden 125 M Ft körüli értékben
Tovább a hirdetésekhez Frissítve: 27 napja
20
119,9 M Ft 658 791 Ft/m²
Eladó családi ház, Érd

Frissítve: 28 napja
20
126 M Ft 504 000 Ft/m²
Eladó családi ház, Érd

Frissítve: 4 napja
14
130 M Ft 650 000 Ft/m²
Eladó családi ház, Érd, Cserhalmi és Csobánci utca között utca

