+12 fotó
Hirdetéskód: 8936003
Referenciaszám: 393801
Feltöltve: ma
Erdőkertes eladó családi ház 4 szobás: 89,9 millió Ft
89,9 millió Ft
977 174 Ft/m²
92 m²
669 m²
4 szoba
Eladó családi ház Erdőkertes, 92nm, 89.900.000Ft - Dobó utca
Eladásra kínálok ERDŐKERTESEN egy 4 szobás családiházat.
A ház alapja körülbelül 1985-ben épült, amely tégla szerkezetű, és hozzá építésre került az elmúlt években egy könnyűszerkezetes rész is.
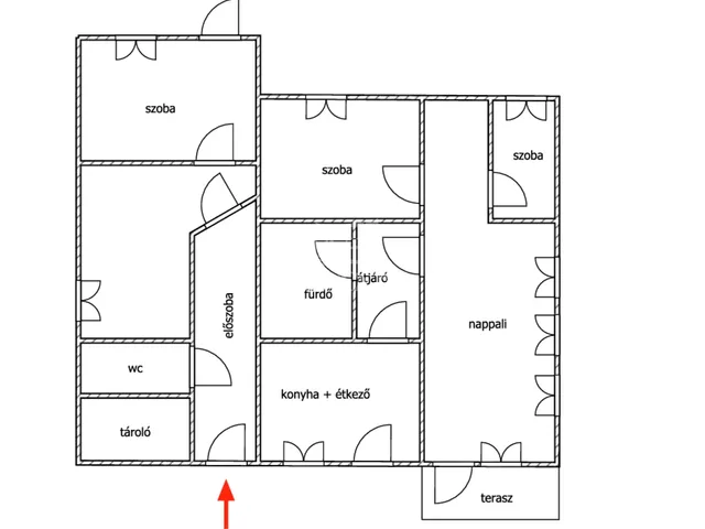
2 külön bejáratú lakás került kialakításra.
Az első, nagyobbik részen nappali, konyha, 2 hálószoba, és egy fürdőszoba található.
A második lakás egy szoba, folyosó, wc, és egy kis tusolós fürdőszoba.
Az udvar rendezett.
2 beállásos lemetózgarázs áll rednelkezésre, melnyek elektromos ajtaja van.
A ház fűtése: hőszivattyúval, és klímával történik.
Napelem 5 kw! 3 db hűtő-fűtő klíma!
Hívjon bizalommal, tekintsük meg együtt! ...TOVÁBBI, TÖBBEZRES INGATLAN KÍNÁLAT: www.gdn-ingatlan.hu - GDN azonosító: 393801
Tulajdonságok
Családi ház
1
Felújított
Hőszivattyú
1985
10 m²
Nem adta meg a hirdető
Van
Vedd fel a kapcsolatot a hirdetővel
+36 70 490 7
Hitelkalkulátor
Második évtől
386 889 Ft A 13. hónaptól
7,99%
Végig fix Futamidő: 20 év Banki visszahívás
Az OTP Bank munkatársai a neked megfelelő napszakban veszik fel veled a kapcsolatot. A becslés a hirdető által megadott adatokon alapul. A jelen tájékoztatás nem minősül ajánlattételnek és nem teljes körű, az egyes feltételek a hitelbírálat eredményétől függően változhatnak. Kérjük, a részletekről tájékozódj az OTP Bank fiókjaiban vagy az OTP Bank honlapján közzétett vonatkozó Üzletszabályzatokból és Hirdetményekből.
Vedd fel a kapcsolatot a hirdetővel
+36 70 490 7
Vedd fel a kapcsolatot a hirdetővel
+36 70 490 7
UI_KIT.CHARACTER_COUNTER__COMPONENT.ACTUAL_CHARACTER__SR_ONLY UI_KIT.CHARACTER_COUNTER__COMPONENT.MAXIMUM_CHARACTER__SR_ONLY
Hasonló eladó ingatlanok Erdőkertesen
Feltöltve: 10 napja
17
87,5 M Ft 688 976 Ft/m²
Eladó családi ház, Erdőkertes

Frissítve: 16 napja
1
84,9 M Ft 628 889 Ft/m²
Eladó családi ház, Erdőkertes
Frissítve: 7 hónapja
20
85 M Ft 574 324 Ft/m²
Eladó családi ház, Erdőkertes

Fedezd fel a
hasonló házakat!Még további házak Erdőkertesen 89,9 M Ft körüli értékben
Tovább a hirdetésekhez Frissítve: 2 hónapja
20
89,9 M Ft 881 373 Ft/m²
Eladó családi ház, Erdőkertes
Feltöltve: 22 napja
1
85 M Ft 708 333 Ft/m²
Eladó családi ház, Erdőkertes
Frissítve: 11 napja
20
89,9 M Ft 691 538 Ft/m²
Eladó családi ház, Erdőkertes


