+17 fotó
Hirdetéskód: 8806325
Referenciaszám: 390146
Frissítve: 9 napja
Etyek eladó családi ház 6 szobás: 74,99 millió Ft
74,99 millió Ft
490 131 Ft/m²
153 m²
722 m²
6 szoba
Eladó családi ház Etyek, 153nm, 74.990.000Ft - Alsóhegy utca
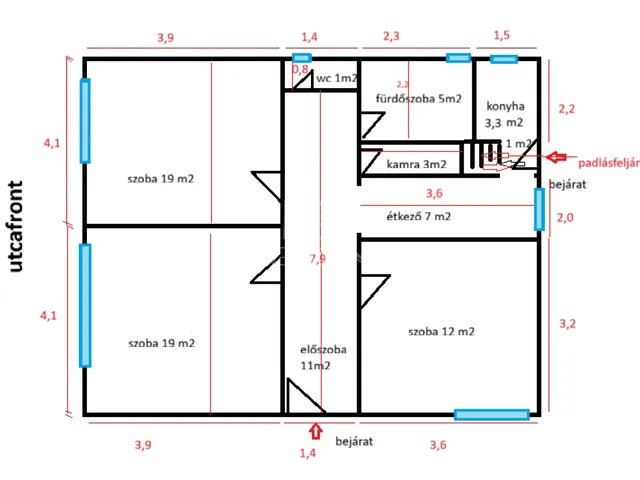
Etyeken, az Alsóhegy utcában eladó egy 153 m²-es, 6 szobás, felújítandó, téglaépítésű, cseréptetős családi ház, amely tökéletes alap egy modern, egyedi otthon kialakításához. ️
Fiataloknak, családoknak és befektetőknek is szuper választás!
Két generáció számára is ideális: két külön bejáratú lakrész, rengeteg lehetőséggel!
Befektetésnek is kiváló:
Az alsó lakrész könnyedén kiadható, éves szinten 1 800 000 – 1 900 000 Ft bevételt hozhat.
Etyeken nagy a kereslet, hiány van hosszútávra kiadó ingatlanokból, így gyorsan bérlőre talál! ️
Régi tipusú gázkazán
722 m²-es telek – ideális kerthez, pihenőhelyhez, játszórészhez
Összközműves, a telken garázs építhető
️ A kertben több autó is kényelmesen elfér, de az utcán és a ház előtt is lehet parkolni
Csendes, zöld környék, igazi békesziget
CSOK-ra és Otthon Start hitelre is alkalmas, így kiváló választás első otthonnak vagy nagyobb családnak is.
Fiatalos otthon, jó helyen, rengeteg lehetőséggel – csak rád vár!
Hétvégén és ünnepnapokon is felveszem a telefont, ha nem vagyok elérhető visszahívom! ...TOVÁBBI, TÖBBEZRES INGATLAN KÍNÁLAT: www.gdn-ingatlan.hu - GDN azonosító: 390146
Tulajdonságok
Családi ház
2
Felújítandó
Egyéb
1975
Nem adta meg a hirdető
Vedd fel a kapcsolatot a hirdetővel
+36 20 419 7
Hitelkalkulátor
Második évtől
322 723 Ft A 13. hónaptól
7,99%
Végig fix Futamidő: 20 év Banki visszahívás
Az OTP Bank munkatársai a neked megfelelő napszakban veszik fel veled a kapcsolatot. A becslés a hirdető által megadott adatokon alapul. A jelen tájékoztatás nem minősül ajánlattételnek és nem teljes körű, az egyes feltételek a hitelbírálat eredményétől függően változhatnak. Kérjük, a részletekről tájékozódj az OTP Bank fiókjaiban vagy az OTP Bank honlapján közzétett vonatkozó Üzletszabályzatokból és Hirdetményekből.
Vedd fel a kapcsolatot a hirdetővel
+36 20 419 7
Vedd fel a kapcsolatot a hirdetővel
+36 20 419 7
UI_KIT.CHARACTER_COUNTER__COMPONENT.ACTUAL_CHARACTER__SR_ONLY UI_KIT.CHARACTER_COUNTER__COMPONENT.MAXIMUM_CHARACTER__SR_ONLY
Hasonló eladó ingatlanok Etyeken
Frissítve: 7 napja
20
70 M Ft 464 068 Ft/m²
Eladó családi ház, Etyek

Frissítve: 9 napja
16
81,9 M Ft 644 882 Ft/m²
Eladó családi ház, Iszkaszentgyörgy

Frissítve: 9 napja
18
79,9 M Ft 719 820 Ft/m²
Eladó ikerház, Csór


Fedezd fel a
hasonló házakat!Még további házak Fejér megyében 74,99 M Ft körüli értékben
Tovább a hirdetésekhez Frissítve: 9 napja
20
75 M Ft 614 754 Ft/m²
Eladó családi ház, Csákberény

Frissítve: 9 napja
14
74,9 M Ft 823 077 Ft/m²
Eladó családi ház, Csór

Frissítve: 7 napja
20
68 M Ft 1 046 154 Ft/m²
Eladó családi ház, Ercsi

