+8 fotó
Hirdetéskód: 8867457
Referenciaszám: M319404-5134994
Frissítve: 1 hónapja
Fehérgyarmat eladó családi ház 2 szobás: 26,5 millió Ft
26,5 millió Ft
473 214 Ft/m²
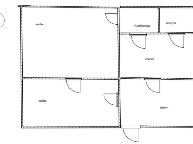
56 m²
1083 m²
2 szoba
Eladó Ház, Fehérgyarmat
Fehérgyarmat főutcáján eladó 2 szobás családi ház ? 1083?nm telek, felújítás alatt álló fürdőszoba, meleg otthon!
Fehérgyarmat központjában, főutcai elhelyezkedéssel, kínáljuk eladásra ezt a 2 szobás, családi házat, mely 1083?nm-es telken helyezkedik el. A ház felújítandó, de komfortos, a fürdőszoba éppen átmegy egy modern felújításon, így hamar használható, a ház többi részét pedig saját ízlésed szerint alakíthatod.
A fa nyílászárók kellemes hangulatot adnak, miközben hozzájárulnak a hőszigeteléshez, a gázkonvektor és a cserépkályha pedig biztosítja a kellemes meleget a hideg hónapokban. A tágas telek lehetőséget ad kert, konyhakert vagy akár garázs kialakítására.
Miért érdemes megvásárolni?
Akár azonnal lakható, vagy akár felújításra kész ? alakítsd saját ízlésed szerint
1083?nm-es telek ? kertkapcsolat, privát tér és szabad lehetőségek
Felújítás alatt álló fürdőszoba ? a komfort már biztosított
Meleg otthon: gázkonvektor + cserépkályha
Fa nyílászárók ? hangulatos és praktikus
remek belépő lehetőség első saját otthonhoz vagy befektetésre
Főutcai elhelyezkedés ? központi, mégis nyugodt környezet
Ajánljuk:
Családoknak, akik saját otthonukat szeretnék kialakítani
Befektetőknek, akik felújítanák és kiadnák
Első lakást vásárlóknak, akik központi, de nyugodt helyen keresnek otthont
Banki hátterünknek köszönhetően finanszírozási igényekben (pl. Otthon Start Hitelprogram , Babaváró, CSOK Plusz, Lakáshitel, Személyi kölcsön stb.), tekintetében is díjmentesen, soron kívüli ügyintézéssel segítem ügyfeleim! Ez a ház ideális választás mindazok számára, akik szeretnének egy saját ízlésre formálható vagy akár szinte azonnal költözhető költözhető otthont, ahol a külső megjelenést teljesen a saját stílusukra formálhatják.Kosvárosi életre vágyóknak, akik nagy kertet és kényelmes házat szeretnének
Referenciaszám: M319404
Tulajdonságok
Családi ház
Felújítandó
Gáz (konvektor)
1970
Nem adta meg a hirdető
Vedd fel a kapcsolatot a hirdetővel
Kissné Orosz Ildikó Krisztina OTPip - Nyíregyháza Bocskai utca 18-20 - OTP Ingatlanpont Iroda Az iroda összes hirdetése
+36 20 468 0
Hitelkalkulátor
Második évtől
114 044 Ft A 13. hónaptól
7,99%
Végig fix Futamidő: 20 év Banki visszahívás
Az OTP Bank munkatársai a neked megfelelő napszakban veszik fel veled a kapcsolatot. A becslés a hirdető által megadott adatokon alapul. A jelen tájékoztatás nem minősül ajánlattételnek és nem teljes körű, az egyes feltételek a hitelbírálat eredményétől függően változhatnak. Kérjük, a részletekről tájékozódj az OTP Bank fiókjaiban vagy az OTP Bank honlapján közzétett vonatkozó Üzletszabályzatokból és Hirdetményekből.
Vedd fel a kapcsolatot a hirdetővel
Kissné Orosz Ildikó Krisztina OTPip - Nyíregyháza Bocskai utca 18-20 - OTP Ingatlanpont Iroda Az iroda összes hirdetése
+36 20 468 0
Vedd fel a kapcsolatot a hirdetővel
Kissné Orosz Ildikó Krisztina OTPip - Nyíregyháza Bocskai utca 18-20 - OTP Ingatlanpont Iroda Az iroda összes hirdetése
+36 20 468 0
UI_KIT.CHARACTER_COUNTER__COMPONENT.ACTUAL_CHARACTER__SR_ONLY UI_KIT.CHARACTER_COUNTER__COMPONENT.MAXIMUM_CHARACTER__SR_ONLY
Hasonló eladó ingatlanok Fehérgyarmaton
Frissítve: 1 hónapja
15
26 M Ft 247 620 Ft/m²
Eladó családi ház, Fehérgyarmat

Frissítve: 8 napja
15
26 M Ft 247 619 Ft/m²
Eladó családi ház, Fehérgyarmat

Frissítve: 1 hónapja
11
26,5 M Ft 473 215 Ft/m²
Eladó családi ház, Fehérgyarmat


Fedezd fel a
hasonló házakat!Még további házak Szabolcs-Szatmár-Bereg megyében 26,5 M Ft körüli értékben
Tovább a hirdetésekhez Frissítve: 1 hónapja
15
26 M Ft 247 619 Ft/m²
Eladó családi ház, Fehérgyarmat

Frissítve: 1 napja
11
26,5 M Ft 473 214 Ft/m²
Eladó családi ház, Fehérgyarmat

Frissítve: 1 hónapja
20
25,8 M Ft 326 170 Ft/m²
Eladó családi ház, Fehérgyarmat

