+13 fotó
Hirdetéskód: 8928295
Feltöltve: 1 hónapja
Felsőszentiván eladó családi ház 2 szobás: 4,93 millió Ft
Figyelem! Az eladó euróban kívánja értékesíteni vagy kiadni az ingatlant. Ezért az általa megadott árat 385 Ft/EUR árfolyamon váltottuk át. Az ingatlan tényleges vételára a forintban bemutatott hirdetési ártól az aktuális árfolyam következtében eltérhet. A forintban megadott összeg tájékoztató jellegű.
4,93 millió Ft
109,5 ezer Ft/m²
12 800 Euro
284,44 Euro/m²
45 m²
332 m²
2 szoba
Bács-Kiskun vármegye Felsőszentiván településen felújítandó 45 m²-es családi ház eladó.
Bács-Kiskun vármegye Felsőszentiván településen felújítandó 45 m²-es családi ház eladó.
Ingatlan részletei:
Típus:Családi ház
Telek mérete:332m²
Elhelyezkedés: Bács-Kiskun vármegye, Felsőszentiván
Alapterület: 45 m²
Szobák száma: 2
Konyha: 1
Fürdőszobák száma: 0
Falazat: Tégla és vályog
Ingatlan leírása:
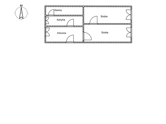
Az ingatlan Felsőszentiván központhoz közeli részén fekszik. Az ingatlan felújítandó. A házban két szoba konyha, kamra ,előszoba került kialakításra. Padlóburkolatok járólap. illetve PVC. Az ingatlanban a villanyhálózat és vízhálózat lett kiépítve, de régi.A külső nyílászárók cserélve lettek műanyagra egy ablak kivételével.A tető és a mennyezeti gerendák javításon estek át.
Külön épület:
Szoba: 12,7 m²
Szoba: 16 m²
Konyha: 5,5 m²
Kamra:4 m²
Előszoba:7,6m²
Összesen:45m²
A telken található egy fatároló és egy nyári konyha mely 3,9m2 .A terület be van kerítve.
Fűtés és meleg víz:
Az ingatlan fűtését kályha , a meleg víz nincs.
ár: 4.800.000 Ft
Ha érdekli az ingatlan, kérjük, lépjen kapcsolatba velünk az alábbi elérhetőségeken:
Elérhetőség:
Telefonszám: +36305090434
Email:juhaszk.ingatlan@gmail.com
· Whatsapp https://wa.me/36305090434 itt ingyenesen tud hívni illetve üzenetet küldeni!
Az ingatlan megtekintéséhez és további információkért hívjon bátran.
Tulajdonságok
Családi ház
1
Felújítandó
Kandalló
1972
F
Vedd fel a kapcsolatot a hirdetővel
JI
Juhász Ingatlan Az iroda összes hirdetése
+36 30 509 0
Vedd fel a kapcsolatot a hirdetővel
JI
Juhász Ingatlan Az iroda összes hirdetése
+36 30 509 0
Vedd fel a kapcsolatot a hirdetővel
JI
Juhász Ingatlan Az iroda összes hirdetése
+36 30 509 0
UI_KIT.CHARACTER_COUNTER__COMPONENT.ACTUAL_CHARACTER__SR_ONLY UI_KIT.CHARACTER_COUNTER__COMPONENT.MAXIMUM_CHARACTER__SR_ONLY
Hasonló eladó ingatlanok Felsőszentivánon
Frissítve: 21 napja
11
4,7 millió Ft 56,6 ezer Ft/m²
Eladó családi ház, Felsőszentiván

Frissítve: 6 hónapja
6
5,42 millió Ft 67,8 ezer Ft/m²
Eladó családi ház, Tiszaalpár, Vásárhelyi Pál utca 4.
Frissítve: 4 hónapja
13
4,9 millió Ft 96,1 ezer Ft/m²
Eladó családi ház, Jánoshalma, Zenta utca 14.

Fedezd fel a
hasonló házakat!Még további házak Bács-Kiskun megyében 12 800 Euro körüli értékben
Tovább a hirdetésekhez Frissítve: 1 hónapja
7
4,5 millió Ft 51,1 ezer Ft/m²
Eladó családi ház, Bácsalmás

Frissítve: 7 napja
4
4,5 millió Ft 56,3 ezer Ft/m²
Eladó családi ház, Szalkszentmárton, Duna utca

Frissítve: ma
3
4,9 millió Ft 81,7 ezer Ft/m²
Eladó családi ház, Tiszaug
