

+13 fotó
Hirdetéskód: 8458222
Referenciaszám: M282386-4889231
Frissítve: ma
Fonyód eladó családi ház 7+5 fél szobás: 129 millió Ft
129 millió Ft
379 412 Ft/m²
340 m²
786 m²
7+5 fél szoba
Eladó Ház, Fonyód
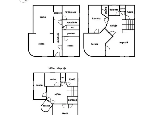
Megvételre kínálok a Balaton déli partján, Fonyódon egy 340 m2-es balatoni panorámás, kétgenerációs családi házat! A 2001-ben épült épület egy 786 m2-es, két utcáról megközelíthető intim telken fekszik Fonyód csendes, családi házas övezetében. A ház elosztása lehetővé teszi a kereskedelmi célú hasznosítást, illetve két generáció kényelmes, szeparált együttélését. A külön bejáratú földszinten 1 hálószoba, egy hatalmas egybenyitott nappali- háló, és egy kényelmes méretű fürdőszoba található. A hálókhoz gardróbszobák csatlakoznak. Az első emelet és a tetőtér egy lakótér. Itt egy kandallós nappali-étkező, egy szeparált konyha spájzzal, egy háló, gardrób és egy fürdőszoba található az első szinten, a tetőtérben pedig 3 hálószoba, egy kádas fürdőszoba és külön wc. Az első és második szinti teraszokról, az erre tájolt helyiségekből nyílik panoráma a Balaton felé. Az épület fűtését cirko kazán és kombi kazán adja padlófűtés hőleadással a földszinten és az első szinten, radiátorokkal a tetőtérben. Hűtésről az első emeleten 1, a másodikon 3 klíma gondoskodik. Parkolásra telken belül két autónak van lehetőség, a telek előtt 3-4 autó elfér, parkolódíj mentes övezetben. Óvoda, bölcsőde, általános iskola a közelben, a Balaton-part távolsága 2,5 km. Részletes információkért, megtekintésért kérem hívjon!
Tulajdonságok
Családi ház
Átlagos
Gázkazán
2001
Nem adta meg a hirdető
Vedd fel a kapcsolatot a hirdetővel
+36 70 942 4
Hitelkalkulátor
Második évtől
555 157 Ft A 13. hónaptól
7,99%
Végig fix Futamidő: 20 év Banki visszahívás
Az OTP Bank munkatársai a neked megfelelő napszakban veszik fel veled a kapcsolatot. A becslés a hirdető által megadott adatokon alapul. A jelen tájékoztatás nem minősül ajánlattételnek és nem teljes körű, az egyes feltételek a hitelbírálat eredményétől függően változhatnak. Kérjük, a részletekről tájékozódj az OTP Bank fiókjaiban vagy az OTP Bank honlapján közzétett vonatkozó Üzletszabályzatokból és Hirdetményekből.
Vedd fel a kapcsolatot a hirdetővel
+36 70 942 4
Vedd fel a kapcsolatot a hirdetővel
+36 70 942 4
UI_KIT.CHARACTER_COUNTER__COMPONENT.REMAINING_SPACE__SR_ONLYUI_KIT.CHARACTER_COUNTER__COMPONENT.MAXIMUM_CHARACTER__SR_ONLY
Hasonló eladó ingatlanok Fonyódon
Frissítve: 18 napja

20
119 M Ft 901 515 Ft/m²
Eladó családi ház, Fonyód

Frissítve: ma

15
140 M Ft 682 926 Ft/m²
Eladó családi ház, Fonyód

Frissítve: 1 napja

13
129 M Ft 629 268 Ft/m²
Eladó családi ház, Fonyód

Fedezd fel a
hasonló házakat!Még további házak Somogy megyében 129 M Ft körüli értékben
Tovább a hirdetésekhez Frissítve: 18 napja

20
124,99 M Ft 735 235 Ft/m²
Eladó családi ház, Fonyód

Frissítve: 17 napja

20
124,9 M Ft 466 045 Ft/m²
Eladó családi ház, Fonyód
Frissítve: 24 napja

14
124,9 M Ft 721 965 Ft/m²
Eladó családi ház, Fonyód

Töltsd fel hirdetésed ingyenesen!
Egyszerű