

+18 fotó
Zenga
Premier
Hirdetéskód: 8734103
Referenciaszám: M313718
Feltöltve: ma
Fót eladó családi ház 3+1 fél szobás: 142,5 millió Ft
142,5 millió Ft
2 035 715 Ft/m² *
* A m² árat a hirdető adta meg.
70 m²
364 m²
3+1 fél szoba

Friss hirdetések, amiket nem találsz meg más ingatlankereső portálon.
Fedezd fel elsőként a Zenga Premier címkés eladó ingatlanokat! További részletek A Duna House, OTP Ingatlanpont, Otthon Centrum és további hálózatok új, kizárólagos hirdetéseinek nagy részét a zenga.hu és koltozzbe.hu ingatlankeresőn láthatod legelőször, és a feltöltéstől két hétig nem érhetők el más ingatlankeresőn!
Leírás
Felújított családi ház Fót szívében! Napelemmel, garázzsal és varázslatos kerttel!
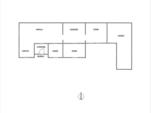
Eladásra kínálunk Fóton, központi elhelyezkedéssel egy teljeskörűen felújított, 110 m?-es családi házat, melynek része egy különálló, 40 nm- es garázs is. Az ingatlan egy 365 m?-es, parkosított telken található, ahol automata öntözőrendszer, napfényes terasz és gondosan ápolt, csodaszép kert várja új tulajdonosát. Főbb jellemzők: A nettó lakótér 70 nm, kívül-belül felújítva, két külön nyíló hálószoba, melyeket tágas gardróbhelyiség köt össze, világos nappali-étkező, különálló modern konyha, ízléses fürdőszoba káddal, beépített mosó- és szárítógéppel, praktikus tárolási lehetőségek, padlás, pince és garázs. A házon napelemrendszer található H tarifával, ez rendkívül alacsony rezsit eredményez. Teljesen fenntartható, gázmentes a ház, elektromos padlófűtés és hűtő-fűtő klíma biztosítja télen a meleget és nyáron a hűtést. A ház modern belső terekkel és minőségi burkolatokkal rendelkezik, így azonnal költözhető állapotban van. A kert ideális családoknak, pároknak, nyugodt pihenéshez vagy baráti összejövetelekhez, egy valódi oázis Fót központjában. Minden a közelben van, amire csak szükség lehet! Iskola, óvoda, boltok, tömegközlekedés.
Tulajdonságok
Családi ház
1
Átlagos
Gázkazán
1970
Nem adta meg a hirdető
Vedd fel a kapcsolatot a hirdetővel
Kromek Henriett Budapest III. kerület Lajos utca 74-76 - OTP Ingatlanpont Iroda Az iroda összes hirdetése
+36 20 569 7
Hitelkalkulátor
Második évtől
613 255 Ft A 13. hónaptól
7,99%
Végig fix Futamidő: 20 év Banki visszahívás
Az OTP Bank munkatársai a neked megfelelő napszakban veszik fel veled a kapcsolatot. A becslés a hirdető által megadott adatokon alapul. A jelen tájékoztatás nem minősül ajánlattételnek és nem teljes körű, az egyes feltételek a hitelbírálat eredményétől függően változhatnak. Kérjük, a részletekről tájékozódj az OTP Bank fiókjaiban vagy az OTP Bank honlapján közzétett vonatkozó Üzletszabályzatokból és Hirdetményekből.
Vedd fel a kapcsolatot a hirdetővel
Kromek Henriett Budapest III. kerület Lajos utca 74-76 - OTP Ingatlanpont Iroda Az iroda összes hirdetése
+36 20 569 7
Vedd fel a kapcsolatot a hirdetővel
Kromek Henriett Budapest III. kerület Lajos utca 74-76 - OTP Ingatlanpont Iroda Az iroda összes hirdetése
+36 20 569 7
UI_KIT.CHARACTER_COUNTER__COMPONENT.REMAINING_SPACE__SR_ONLYUI_KIT.CHARACTER_COUNTER__COMPONENT.MAXIMUM_CHARACTER__SR_ONLY
Hasonló eladó ingatlanok Fótújfalu városrészben
Frissítve: 11 napja

18
129,9 M Ft 705 978 Ft/m²
Eladó családi ház, Fót, Fótújfalu
Frissítve: 14 napja

1
129,9 M Ft 455 789 Ft/m²
Eladó családi ház, Fót, Fótújfalu
Frissítve: 6 napja

20
139,9 M Ft 756 216 Ft/m²
Eladó családi ház, Fót, Fótújfalu

Fedezd fel a
hasonló házakat!Még további házak Fóton 142,5 M Ft körüli értékben
Tovább a hirdetésekhez Frissítve: 14 napja

12
142,48 M Ft 1 295 273 Ft/m²
Eladó családi ház, Fót, Fótújfalu

Frissítve: 8 napja

8
144,5 M Ft 1 256 522 Ft/m²
Eladó ikerház, Fót, Fótújfalu
Frissítve: 16 napja

20
149,9 M Ft 499 667 Ft/m²
Eladó családi ház, Fót


Töltsd fel hirdetésed ingyenesen!
Egyszerű