

+18 fotó
Hirdetéskód: 8484282
Referenciaszám: M298309-4905747
Frissítve: ma
Gádoros eladó családi ház 4 szobás: 16 millió Ft
16 millió Ft
123 077 Ft/m²
130 m²
1457 m²
4 szoba
Eladó Ház, Gádoros
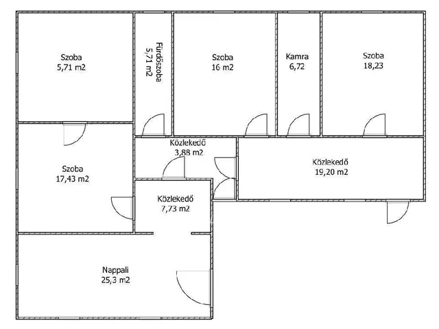
Eladásra kínálom Békés vármegyében Gádoroson, ezt a 1457 m2 es telken lévő 130 m2 -es házat. Az ingatlan korszerűsítésre szorul, így saját igényei szerint alakíthatja ki leendő otthonát! Fűtése gázkonvektoros, falazata vegyes. A házban található 4 szoba és egy nappali, konyha és fürdőszoba.
Közelben található bolt, étterem és buszmegálló is. Ideális nagy családosoknak, a vidéki nyugalom kedvelőinek!
Legyen Ön is megbízónk, és adja el rajtunk keresztül ingatlanát! Kedvező hitel ajánlatokkal (BABAVÁRÓ hitel, piaci hitel, és szabadfelhasználású hitel) várjuk jelentkezését. Számos konstrukció közül választhatnak. Irodáink Szentes, Petőfi utca 12. (a buszmegálló felől) és Csongrád, Fő utca 54. szám alatt várja a személyes érdeklődőket. ***VÁLASSZUK KI EGYÜTT AZ ÖNNEK LEGMEGFELELŐBB AJÁNLATOT BANKI SORBAN ÁLLÁS NÉLKÜL! ***
Referencia szám: M298309
Tulajdonságok
Családi ház
Felújítandó
Gáz (konvektor)
1950
Nem adta meg a hirdető
Vedd fel a kapcsolatot a hirdetővel
+36 30 375 5
Hitelkalkulátor
Második évtől
68 857 Ft A 13. hónaptól
7,99%
Végig fix Futamidő: 20 év Banki visszahívás
Az OTP Bank munkatársai a neked megfelelő napszakban veszik fel veled a kapcsolatot. A becslés a hirdető által megadott adatokon alapul. A jelen tájékoztatás nem minősül ajánlattételnek és nem teljes körű, az egyes feltételek a hitelbírálat eredményétől függően változhatnak. Kérjük, a részletekről tájékozódj az OTP Bank fiókjaiban vagy az OTP Bank honlapján közzétett vonatkozó Üzletszabályzatokból és Hirdetményekből.
Vedd fel a kapcsolatot a hirdetővel
+36 30 375 5
Vedd fel a kapcsolatot a hirdetővel
+36 30 375 5
UI_KIT.CHARACTER_COUNTER__COMPONENT.REMAINING_SPACE__SR_ONLYUI_KIT.CHARACTER_COUNTER__COMPONENT.MAXIMUM_CHARACTER__SR_ONLY
Hasonló eladó ingatlanok Gádoroson
Frissítve: 11 napja

20
16 M Ft 123 077 Ft/m²
Eladó családi ház, Gádoros

Frissítve: 18 napja

7
16,3 M Ft 232 857 Ft/m²
Eladó családi ház, Gádoros
Feltöltve: 1 hónapja

1
16,5 M Ft 137 500 Ft/m²
Eladó családi ház, Gádoros

Fedezd fel a
hasonló házakat!Még további házak Békés megyében 16 M Ft körüli értékben
Tovább a hirdetésekhez Frissítve: 14 napja

13
15 M Ft 150 000 Ft/m²
Eladó családi ház, Gádoros, Munkácsy Mihály utca

Frissítve: ma

13
15 M Ft 150 000 Ft/m²
Eladó családi ház, Gádoros

Frissítve: 1 éve

17
15 M Ft 100 000 Ft/m²
Eladó családi ház, Sarkad

Töltsd fel hirdetésed ingyenesen!
Egyszerű