+17 fotó
Hirdetéskód: 8775936
Referenciaszám: M315222-5078225
Frissítve: 23 napja
Gárdony eladó családi ház 3+2 fél szobás: 94,9 millió Ft
94,9 millió Ft
510 215 Ft/m²
186 m²
646 m²
3+2 fél szoba
Eladó Ház, Gárdony
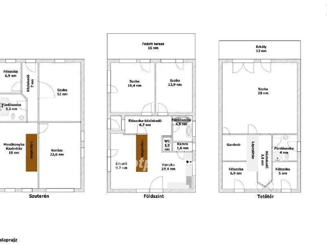
Fejér megye, Gárdony 186 nm-es családi ház eladó. A szigetelt, tégla falazatú lakóingatlan Gárdony központjától séta távolságra, mégis egy csendes, barátságos utcában egy 646 nm-es parkosított telken helyezkedik el. A felújított családi ház lakóterülete 115 nm (földszint + tetőtér), ezenfelül a szuterén 69,7 nm, a terasz 15 nm és az erkély 12 nm. A földszinten nappali, 1 szoba, konyha, étkező, kamra, fürdőszoba, külön WC található, valamint tartozik hozzá egy fedett terasz. A tetőtérben egy tágas szoba (két szobává alakítható), 2 félszoba, fürdőszoba, valamint egy erkély található. A szuterén részben 1 szoba, 1 félszoba, kazánház, garázs és fürdőszoba kapott helyet. A rendezett kertben tűzrakó beépített bográcsállvánnyal és egy nagy méretű melléképület található. A tetőtér a földszintről és külső feljáróval is megközelíthető. Az ingatlan alkalmas több generáció együttélésére, kiadásra, vagy akár a szuterén részen kialakítható üzlethelyiség is. A fűtésről kondenzációs gázkazán radiátoros hőleadással, hűtő fűtő klíma és elektromos panelek is gondoskodnak. A meleg vizet 120 literes gázbojler szolgáltatja, mely átköthető a kondenzációs gázkazánra. A felújítás során cserélték az összes külső nyílászárót 3 rétegű műanyagra, melyek szúnyoghálóval ellátottak, az utcafronti ablakok pedig redőnnyel is felszereltek. A felújítás során az épület 14 cm-es homlokzati, 10 cm-es lábazati szigetelést, új műanyag nyílászárókat, burkolatokat, konyhát kapott, cserélték a teljes elektromos hálózatot. Séta távolságra óvoda, iskola, orvosi rendelő, posta, bevásárlási lehetőségek, a vasútállomás és a tópart 15 perces sétával elérhető. Nyugodt, biztonságos környék, átmenőforgalomtól mentes utcában. Amennyiben felkeltette az érdeklődését, további kérdések esetén várom hívását, akár hétvégén is! Kedvezményes kamatú hitellel, teljes körű ügyintézéssel segítjük ügyfeleinket díjtalanul, az adásvétel és ingatlanátírás teljes lebonyolításával.
Tulajdonságok
Családi ház
Jó állapotú
Gázkazán
1984
Nem adta meg a hirdető
Vedd fel a kapcsolatot a hirdetővel
+36 30 259 2
Hitelkalkulátor
Második évtől
408 406 Ft A 13. hónaptól
7,99%
Végig fix Futamidő: 20 év Banki visszahívás
Az OTP Bank munkatársai a neked megfelelő napszakban veszik fel veled a kapcsolatot. A becslés a hirdető által megadott adatokon alapul. A jelen tájékoztatás nem minősül ajánlattételnek és nem teljes körű, az egyes feltételek a hitelbírálat eredményétől függően változhatnak. Kérjük, a részletekről tájékozódj az OTP Bank fiókjaiban vagy az OTP Bank honlapján közzétett vonatkozó Üzletszabályzatokból és Hirdetményekből.
Vedd fel a kapcsolatot a hirdetővel
+36 30 259 2
Vedd fel a kapcsolatot a hirdetővel
+36 30 259 2
UI_KIT.CHARACTER_COUNTER__COMPONENT.REMAINING_SPACE__SR_ONLYUI_KIT.CHARACTER_COUNTER__COMPONENT.MAXIMUM_CHARACTER__SR_ONLY
Hasonló eladó ingatlanok Gárdonyban
Frissítve: 24 napja
18
99 M Ft 582 353 Ft/m²
Eladó családi ház, Gárdony

Frissítve: 24 napja
18
99 M Ft 582 353 Ft/m²
Eladó családi ház, Gárdony

Frissítve: 10 napja
27
88,9 M Ft 1 111 250 Ft/m²
Eladó ikerház, Gárdony


Fedezd fel a
hasonló házakat!Még további házak Gárdonyban 94,9 M Ft körüli értékben
Tovább a hirdetésekhez Frissítve: 3 napja
10
98 M Ft 942 308 Ft/m²
Eladó családi ház, Gárdony

Frissítve: 20 napja
18
99 M Ft 582 353 Ft/m²
Eladó családi ház, Gárdony

Frissítve: 2 hónapja
1
94,9 M Ft 593 125 Ft/m²
Eladó családi ház, Gárdony

