+5 fotó
Hirdetéskód: 8805792
Referenciaszám: 4659
Frissítve: 1 napja
Göd eladó családi ház 4 szobás: 139,9 millió Ft
139,9 millió Ft
1 146 721 Ft/m²
122 m²
511 m²
4 szoba
4659: Új építésű, földszintes, dupla-komfortos, családi házak eladók Gödön!
Új építésű, földszintes, dupla-komfortos, családi házak eladók Gödön!
CÉGES ÉPÍTKEZÉS, a 2024-től aktuális állami támogatások valamint kedvezményes, kamattámogatott hitelek felvehetőek – akár a 3%-os OTTHON START hitel, CSOK PLUS, babaváró is igényelhető, az ügyintézésben díjmentesen segítünk!
Az építő munkájára jellemző a megbízhatóság és igényesség, leinformálható, referencia házai megtekinthetők.
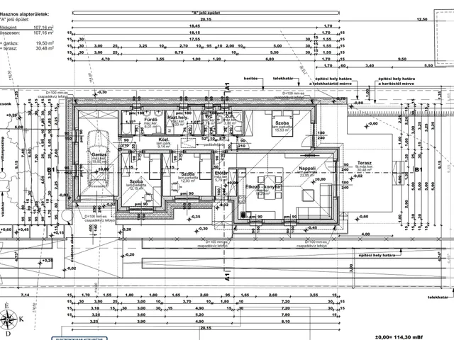
Göd középső részén 1023 nm-es telekre épülő, amerikai konyhás nappali + 3 szobás elrendezésű, DUPLA-KOMFORTOS, FÖLDSZINTES, családi házak eladók.
A házak elrendezése azonos, 122 nm alapterülettel rendelkeznek, ebből a lakótér 107,16 nm + terasz 30,48 nm + garázs 19,5 nm.
Az ingatlan 30-as PTH téglából épül, grafitos homlokzati hőszigeteléssel.
A tető Bramac beton cseréppel lesz fedett.
Műanyag szerkezetű, 3 rétegű hőszigetelő üvegezéssel ellátott nyílászárók kerülnek beépítésre.
Fűtésről és használati meleg vízellátásról hőszivattyú fog gondoskodni, a hő leadás az egész lakótérben padlófűtéssel történik.
Belső ajtók, burkolatok választhatók, a belső műszaki tartalomban megjelölt összegig a vételár részét képezik.
Az ingatlan kulcsrakész állapotban kerül átadásra, konyhabútor nélkül.
Köszönjük, hogy megtisztel bizalmával, és irodánkat választja új otthona kiválasztására. Tapasztalt és felkészült kollégáink segítenek Önnek akár a hétvégén is.
Ha esetleg még nem sikerült eladni ingatlanát, kedvezményes feltételekkel vállaljuk annak értékesítését!
Ára: 139.900.000.- Ft
Azonosító: 4659
Tulajdonságok
Családi ház
1
Új építésű
Hőszivattyú
2025
30 m²
Nem adta meg a hirdető
Vedd fel a kapcsolatot a hirdetővel
+36 70 418 1
Hitelkalkulátor
Második évtől
602 066 Ft A 13. hónaptól
7,99% 8,49%
Végig fix Futamidő: 20 év Banki visszahívás
Az OTP Bank munkatársai a neked megfelelő napszakban veszik fel veled a kapcsolatot. A becslés a hirdető által megadott adatokon alapul. A jelen tájékoztatás nem minősül ajánlattételnek és nem teljes körű, az egyes feltételek a hitelbírálat eredményétől függően változhatnak. Kérjük, a részletekről tájékozódj az OTP Bank fiókjaiban vagy az OTP Bank honlapján közzétett vonatkozó Üzletszabályzatokból és Hirdetményekből.
Vedd fel a kapcsolatot a hirdetővel
+36 70 418 1
Vedd fel a kapcsolatot a hirdetővel
+36 70 418 1
UI_KIT.CHARACTER_COUNTER__COMPONENT.REMAINING_SPACE__SR_ONLYUI_KIT.CHARACTER_COUNTER__COMPONENT.MAXIMUM_CHARACTER__SR_ONLY
Hasonló eladó ingatlanok Gödön
Frissítve: 15 napja
20
139 M Ft 463 333 Ft/m²
Eladó családi ház, Göd

Frissítve: 5 napja
18
138 M Ft 460 000 Ft/m²
Eladó családi ház, Göd

Frissítve: 6 napja
20
147 M Ft 668 182 Ft/m²
Eladó családi ház, Göd, Honvéd sor


Fedezd fel a
hasonló házakat!Még további házak Gödön 139,9 M Ft körüli értékben
Tovább a hirdetésekhez Frissítve: 6 napja
7
139 M Ft 604 348 Ft/m²
Eladó családi ház, Göd
Frissítve: 24 napja
20
134 M Ft 446 667 Ft/m²
Eladó családi ház, Göd

Frissítve: 25 napja
20
147 M Ft 668 182 Ft/m²
Eladó családi ház, Göd


Töltsd fel hirdetésed ingyenesen!
Egyszerű