+17 fotó
Hirdetéskód: 8822763
Referenciaszám: 389062
Feltöltve: ma
Gödöllő eladó családi ház 8 szobás: 290 millió Ft
290 millió Ft
1 183 673 Ft/m²
245 m²
1450 m²
8 szoba
Eladó családi ház Gödöllő, 245nm, 290.000.000Ft - Százszorszép utca
Eladásra kínálok Gödöllő kedvelt, kertvárosias részén, egy 7 szobás, földszint+beéíptett tetőteres családi házat.
Szerkezete: tégla 36 cm Porotherm.
Tető: sátor tető, cserép fedéssel.
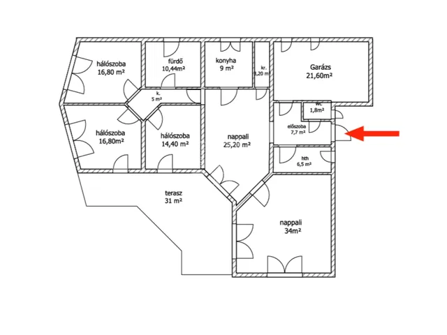
Felosztása:
- földszint (150 nm): előszoba, fürdőszoba, wc, amerikai konyhás nappali,spájz, közlekedő, 5 hálószoba.
- tetőtér (98 nm)r: közlekedő, konyha, fürdőszoba, wc, 2 hálószoba.
A nappaliból a beépített (téli kert szerű) teraszra érkezünk ki, amely hozzávetőleg 30 nm nagyságú.
Extrák: udvarban egy különálló kis ház található, ahol elektromosság került bevezetésre, szintén tégla épület.
Saját garázs. Kertben szaleti.
6 db hűtő fűtő klíma.
Riasztórendszer.
2 elektromos nagykapu.
Locsolórendszer.
Redőny, szúnyoghálóval.
5 éve komplett villany és vízvezeték felújítás, tetőtér beépítésére is ekkor került sor.
A fűtésről a kondenzáció gázkazán gondoskodik. Padlófűtéses hőleadással.
Hívjon bizalommal, tekintsük meg együtt! ...TOVÁBBI, TÖBBEZRES INGATLAN KÍNÁLAT: www.gdn-ingatlan.hu - GDN azonosító: 389062
Tulajdonságok
Családi ház
2
Felújított
Gázkazán
2004
30 m²
Nem adta meg a hirdető
Vedd fel a kapcsolatot a hirdetővel
+36 70 490 7
Hitelkalkulátor
Második évtől
1 248 028 Ft A 13. hónaptól
7,99%
Végig fix Futamidő: 20 év Banki visszahívás
Az OTP Bank munkatársai a neked megfelelő napszakban veszik fel veled a kapcsolatot. A becslés a hirdető által megadott adatokon alapul. A jelen tájékoztatás nem minősül ajánlattételnek és nem teljes körű, az egyes feltételek a hitelbírálat eredményétől függően változhatnak. Kérjük, a részletekről tájékozódj az OTP Bank fiókjaiban vagy az OTP Bank honlapján közzétett vonatkozó Üzletszabályzatokból és Hirdetményekből.
Vedd fel a kapcsolatot a hirdetővel
+36 70 490 7
Vedd fel a kapcsolatot a hirdetővel
+36 70 490 7
UI_KIT.CHARACTER_COUNTER__COMPONENT.REMAINING_SPACE__SR_ONLYUI_KIT.CHARACTER_COUNTER__COMPONENT.MAXIMUM_CHARACTER__SR_ONLY
Hasonló eladó ingatlanok Fenyves városrészben
Frissítve: 27 napja
20
299 M Ft 911 585 Ft/m²
Eladó családi ház, Gödöllő, Fenyves, Ottlik Géza utca

Frissítve: ma
20
279 M Ft 955 479 Ft/m²
Eladó családi ház, Gödöllő

Frissítve: ma
20
280 M Ft 833 333 Ft/m²
Eladó családi ház, Gödöllő


Fedezd fel a
hasonló házakat!Még további házak Pest megyében 290 M Ft körüli értékben
Tovább a hirdetésekhez Frissítve: 18 napja
20
279 M Ft 955 479 Ft/m²
Eladó családi ház, Gödöllő

Frissítve: 18 napja
20
280 M Ft 833 333 Ft/m²
Eladó családi ház, Gödöllő

Frissítve: 30 napja
20
279 M Ft 955 479 Ft/m²
Eladó családi ház, Gödöllő


Töltsd fel hirdetésed ingyenesen!
Egyszerű
