+17 fotó
Hirdetéskód: 8871274
Referenciaszám: 391628
Frissítve: 1 napja
Gödöllő eladó családi ház 3 szobás: 116,9 millió Ft
116,9 millió Ft
899 231 Ft/m²
130 m²
500 m²
3 szoba
Eladó családi ház Gödöllő, 130nm, 116.900.000Ft - Eperjes utca
Eladásra kínálok Gödöllő kertvárosi részén egy önálló, felújított (2024.) családi házat.
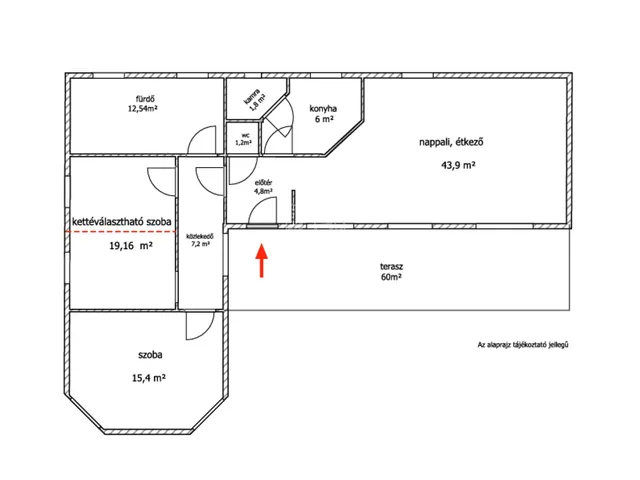
Felosztása: amerikai konyhás nappali, 2 hálószoba, előtér, nagy méretű fürdőszoba mosdóval, különálló mosdó, spájz.
Mindezt 60 nm fedett terasz szegélyezi.
A házhoz 500 nm saját kert tartozik, az utcafront felől, előkerttel helyezkedik el. Az eredeti nagy méretű telek hátsó részén, egy nyaktaggal csatlakozó (ikresített) másik ház keül megépítésre, amely szintén önálló udvarral fog rendelkezni. és 4 méter széleskocsibejáró a megvételre kínált ház hátljánál fog húzódni, így biztosítva az intimitást.
Falazata 30-as téglából készült, amelyre 5cm dryvit került, az ablakok 3 rétegű favázas thermo üvegesek, elektromos redőnyökkel felszereltek, tetőszerkezete agyag cseréppel fedett, a födém szigetelve van.
Felújítása során prémium minőségű burkolatok, új nyílászárók, víz- és villanyvezetékek (+elosztódoboz) kerültek beépítésre. Az alap- és a szerelőbeton újra lett öntve, az aljzatot pedig 12cm vastag szigeteléssel, hőtükrös fóliával látták el. Falakat újra glettelték, festették és a helyiségek beépített gipszkarton állmennyezetet is kaptak LED világítással.
Fűtés: gázkazán
Melegvíz ellátás: villanybojler 120 l nagyságú.
Extrák:
- kamerarendszer
- riasztó
- 4 db klíma (2*6 és 2*3,5 kw)
- gondozásmentes alumínium kerítés, elektromos kapuval.
- locsolórendszer.
Mind autóval, mind gyalog kivló közlekedéssel bír.
Közelben bolt, iskola, óvoda, parkok, és minden, ami a mindennapi életvitelhez szükséges!
Birtokbavétel rövid határidővel!
Tekintsük meg együtt! ...TOVÁBBI, TÖBBEZRES INGATLAN KÍNÁLAT: www.gdn-ingatlan.hu - GDN azonosító: 391628
Tulajdonságok
Családi ház
1
Felújított
Gázkazán
1995
60 m²
Nem adta meg a hirdető
Vedd fel a kapcsolatot a hirdetővel
+36 70 490 7
Hitelkalkulátor
Második évtől
503 084 Ft A 13. hónaptól
7,99%
Végig fix Futamidő: 20 év Banki visszahívás
Az OTP Bank munkatársai a neked megfelelő napszakban veszik fel veled a kapcsolatot. A becslés a hirdető által megadott adatokon alapul. A jelen tájékoztatás nem minősül ajánlattételnek és nem teljes körű, az egyes feltételek a hitelbírálat eredményétől függően változhatnak. Kérjük, a részletekről tájékozódj az OTP Bank fiókjaiban vagy az OTP Bank honlapján közzétett vonatkozó Üzletszabályzatokból és Hirdetményekből.
Vedd fel a kapcsolatot a hirdetővel
+36 70 490 7
Vedd fel a kapcsolatot a hirdetővel
+36 70 490 7
UI_KIT.CHARACTER_COUNTER__COMPONENT.ACTUAL_CHARACTER__SR_ONLY UI_KIT.CHARACTER_COUNTER__COMPONENT.MAXIMUM_CHARACTER__SR_ONLY
Hasonló eladó ingatlanok Gödöllőn
Frissítve: 6 napja
20
123,9 M Ft 774 375 Ft/m²
Eladó családi ház, Gödöllő

Frissítve: 7 napja
3
115 M Ft 1 095 238 Ft/m²
Eladó ikerház, Gödöllő
Frissítve: 7 napja
10
115 M Ft 1 210 526 Ft/m²
Eladó ikerház, Gödöllő

Fedezd fel a
hasonló házakat!Még további házak Gödöllőn 116,9 M Ft körüli értékben
Tovább a hirdetésekhez Frissítve: 8 napja
15
106 M Ft 1 060 000 Ft/m²
Eladó családi ház, Gödöllő

Frissítve: 18 napja
17
105,5 M Ft 1 110 526 Ft/m²
Eladó családi ház, Gödöllő

Feltöltve: 1 napja
20
123,9 M Ft 774 375 Ft/m²
Eladó családi ház, Gödöllő

