+2 fotó
Hirdetéskód: 8943317
Referenciaszám: HZ045641-5180159
Frissítve: 5 napja
Gomba eladó családi ház 5 szobás: 127 millió Ft
127 millió Ft
920,3 ezer Ft/m²
138 m²
1000 m²
5 szoba
Eladó ház, Gomba
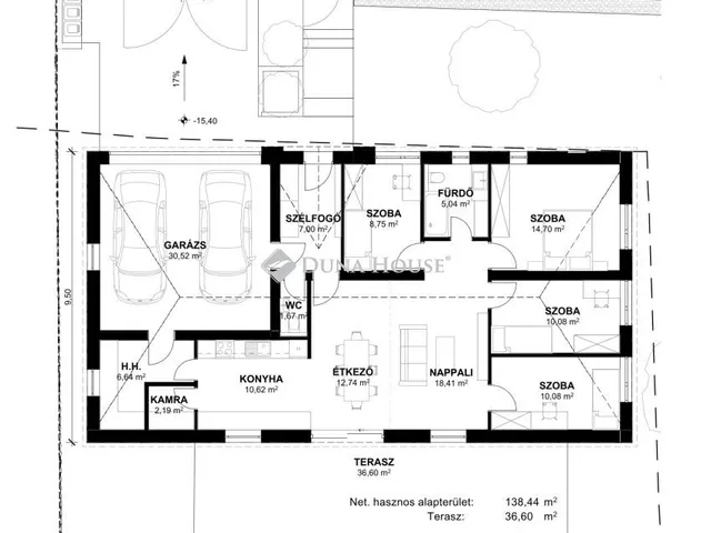
Eladásra kínálunk egy 2026-ban épülő, földszintes, 4 szoba + amerikai-konyhás nappalival rendelkező, napfényes, önálló családi házat, amely 2027 tavaszán kerül átadásra, 1000 nm-es telekkel!
Az otthon hőszivattyús fűtésrendszerrel, padlófűtéssel és elektromos törölközőszárító radiátorral a fürdőszobában rendelkezik.
A nappaliban split klíma került beépítésre.
Az udvarra belépve a szemet az utcafronti 3D kerítés, a térkövezett gyalogos és gépkocsi bejáró fogja meg. A gépkocsitárolásról szekcionált garázskapuval ellátott garázs gondoskodik, az elektromos nagykapu tovább növeli a kényelmet. Otthona környezete nemcsak szép, de biztonságos is, köszönhetően a megbízható kivitelezésnek és az elővigyázatosan megtervezett építési anyagoknak, mint a 30 cm vastag Porfix falak, a 15 cm vastag EPS hőszigetelés és a 30 cm vastag üveggyapot tetőhőszigetelés.
Az ingatlanban fehér műanyag 5 kamrás, 3 rétegű üvegezéssel ellátott ablakok garantálják a jó hőszigetelést és a fényáradatot. A belső terek kialakításához magas minőségű, bruttó 10.000 Ft/nm² értékű padló- és csempeburkolatok, valamint bruttó 80.000 Ft/db árú beltéri ajtók kerültek kiválasztásra.
Gomba település egy igazán csodálatos hely, ahol a nyugalom és a természet közelsége mellett a modern életvitel is helyet kap. Az itt épülő ingatlan lehetőséget kínál arra, hogy a város zajától távol, de mégis minden kényelmi szolgáltatáshoz közel élhessen. A kivételes panorámás kilátás, a szép környezet, valamint a kiemelkedő minőségű építkezés garantálja, hogy az új tulajdonosok életminőségben és komfortban egyaránt csak a legjobbat kapják. Gomba így nemcsak egy hely az otthonteremtéshez, hanem egy kapu a harmónikus és tartalmas élethez.
Hitelügyintézés, eladás és vétel teljes körű ügyintézése, ingyenes tanácsadás, értékbecslés, megbízható ügyvédi háttér biztosítása.
Az energetikai tanúsítvány készítése folyamatban van, amint rendelkezésre áll, úgy azzal a hirdetés frissítésre kerül.
Hívj, és nézzük meg együtt!!
Érd: Kovács Ildikó, tel: +36/20 317 5063, e-mail: ildiko.kovacs1@dh.hu
A megvásárláshoz hitelre van szüksége?
Segítünk!
Ügyfeleinket - együttműködő partnerünk - a Hitelcentrum Kft segíti a hitelügyintézés teljeskörű lebonyolításában. 12 bankkal állnak kapcsolatban, mely rugalmassá, kényelmessé, és gyorsabbá teszi hitelének ügyintézését, és biztosítja, hogy megismerhesse az Ön számára legkedvezőbb ajánlatot!
A szolgáltatás Vevőink számára ingyenes!
Ne tétovázzon, hívjon és nézzük meg együtt az ingatlant!
https://szabo-timea-orsolya.credipass.hu/
Referencia szám: HZ045641
Tulajdonságok
Családi ház
Új építésű
Hőszivattyú
2026
Nem adta meg a hirdető
Vedd fel a kapcsolatot a hirdetővel

+36 29 769 7
Hitelkalkulátor
Második évtől
546 550 Ft A 13. hónaptól
7,99% 8,49%
Végig fix Futamidő: 20 év Banki visszahívás
Az OTP Bank munkatársai a neked megfelelő napszakban veszik fel veled a kapcsolatot. A becslés a hirdető által megadott adatokon alapul. A jelen tájékoztatás nem minősül ajánlattételnek és nem teljes körű, az egyes feltételek a hitelbírálat eredményétől függően változhatnak. Kérjük, a részletekről tájékozódj az OTP Bank fiókjaiban vagy az OTP Bank honlapján közzétett vonatkozó Üzletszabályzatokból és Hirdetményekből.
Vedd fel a kapcsolatot a hirdetővel

+36 29 769 7
Vedd fel a kapcsolatot a hirdetővel

+36 29 769 7
UI_KIT.CHARACTER_COUNTER__COMPONENT.ACTUAL_CHARACTER__SR_ONLY UI_KIT.CHARACTER_COUNTER__COMPONENT.MAXIMUM_CHARACTER__SR_ONLY
Hasonló eladó ingatlanok Gombán
Frissítve: 3 napja
6
127 millió Ft 927 ezer Ft/m²
Eladó családi ház, Gomba

Frissítve: 3 napja
5
127 millió Ft 920,3 ezer Ft/m²
Eladó családi ház, Gomba

Frissítve: 3 napja
4
127 millió Ft 920,3 ezer Ft/m²
Eladó családi ház, Gomba


Fedezd fel a
hasonló házakat!Még további házak Pest megyében 127 M Ft körüli értékben
Tovább a hirdetésekhez Frissítve: 3 napja
6
127 millió Ft 894,4 ezer Ft/m²
Eladó családi ház, Gomba

Frissítve: ma
6
127 millió Ft 927 ezer Ft/m²
Eladó családi ház, Gomba

Frissítve: ma
6
127 millió Ft 927 ezer Ft/m²
Eladó családi ház, Gomba

