+11 fotó
Hirdetéskód: 8860582
Referenciaszám: 363683
Frissítve: 3 napja
Gönc eladó családi ház 2 szobás: 9,5 millió Ft
9,5 millió Ft
13 533 Ft/m² *
* A m² árat a hirdető adta meg.
100 m²
702 m²
2 szoba
Otthon, amit Ön álmodhat újra – békés környéken
Eladó felújítás alatt álló parasztház csendes, nyugodt környéken – 702 m² telekkel!
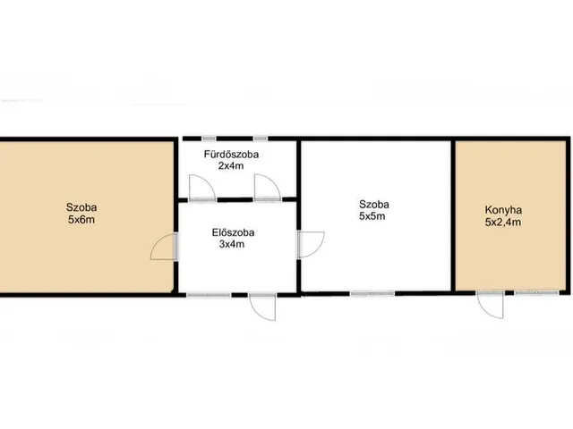
Eladásra kínálunk egy 100 m² parasztház jellegű családi házat, amely egy 702 m² gondozott telken helyezkedik el.
A ház 2 tágas szobával, egy előtérrel és fürdőszobával rendelkezik.
A konyha helye már kialakításra került, azonban a végleges beépítése az új tulajdonosra vár – így saját elképzelései szerint alakíthatja ki álmai konyháját!
A ház felújítása elkezdődött, így jó alapot kínál azok számára, akik szeretnének egy nyugodt környezetben, mégis egyedi stílusban otthont teremteni maguknak.
A telken továbbá garázs és kamra kialakításának lehetősége is adott, ami tovább növeli az ingatlan értékét és használhatóságát.
A fűtésről cserépkályha és gázkonvektor gondoskodik, a ház pedig teljesen közművesített.
Ez az ingatlan tökéletes választás lehet azoknak, akik csendre, nyugalomra és kreatív lehetőségekre vágynak!
Tulajdonságok
Családi ház
Felújítandó
Nem adta meg a hirdető
Vedd fel a kapcsolatot a hirdetővel
+36 30 364 4
Hitelkalkulátor
Második évtől
40 884 Ft A 13. hónaptól
7,99%
Végig fix Futamidő: 20 év Banki visszahívás
Az OTP Bank munkatársai a neked megfelelő napszakban veszik fel veled a kapcsolatot. A becslés a hirdető által megadott adatokon alapul. A jelen tájékoztatás nem minősül ajánlattételnek és nem teljes körű, az egyes feltételek a hitelbírálat eredményétől függően változhatnak. Kérjük, a részletekről tájékozódj az OTP Bank fiókjaiban vagy az OTP Bank honlapján közzétett vonatkozó Üzletszabályzatokból és Hirdetményekből.
Vedd fel a kapcsolatot a hirdetővel
+36 30 364 4
Vedd fel a kapcsolatot a hirdetővel
+36 30 364 4
UI_KIT.CHARACTER_COUNTER__COMPONENT.REMAINING_SPACE__SR_ONLYUI_KIT.CHARACTER_COUNTER__COMPONENT.MAXIMUM_CHARACTER__SR_ONLY
Hasonló eladó ingatlanok Göncön
Frissítve: 28 napja
7
9,99 M Ft 142 714 Ft/m²
Eladó családi ház, Gönc
Frissítve: 6 napja
13
9,9 M Ft 207 548 Ft/m²
Eladó családi ház, Sajóörös

Frissítve: 7 napja
8
9,66 M Ft 134 167 Ft/m²
Eladó családi ház, Aszaló

Fedezd fel a
hasonló házakat!Még további házak Borsod-Abaúj-Zemplén megyében 9,5 M Ft körüli értékben
Tovább a hirdetésekhez Frissítve: 2 napja
20
10,4 M Ft 106 122 Ft/m²
Eladó családi ház, Dövény
Frissítve: 1 hónapja
11
8,9 M Ft 94 681 Ft/m²
Eladó családi ház, Kelemér

Frissítve: 7 napja
19
9 M Ft 81 818 Ft/m²
Eladó családi ház, Tiszakarád


