

+5 fotó
Hirdetéskód: 8735089
Referenciaszám: HZ074985-5053858
Feltöltve: ma
Gyál eladó családi ház 3 szobás: 95,9 millió Ft
95,9 millió Ft
1 183 951 Ft/m²
81 m²
435 m²
3 szoba
Eladó ház, Gyál
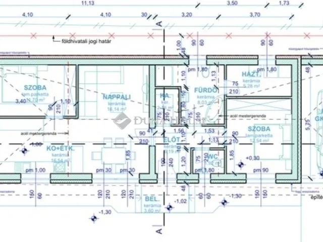
Eladó egy új építésű, különálló, földszintes családi ház Gyál zöldövezeti részén, amely ideális választás mindazok számára, akik csendes és barátságos környezetben keresik álomotthonukat.
Ez a modern ingatlan két kényelmes hálószobával rendelkezik, és a tágas, saját kertje mellett egy fedett gépkocsibeállót is magában foglal, biztosítva a kényelmet és a praktikumot a mindennapokban.
Főbb jellemzők:
1. Nettó hasznos lakótér: 80,5 négyzetméter, amely elegendő teret biztosít a család mindennapi életéhez.
2. Fedett gépkocsibeálló: 18,11 négyzetméter a biztonságos és kényelmes parkoláshoz, valamint egy 15,99 négyzetméteres terasz, amely ideális a családi és baráti összejövetelekhez.
3. Telek mérete: 435 négyzetméter, ami bőséges helyet kínál a szabadidős tevékenységekhez.
Műszaki jellemzők:
- Az épület főfalazata 30 cm-es Porotherm téglából készült, amely kiváló hőszigetelő képességet biztosít.
- A ház homlokzatán 15 cm-es hőszigetelés található, míg a födém 30 cm-es szigeteléssel rendelkezik, ami hozzájárul az energiahatékony fenntartáshoz.
Az építkezés várhatóan 2026 nyarán fejeződik be, így még lehetőség van az egyéni igények szerinti hideg- és melegburkolatok, ajtók, valamint szaniterek kiválasztására, hogy a ház minden részlete megfeleljen az Ön ízlésének.
Ne hagyja ki ezt a remek lehetőséget, hogy egy modern és környezetbarát otthon tulajdonosa legyen Gyál hangulatos zöldövezetében.
A közelben számos kényelmi lehetőség elérhető, mint például sportpályák, iskolák és bevásárlóközpontok, amelyek mind hozzájárulnak a mindennapi élet kényelméhez.
Emellett Budapest csupán 10 perc autóútra található, így a főváros nyújtotta lehetőségek is könnyedén elérhetők.
Forduljon hozzám bizalommal a további részletekért és a megtekintés időpontjának egyeztetéséért!
Amennyiben nem ér el telefonon, akkor az ingatlan referenciaszámát küldje el SMS-ben, és visszahívom, amint tudxom.
Referencia szám: HZ074985
Tulajdonságok
Családi ház
Új építésű
Hőszivattyú
2026
Nem adta meg a hirdető
Vedd fel a kapcsolatot a hirdetővel
+36 1 444 74
Hitelkalkulátor
Második évtől
412 710 Ft A 13. hónaptól
7,99% 8,49%
Végig fix Futamidő: 20 év Banki visszahívás
Az OTP Bank munkatársai a neked megfelelő napszakban veszik fel veled a kapcsolatot. A becslés a hirdető által megadott adatokon alapul. A jelen tájékoztatás nem minősül ajánlattételnek és nem teljes körű, az egyes feltételek a hitelbírálat eredményétől függően változhatnak. Kérjük, a részletekről tájékozódj az OTP Bank fiókjaiban vagy az OTP Bank honlapján közzétett vonatkozó Üzletszabályzatokból és Hirdetményekből.
Vedd fel a kapcsolatot a hirdetővel
+36 1 444 74
Vedd fel a kapcsolatot a hirdetővel
+36 1 444 74
UI_KIT.CHARACTER_COUNTER__COMPONENT.REMAINING_SPACE__SR_ONLYUI_KIT.CHARACTER_COUNTER__COMPONENT.MAXIMUM_CHARACTER__SR_ONLY
Hasonló eladó ingatlanok Gyálon
Frissítve: 18 napja

20
99,9 M Ft 624 375 Ft/m²
Eladó családi ház, Gyál
Frissítve: 10 hónapja

1
99,9 M Ft 499 500 Ft/m²
Eladó családi ház, Gyál
Frissítve: 7 napja

20
94,9 M Ft 702 963 Ft/m²
Eladó családi ház, Gyál

Fedezd fel a
hasonló házakat!Még további házak Gyálon 95,9 M Ft körüli értékben
Tovább a hirdetésekhez Frissítve: 12 napja

20
103,5 M Ft 575 000 Ft/m²
Eladó családi ház, Gyál, Muskátli utca

Frissítve: 18 napja

20
103,5 M Ft 575 000 Ft/m²
Eladó családi ház, Gyál

Frissítve: ma

20
103,5 M Ft 575 000 Ft/m²
Eladó családi ház, Gyál


Töltsd fel hirdetésed ingyenesen!
Egyszerű