Hirdetéskód: 8890940
Feltöltve: 3 hónapja
Gyál eladó családi ház 2+2 fél szobás: 69,9 millió Ft
69,9 millió Ft
529,5 ezer Ft/m²
132 m²
634 m²
2+2 fél szoba
Leírás
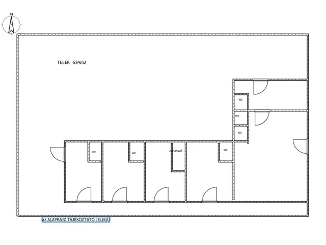
Eladó üzlethelyiség befektetőknek Gyálon frekventált saroktelken, több lehetőséggel! Gyálon, Vecsés és Gyál határán, forgalmas helyen kínálunk eladásra egy 132 m2-es üzlethelyiséget, amely négy külön bejáratú egységből áll. Minden egységhez saját vizesblokk és külön mérőórák tartoznak, így akár külön-külön is kiadhatók vagy hasznosíthatók. Az épület beton födémes, jó állapotú tetővel, így a tetőtér beépíthető, további bővítési lehetőséget biztosítva. A 634 m2-es összközműves saroktelek két utcafronti bejárattal, két kapun keresztül is megközelíthető, így akár több gépjármű részére is biztosított a beállás, rakodás. Ideális befektetőknek, üzleti vállalkozásoknak, szolgáltatóknak, irodának, rendelőnek, vagy akár több bérlemény kialakítására is! Elhelyezkedés: Gyál, Vecséshez közel, jól megközelíthető, forgalmas környék Alapterület: 132 m2 + beépíthető tetőtér Telek: 634 m2 Közművek: víz, villany, gáz, csatorna mind külön mérőórával 4 külön bejárat Két kapubejárat, saroktelek
Tulajdonságok
Családi ház
1
Felújítandó
Gáz (konvektor)
2000
Nem adta meg a hirdető
Vedd fel a kapcsolatot a hirdetővel

Rigóné Varga Andrea
Budapest XX. kerület Vörösmarty utca 72-76 - OTP Ingatlanpont Iroda
Az iroda összes hirdetése +36 70 675 7
Hitelkalkulátor
Második évtől
300 818 Ft A 13. hónaptól
7,99%
Végig fix Futamidő: 20 év Banki visszahívás
Az OTP Bank munkatársai a neked megfelelő napszakban veszik fel veled a kapcsolatot. A becslés a hirdető által megadott adatokon alapul. A jelen tájékoztatás nem minősül ajánlattételnek és nem teljes körű, az egyes feltételek a hitelbírálat eredményétől függően változhatnak. Kérjük, a részletekről tájékozódj az OTP Bank fiókjaiban vagy az OTP Bank honlapján közzétett vonatkozó Üzletszabályzatokból és Hirdetményekből.
Vedd fel a kapcsolatot a hirdetővel

Rigóné Varga Andrea
Budapest XX. kerület Vörösmarty utca 72-76 - OTP Ingatlanpont Iroda
Az iroda összes hirdetése +36 70 675 7
Vedd fel a kapcsolatot a hirdetővel

Rigóné Varga Andrea
Budapest XX. kerület Vörösmarty utca 72-76 - OTP Ingatlanpont Iroda
Az iroda összes hirdetése +36 70 675 7
UI_KIT.CHARACTER_COUNTER__COMPONENT.ACTUAL_CHARACTER__SR_ONLY UI_KIT.CHARACTER_COUNTER__COMPONENT.MAXIMUM_CHARACTER__SR_ONLY
Hasonló eladó ingatlanok Gyálon
Frissítve: ma
14
75 millió Ft 1,04 millió Ft/m²
Eladó családi ház, Gyál

Frissítve: 1 napja
14
75 millió Ft 1,03 millió Ft/m²
Eladó családi ház, Gyál

Feltöltve: 2 éve
8
69,9 millió Ft 597,4 ezer Ft/m²
Eladó családi ház, Gyál


Fedezd fel a
hasonló házakat!Még további házak Gyálon 69,9 M Ft körüli értékben
Tovább a hirdetésekhez Frissítve: ma
14
75 millió Ft 1,04 millió Ft/m²
Eladó családi ház, Gyál

Frissítve: 1 napja
14
75 millió Ft 1,04 millió Ft/m²
Eladó családi ház, Gyál

Frissítve: 1 napja
14
75 millió Ft 1,04 millió Ft/m²
Eladó családi ház, Gyál

