+17 fotó
Hirdetéskód: 8754304
Referenciaszám: 6-2694
Frissítve: ma
Gyenesdiás eladó családi ház 2+2 fél szobás: 124,9 millió Ft
124,9 millió Ft
1 095 614 Ft/m²
114 m²
760 m²
2+2 fél szoba
Gyenesdiás, Zsákutca, 114 m²-es, családi ház, 2+2 félszobás
A Balaton északi partján, Keszthely mellett, Hévíztől 8 km távolságban, szép természeti környezetben, csendes utcában, GYENESDIÁSON igényes családi ház eladó!
A 760 m2 szép , parkosított területen játszótér, fedett kerti bográcsozó, sok gyümölcsfa hívogat befelé az utcáról. Az igényes terméskövel burkolt , Ytong téglából 2005-ben épült földszintes ingatlan elosztása :
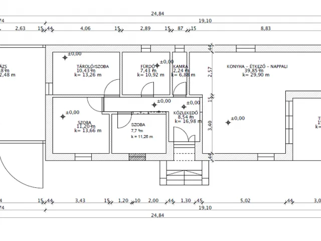
hangulatos, 40 m2 amerikai konyhás nappali, 3 szoba ,előszoba, háztartási helyiség, fürdőszoba, 16 m2 fedett terasz, 32 m2 két autó beállására alkalmas garázs.
A szépen karbantartott családi ház 25Ah áramellátással, cirkófűtéssel ,két darab hűtő-fűtő klímával kis rezsi mellett üzemeltethető.
Riasztó, elketromos kapuk, műanyag nyílászárók, redőnyök, szúnyoghálók, hangulatvilágítások, térkövezett udvar mind az új lakó kényelmét, otthonos érzését erősítik.
Jöjjön, győződjön meg róla személyesen!
Balaton part 3 km . A 71-es főút a legfontosabb közúti elérési útvonala.
Autóbusz-közlekedése sűrű: több, Keszthely felől induló elővárosi, helyközi és távolsági járat érinti a települést, de emellett a keszthelyi 1-es jelzésű helyi járat is kitér a község felé.
Vasúttal megközelíthető .
Tulajdonságok
Családi ház
Újszerű
Gázkazán
2005
Nem adta meg a hirdető
Nincs
Vedd fel a kapcsolatot a hirdetővel
+36 30 427 2
Hitelkalkulátor
Második évtől
537 513 Ft A 13. hónaptól
7,99%
Végig fix Futamidő: 20 év Banki visszahívás
Az OTP Bank munkatársai a neked megfelelő napszakban veszik fel veled a kapcsolatot. A becslés a hirdető által megadott adatokon alapul. A jelen tájékoztatás nem minősül ajánlattételnek és nem teljes körű, az egyes feltételek a hitelbírálat eredményétől függően változhatnak. Kérjük, a részletekről tájékozódj az OTP Bank fiókjaiban vagy az OTP Bank honlapján közzétett vonatkozó Üzletszabályzatokból és Hirdetményekből.
Vedd fel a kapcsolatot a hirdetővel
+36 30 427 2
Vedd fel a kapcsolatot a hirdetővel
+36 30 427 2
UI_KIT.CHARACTER_COUNTER__COMPONENT.REMAINING_SPACE__SR_ONLYUI_KIT.CHARACTER_COUNTER__COMPONENT.MAXIMUM_CHARACTER__SR_ONLY
Hasonló eladó ingatlanok Gyenesdiáson
Frissítve: 25 napja
20
134,99 M Ft 1 007 388 Ft/m²
Eladó családi ház, Gyenesdiás

Frissítve: 28 napja
20
128 M Ft 426 667 Ft/m²
Eladó családi ház, Gyenesdiás

Frissítve: 4 napja
14
116 M Ft 966 666 Ft/m²
Eladó családi ház, Gyenesdiás


Fedezd fel a
hasonló házakat!Még további házak Gyenesdiáson 124,9 M Ft körüli értékben
Tovább a hirdetésekhez Frissítve: ma
20
133 M Ft 665 000 Ft/m²
Eladó családi ház, Gyenesdiás

Frissítve: ma
20
133 M Ft 665 000 Ft/m²
Eladó családi ház, Gyenesdiás

Frissítve: 27 napja
20
125 M Ft 925 926 Ft/m²
Eladó családi ház, Gyenesdiás


