+13 fotó
Hirdetéskód: 8971027
Referenciaszám: M325524-5184361
Frissítve: ma
Győr eladó családi ház 2+2 fél szobás: 173 millió Ft
173 millió Ft
1,02 millió Ft/m²
169 m²
597 m²
2+2 fél szoba
Eladó Ház, Győr
Eladó kétszintes, 4 szobás, duplakomfortos családi ház Győr-Szabadhegyen!
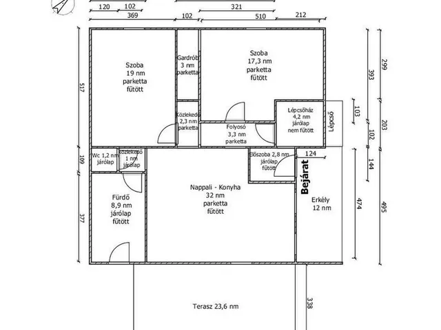
Eladásra kínálunk Győr-Szabadhegy kedvelt, csendes részén egy 597 nm-es telken elhelyezkedő, kiváló elrendezésű kétszintes családi házat, önálló, 58 nm-es melléképülettel, amely számos lehetőséget rejt magában.
A ház alsó lakószintje 95 nm, ahol 2 szoba, tágas, napfényes, amerikai konyhás nappali, fürdőszoba, 2 WC és gardrób található. A nappaliból közvetlen kijárat nyílik a 23 nm-es teraszra, továbbá a földszinten egy 12 nm-es erkély is helyet kapott.
Az emelet tetőtér beépítésű, itt 40 nm-en 2 szoba, világos, amerikai konyhás nappali, valamint fürdőszoba WC-vel került kialakításra.
Az alagsorban egy 43 nm-es, fűtött garázs, valamint egy 19 nm-es tárolóhelyiség biztosít kényelmes parkolási és tárolási lehetőséget.
A ház hűtő-fűtő klímával felszerelt. A fűtésről és a melegvíz-ellátásról kondenzációs gázkazán gondoskodik. Az ingatlan energiahatékonyságát tovább növeli az 5 kW-os napelemes rendszer, amely jelentősen csökkenti a rezsiköltségeket.
A telken található 58 nm-es, önálló melléképület, mely külön gázfűtéssel rendelkezik és hűtő-fűtő klímával ellátott. Az épületben fürdőszoba WC-vel, 3 fázisú áram, valamint szauna is helyet kapott. Wellness és szórakoztató térként funkcionál. Kialakításának köszönhetően műhelynek is használható. de kiválóan alkalmas vállalkozás, iroda, vagy akár külön lakórész kialakítására is.
Az ingatlan kétgenerációs otthonként, nagycsaládosok részére, vállalkozásra, vagy befektetésként is kiváló lehetőség Győr egyik keresett városrészében.
További információért és megtekintésért keressen bizalommal!
Referenciaszám: M325524
Az energetikai tanúsítvány készítése folyamatban van, amint rendelkezésre áll, úgy azzal a hirdetés frissítésre kerül.
Tulajdonságok
Családi ház
Jó állapotú
Gázkazán
1980
Nem adta meg a hirdető
Van
Vedd fel a kapcsolatot a hirdetővel

+36 30 650 1
Hitelkalkulátor
Második évtől
744 513 Ft A 13. hónaptól
7,99%
Végig fix Futamidő: 20 év Banki visszahívás
Az OTP Bank munkatársai a neked megfelelő napszakban veszik fel veled a kapcsolatot. A becslés a hirdető által megadott adatokon alapul. A jelen tájékoztatás nem minősül ajánlattételnek és nem teljes körű, az egyes feltételek a hitelbírálat eredményétől függően változhatnak. Kérjük, a részletekről tájékozódj az OTP Bank fiókjaiban vagy az OTP Bank honlapján közzétett vonatkozó Üzletszabályzatokból és Hirdetményekből.
Vedd fel a kapcsolatot a hirdetővel

+36 30 650 1
Vedd fel a kapcsolatot a hirdetővel

+36 30 650 1
UI_KIT.CHARACTER_COUNTER__COMPONENT.ACTUAL_CHARACTER__SR_ONLY UI_KIT.CHARACTER_COUNTER__COMPONENT.MAXIMUM_CHARACTER__SR_ONLY
Hasonló eladó ingatlanok Szabadhegy városrészben
Frissítve: 17 napja
2
165 millió Ft 515,6 ezer Ft/m²
Eladó családi ház, Győr, Szabadhegy
Frissítve: 2 napja
20
180 millió Ft 631,6 ezer Ft/m²
Eladó családi ház, Győr, Szabadhegy
Frissítve: 1 hónapja
20
179,9 millió Ft 799,6 ezer Ft/m²
Eladó családi ház, Győr, Szabadhegy


Fedezd fel a
hasonló házakat!Még további házak Győrben 173 M Ft körüli értékben
Tovább a hirdetésekhez Frissítve: 19 napja
20
185 millió Ft 746 ezer Ft/m²
Eladó családi ház, Győr, Szabadhegy
Frissítve: 1 hónapja
20
179,9 millió Ft 799,6 ezer Ft/m²
Eladó családi ház, Győr, Szabadhegy

Frissítve: 10 napja
17
173 millió Ft 1,02 millió Ft/m²
Eladó családi ház, Győr, Szabadhegy

