

 +18 fotó 
Hirdetéskód: 8758201
Referenciaszám: M313111-5060277
 Frissítve: 1 napja 
Hajdúböszörmény eladó családi ház 3 szobás: 53,9 millió Ft
 53,9 millió Ft 
 649 398 Ft/m² 
 83 m²  
 445 m²  
 3 szoba 
Eladó Ház, Hajdúböszörmény
 Hajdúböszörményben, a Báthory Gábor körút egyik csendes, családosok által kedvelt zugában eladó egy teljes körűen felújított családi ház, amely ideális választás lehet mindazok számára, akik nyugalmat és biztonságot keresnek, mégis könnyen elérhető közelségben a város kényelmével.
	*	Telek: 455 m2 téglalap alakú, rendezett környezetben
	*	Közművek: villany, víz, csatorna bekötve (gáz nincs)
	*	Lakóépület: 83 m2 hasznos alapterület
	*	Falazat: vegyes szerkezet (1970-es évek téga, 2000-es évek vályog bővítése), beton alap, fafödém, cserépfedés
	*	Felújítás: 2024-ben teljes körű belső felújítás
	*	új elektromos hálózat és vízvezetékek
	*	modern járólapok a vizes helyiségekben
	*	laminált parketta a szobákban
	*	új beltéri ajtók
	*	műanyag nyílászárók
        *      inverteres Klíma
	*	Fűtés: vegyes tüzelésű kazán, radiátoros hőleadással, a kazán 2024-ben került beépítésre
        *      Melgviz ellátás , új ARISTON villanybojlerről van megoldva
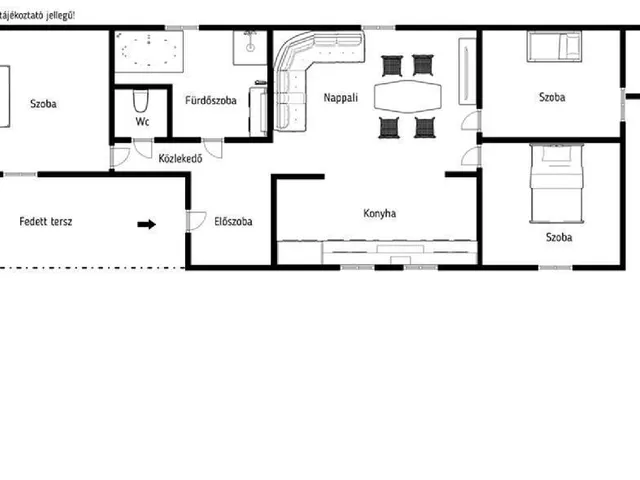
	*	Helyiségek:
	*	3 külön bejáratú szoba (13 m2, 13 m2, 18 m2)
	*	nappali?konyha egy légtérben
	*	közlekedő és előszoba
	*	külön fürdőszoba és WC
        *      új lemez kerítés
        *      található még a telken egy kisebb autó tárolására alkalmas garázs
	*	Extrák: a beépített konyhabútor a vételár részét képezi
	*	Állapot: per- és tehermentes, rövid időn belül birtokba vehető
A ház belülről teljesen elkészült, így új tulajdonosa azonnal beköltözhet, és élvezheti az otthon nyújtotta kényelmet. A csendes környék, a praktikus elrendezés és a gondos felújítás egyaránt biztosítja, hogy ez az ingatlan hosszú távon is kiváló választás legyen családok számára.
További kérdéseire készséggel válaszolok, akár hétvégén is. Kedvezményes kamatozású lakásvásárlási hitelek, valamint Babaváró és CSOK ügyintézése az OTP hátterével irodánkban.
Ref.szám: M313111 
Tulajdonságok
Családi ház
Jó állapotú
Házközponti
1970
Nem adta meg a hirdető
Vedd fel a kapcsolatot a hirdetővel
Katona Ferenc OTPip - Nyíregyháza Bocskai utca 18-20 - OTP Ingatlanpont Iroda  Az iroda összes hirdetése 
 +36 30 097 5 
Hitelkalkulátor
 Második évtől 
 231 961 Ft  A 13. hónaptól 
 7,99% 
 Végig fix  Futamidő: 20 év Banki visszahívás
Az OTP Bank munkatársai a neked megfelelő napszakban veszik fel veled a kapcsolatot. A becslés a hirdető által megadott adatokon alapul. A jelen tájékoztatás nem minősül ajánlattételnek és nem teljes körű, az egyes feltételek a hitelbírálat eredményétől függően változhatnak. Kérjük, a részletekről tájékozódj az OTP Bank fiókjaiban vagy az OTP Bank honlapján közzétett vonatkozó Üzletszabályzatokból és Hirdetményekből. 
Vedd fel a kapcsolatot a hirdetővel
Katona Ferenc OTPip - Nyíregyháza Bocskai utca 18-20 - OTP Ingatlanpont Iroda  Az iroda összes hirdetése 
 +36 30 097 5 
Vedd fel a kapcsolatot a hirdetővel
Katona Ferenc OTPip - Nyíregyháza Bocskai utca 18-20 - OTP Ingatlanpont Iroda  Az iroda összes hirdetése 
 +36 30 097 5 
UI_KIT.CHARACTER_COUNTER__COMPONENT.REMAINING_SPACE__SR_ONLYUI_KIT.CHARACTER_COUNTER__COMPONENT.MAXIMUM_CHARACTER__SR_ONLY
Hasonló eladó ingatlanok Hajdúböszörményben
 Frissítve: 7 napja 

 17 
 55 M Ft  808 824 Ft/m² 
 Eladó családi ház, Hajdúböszörmény 

 Frissítve: 7 napja 

 20 
 49,9 M Ft  375 895 Ft/m² 
 Eladó családi ház, Hajdúböszörmény 

 Frissítve: 4 napja 

 20 
 49,9 M Ft  378 030 Ft/m² 
 Eladó családi ház, Hajdúböszörmény 


Fedezd fel a 
hasonló házakat!Még további házak Hajdú-Bihar megyében 53,9 M Ft körüli értékben
 Tovább a hirdetésekhez  Frissítve: 18 napja 

 20 
 49,9 M Ft  378 030 Ft/m² 
 Eladó ikerház, Hajdúböszörmény 

 Frissítve: 8 napja 

 20 
 49,9 M Ft  378 030 Ft/m² 
 Eladó ikerház, Hajdúböszörmény 

 Frissítve: 8 napja 

 18 
 49,9 M Ft  378 030 Ft/m² 
 Eladó ikerház, Hajdúböszörmény 


Töltsd fel hirdetésed ingyenesen!
Egyszerű 
