+9 fotó
Hirdetéskód: 8717666
Referenciaszám: 817781
Frissítve: 7 napja
Hajdúhadház eladó családi ház 3 szobás: 37,5 millió Ft
37,5 millió Ft
480 769 Ft/m²
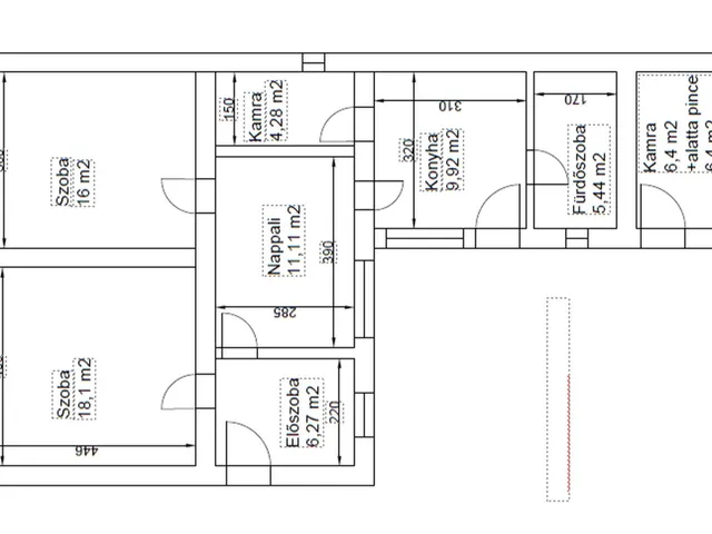
78 m²
730 m²
3 szoba
Költözhető jó kis ház Hajdúhadházon
Hajdúhadház csendes, központhoz közeli utcájában eladó egy 78 m² alapterületű, 3 szobás családi ház, rendezett, körbekerített telken, nyugodt környéken.
Az ingatlan összközműves, tehermentes, aszfaltozott utcában található, folyamatosan karbantartott, jó állapotú, masszív szerkezetű épület.
Főbb jellemzők:
• 1960-as években épült terméskő alapra, vályog falazattal, palatetővel
• 1970-es években bővítve beton alappal, B30-as tégla falazattal
• Fűtés: gázkazán + radiátorok, valamint cserépkályha (átlagos téli költség: kb. 15.000 Ft/hó)
• Nyílászárók: korszerű, műanyag hőszigetelt, redőnnyel és szúnyoghálóval
• Burkolatok: hajópadló, laminált padló, járólap – a vizesblokkok és burkolatok kb. 15 éve lettek felújítva
• Praktikus, egyedi konyhabútor az ár részét képezi
• 5 m² száraz pince
• Nyári konyha + zárható és nyitott tárolók (kb. 30 m²)
• Kisállattartásra alkalmas épületek
• Ásott kút az öntözéshez
• Dísznövények, rózsák, magnóliafa és termő szőlőlugas
A ház elhelyezkedése kiváló: óvoda, iskola, orvosi rendelő, tömegközlekedés és a városközpont 5-10 perc sétával elérhető.
Ez az ingatlan ideális választás lehet családoknak, akik jó állapotú, azonnal költözhető otthont keresnek Hajdúhadházon. A családi ház megfelel az Otthonteremtési támogatások feltételeinek, így CSOK és Otthon Start hitel igénybevételére is alkalmas!
Az ingatlan rugalmasan megtekinthető. Jöjjön, nézze meg, hívjon még ma időpont egyeztetés miatt.
Tulajdonságok
Családi ház
Átlagos
Gázkazán
1970
Nem adta meg a hirdető
Vedd fel a kapcsolatot a hirdetővel
+36 70 708 1
Hitelkalkulátor
Második évtől
161 383 Ft A 13. hónaptól
7,99%
Végig fix Futamidő: 20 év Banki visszahívás
Az OTP Bank munkatársai a neked megfelelő napszakban veszik fel veled a kapcsolatot. A becslés a hirdető által megadott adatokon alapul. A jelen tájékoztatás nem minősül ajánlattételnek és nem teljes körű, az egyes feltételek a hitelbírálat eredményétől függően változhatnak. Kérjük, a részletekről tájékozódj az OTP Bank fiókjaiban vagy az OTP Bank honlapján közzétett vonatkozó Üzletszabályzatokból és Hirdetményekből.
Vedd fel a kapcsolatot a hirdetővel
+36 70 708 1
Vedd fel a kapcsolatot a hirdetővel
+36 70 708 1
UI_KIT.CHARACTER_COUNTER__COMPONENT.REMAINING_SPACE__SR_ONLYUI_KIT.CHARACTER_COUNTER__COMPONENT.MAXIMUM_CHARACTER__SR_ONLY
Hasonló eladó ingatlanok Hajdúhadházán
Frissítve: 27 napja
14
36 M Ft 192 513 Ft/m²
Eladó családi ház, Hajdúhadház

Frissítve: 26 napja
14
36 M Ft 192 514 Ft/m²
Eladó családi ház, Hajdúhadház

Frissítve: ma
14
36 M Ft 192 513 Ft/m²
Eladó családi ház, Hajdúhadház


Fedezd fel a
hasonló házakat!Még további házak Hajdú-Bihar megyében 37,5 M Ft körüli értékben
Tovább a hirdetésekhez Frissítve: 1 napja
14
36 M Ft 192 513 Ft/m²
Eladó családi ház, Hajdúhadház

Frissítve: ma
14
36 M Ft 192 513 Ft/m²
Eladó családi ház, Hajdúhadház

Frissítve: 26 napja
14
39,9 M Ft 273 288 Ft/m²
Eladó családi ház, Hajdúhadház


Töltsd fel hirdetésed ingyenesen!
Egyszerű