

+18 fotó
Hirdetéskód: 8722065
Referenciaszám: M311904-5045750
Feltöltve: 8 napja
Hatvan eladó családi ház 3+1 fél szobás: 45 millió Ft
45 millió Ft
335 821 Ft/m²
134 m²
630 m²
3+1 fél szoba
Eladó Ház, Hatvan
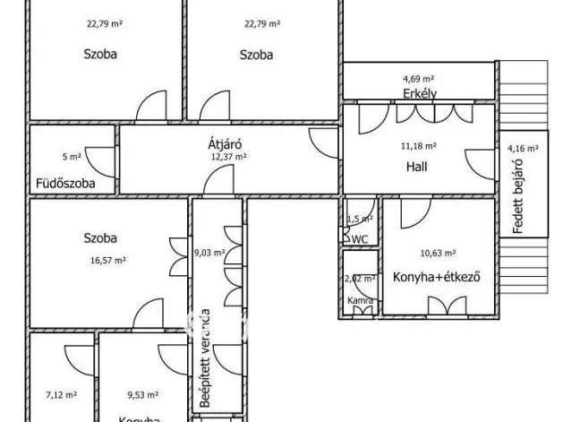
Eladó Heves megyében, Hatvan Új-Hatvan városrészében egy felújítandó, 80-as években épült, stabil, 2 lakrészből álló családi ház! A fő épület 90 m2, B-30-as téglából épült, beton födémes, amelyben kialakításra került két nagy szoba, hall, konyha-étkező, spájz, üvegezett előtér, fürdőszoba és külön WC. A hátsó 44 m2-es, korábban épült részben szoba, konyha, kamra, WC található. A ház elülső része alatt 24 m2 mélygarázs valamint 22 m2 pince helyezkedik el. Az épület alkalmas akár több generáció együtt élésére. A telek hátsó részében egy második garázs, 15 m2-es kamra, alatta 9 m2 zöldséges pince, valamint 20 m2 műhely található. Az otthon melegéről gázkonvektor, míg a meleg vízről bojler gondoskodik. A bevezetett 380 V ipari áram vállalkozáshoz ad segítséget. A kertben gyümölcsfák és konyhakerti növények termesztéséhez használható területek állnak rendelkezésre. A telek területe 630 m2. Költözhető, tehermentes ingatlan. Ha egy barátságos otthont szeretne, jó szomszédokkal, jöjjön, tekintse meg! Amennyiben hitelre lenne szüksége az ingatlan megvásárlásához, az OTP Bank kedvezményes konstrukcióit ajánlom, Babaváró hitel, Otthon Start Hitel a megfelelő személyi feltételek mellett felvehető! Hívjon bizalommal akár hétvégén is, jöjjön, nézzük meg együtt!
Tulajdonságok
Családi ház
Felújítandó
Gáz (konvektor)
1981
F
Vedd fel a kapcsolatot a hirdetővel
+36 70 330 6
Hitelkalkulátor
Második évtől
193 659 Ft A 13. hónaptól
7,99%
Végig fix Futamidő: 20 év Banki visszahívás
Az OTP Bank munkatársai a neked megfelelő napszakban veszik fel veled a kapcsolatot. A becslés a hirdető által megadott adatokon alapul. A jelen tájékoztatás nem minősül ajánlattételnek és nem teljes körű, az egyes feltételek a hitelbírálat eredményétől függően változhatnak. Kérjük, a részletekről tájékozódj az OTP Bank fiókjaiban vagy az OTP Bank honlapján közzétett vonatkozó Üzletszabályzatokból és Hirdetményekből.
Vedd fel a kapcsolatot a hirdetővel
+36 70 330 6
Vedd fel a kapcsolatot a hirdetővel
+36 70 330 6
UI_KIT.CHARACTER_COUNTER__COMPONENT.REMAINING_SPACE__SR_ONLYUI_KIT.CHARACTER_COUNTER__COMPONENT.MAXIMUM_CHARACTER__SR_ONLY
Hasonló eladó ingatlanok Hatvanban
Feltöltve: 3 napja

20
45 M Ft 335 821 Ft/m²
Eladó családi ház, Hatvan

Frissítve: 10 napja

20
45 M Ft 335 821 Ft/m²
Eladó családi ház, Hatvan

Frissítve: 16 napja

18
45 M Ft 220 588 Ft/m²
Eladó családi ház, Kisköre


Fedezd fel a
hasonló házakat!Még további házak Heves megyében 45 M Ft körüli értékben
Tovább a hirdetésekhez Frissítve: 19 napja

1
46,5 M Ft 344 444 Ft/m²
Eladó családi ház, Lőrinci
Feltöltve: ma

20
48 M Ft 480 000 Ft/m²
Eladó családi ház, Karácsond

Feltöltve: 5 napja

11
44,5 M Ft 523 529 Ft/m²
Eladó családi ház, Zagyvaszántó

Töltsd fel hirdetésed ingyenesen!
Egyszerű