

+18 fotó
Hirdetéskód: 8732879
Referenciaszám: M311904-5048065
Frissítve: ma
Hatvan eladó családi ház 3+1 fél szobás: 45 millió Ft
45 millió Ft
335 821 Ft/m²
134 m²
630 m²
3+1 fél szoba
Eladó Ház, Hatvan
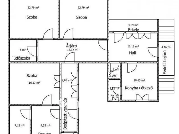
Heves megye, Hatvan Új-Hatvan városrészben, eladása kínálok, egy felújítandó, 80-as években épült, stabil, 2 lakrészből álló családi házat. A fő épület 90 m2, B-30-as téglából épült, beton födémes, melyben 2 nagy szoba, hall, konyha-étkező, spájz, üvegezett előtér, fürdőszoba és külön WC található. A hátsó 44 m2-es, korábban épült traktusban szoba, konyha, kamra, WC található. A ház elülső része alatt 24 m2 mélygarázs, 22 m2 pince helyezkedik el. Az épület alkalmas több generáció együtt élésére. A telek hátsó részében egy második garázs, 15 m2-es kamra, alatta 9 m2 zöldséges pince, valamint 20 m2 műhely található. Az otthon melegéről gázkonvektor, míg a meleg vízről bojler gondoskodik. A bevezetett 380 V ipari áram vállalkozáshoz ad segítséget. A kertben gyümölcsfák és konyhakerti növények termesztéséhez használható területek állnak rendelkezésre. A telek területe 630 m2. Költözhető, tehermentes ingatlan. Ha egy barátságos otthont szeretne, jó szomszédokkal, jöjjön, tekintse meg! Ingatlanirodánk ügyvédi háttérrel, CSOK, babaváró hitel, Otthon Start Hitelprogram, valamint kamatkedvezményes hitel ügyintézésével támogatja ügyfelei ingatlanvásárlását. Ingyenes banki segítség! Hívjon bizalommal!
Tulajdonságok
Családi ház
Felújítandó
Gáz (konvektor)
1981
Nem adta meg a hirdető
Vedd fel a kapcsolatot a hirdetővel
+36 20 426 0
Hitelkalkulátor
Második évtől
193 659 Ft A 13. hónaptól
7,99%
Végig fix Futamidő: 20 év Banki visszahívás
Az OTP Bank munkatársai a neked megfelelő napszakban veszik fel veled a kapcsolatot. A becslés a hirdető által megadott adatokon alapul. A jelen tájékoztatás nem minősül ajánlattételnek és nem teljes körű, az egyes feltételek a hitelbírálat eredményétől függően változhatnak. Kérjük, a részletekről tájékozódj az OTP Bank fiókjaiban vagy az OTP Bank honlapján közzétett vonatkozó Üzletszabályzatokból és Hirdetményekből.
Vedd fel a kapcsolatot a hirdetővel
+36 20 426 0
Vedd fel a kapcsolatot a hirdetővel
+36 20 426 0
UI_KIT.CHARACTER_COUNTER__COMPONENT.REMAINING_SPACE__SR_ONLYUI_KIT.CHARACTER_COUNTER__COMPONENT.MAXIMUM_CHARACTER__SR_ONLY
Hasonló eladó ingatlanok Hatvanban
Frissítve: 18 napja

20
45 M Ft 335 821 Ft/m²
Eladó családi ház, Hatvan

Feltöltve: 16 napja

20
45 M Ft 335 821 Ft/m²
Eladó családi ház, Hatvan

Feltöltve: 11 napja

20
45 M Ft 335 821 Ft/m²
Eladó családi ház, Hatvan


Fedezd fel a
hasonló házakat!Még további házak Heves megyében 45 M Ft körüli értékben
Tovább a hirdetésekhez Frissítve: 19 napja

10
47 M Ft 122 715 Ft/m²
Eladó családi ház, Parád

Frissítve: 15 napja

20
44,9 M Ft 393 860 Ft/m²
Eladó családi ház, Bükkszék

Frissítve: 4 napja

1
42,5 M Ft 326 923 Ft/m²
Eladó családi ház, Feldebrő

Töltsd fel hirdetésed ingyenesen!
Egyszerű