+17 fotó
Hirdetéskód: 8950560
Referenciaszám: M326036
Frissítve: 13 napja
Hatvan eladó családi ház 3+1 fél szobás: 45 millió Ft
45 millió Ft
335,8 ezer Ft/m² *
* A m² árat a hirdető adta meg.
134 m²
630 m²
3+1 fél szoba
Leírás
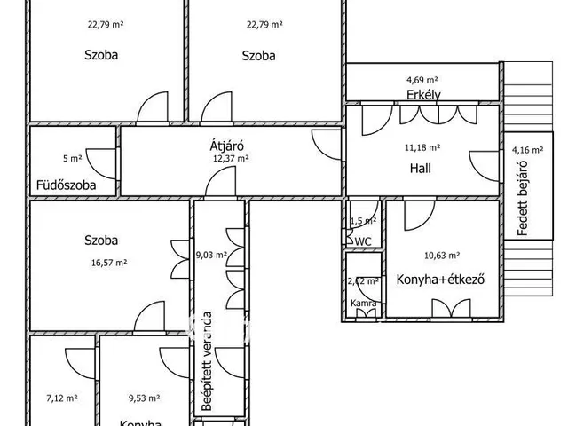
Heves megye, Hatvan Új-Hatvan városrészben, eladása kínálok, egy felújítandó, 80-as években épült, stabil, 2 lakrészből álló családi házat. A fő épület 90 m2, B-30-as téglából épült, beton födémes, melyben 2 nagy szoba, hall, konyha-étkező, spájz, üvegezett előtér, fürdőszoba és külön WC található. A hátsó 44 m2-es, korábban épült traktusban szoba, konyha, kamra, WC található. A ház elülső része alatt 24 m2 mélygarázs, 22 m2 pince helyezkedik el. Az épület alkalmas több generáció együtt élésére. A telek hátsó részében egy második garázs, 15 m2-es kamra, alatta 9 m2 zöldséges pince, valamint 20 m2 műhely található. Az otthon melegéről gázkonvektor, míg a meleg vízről bojler gondoskodik. A bevezetett 380 V ipari áram vállalkozáshoz ad segítséget. A kertben gyümölcsfák és konyhakerti növények termesztéséhez használható területek állnak rendelkezésre. A telek területe 630 m2. Költözhető, tehermentes ingatlan. Ha egy barátságos otthont szeretne, jó szomszédokkal, jöjjön, tekintse meg! Ingatlanirodánk ügyvédi háttérrel, CSOK, babaváró hitel, "Otthon Start Hitelprogram", valamint kamatkedvezményes hitel ügyintézésével támogatja ügyfelei ingatlanvásárlását. Ingyenes banki segítség! Hívjon bizalommal!
Tulajdonságok
Családi ház
1
Felújítandó
Gáz (konvektor)
1981
I
Vedd fel a kapcsolatot a hirdetővel

+36 20 426 0
Hitelkalkulátor
Második évtől
193 659 Ft A 13. hónaptól
7,99%
Végig fix Futamidő: 20 év Banki visszahívás
Az OTP Bank munkatársai a neked megfelelő napszakban veszik fel veled a kapcsolatot. A becslés a hirdető által megadott adatokon alapul. A jelen tájékoztatás nem minősül ajánlattételnek és nem teljes körű, az egyes feltételek a hitelbírálat eredményétől függően változhatnak. Kérjük, a részletekről tájékozódj az OTP Bank fiókjaiban vagy az OTP Bank honlapján közzétett vonatkozó Üzletszabályzatokból és Hirdetményekből.
Vedd fel a kapcsolatot a hirdetővel

+36 20 426 0
Vedd fel a kapcsolatot a hirdetővel

+36 20 426 0
UI_KIT.CHARACTER_COUNTER__COMPONENT.ACTUAL_CHARACTER__SR_ONLY UI_KIT.CHARACTER_COUNTER__COMPONENT.MAXIMUM_CHARACTER__SR_ONLY
Hasonló eladó ingatlanok Hatvanban
Frissítve: 2 napja
20
45 millió Ft 335,8 ezer Ft/m²
Eladó családi ház, Hatvan

Feltöltve: 29 napja
20
45 millió Ft 335,8 ezer Ft/m²
Eladó családi ház, Hatvan

Feltöltve: 29 napja
20
45 millió Ft 335,8 ezer Ft/m²
Eladó családi ház, Hatvan


Fedezd fel a
hasonló házakat!Még további házak Heves megyében 45 M Ft körüli értékben
Tovább a hirdetésekhez Frissítve: 11 napja
18
45 millió Ft 220,6 ezer Ft/m²
Eladó családi ház, Kisköre

Frissítve: 1 napja
20
49 millió Ft 306,3 ezer Ft/m²
Eladó családi ház, Gyöngyösoroszi

Frissítve: 6 napja
1
42,5 millió Ft 326,9 ezer Ft/m²
Eladó családi ház, Feldebrő
