

+18 fotó
Hirdetéskód: 8428956
Referenciaszám: M297356-4867073
Frissítve: ma
Igal eladó családi ház 4+2 fél szobás: 49,9 millió Ft
49,9 millió Ft
344 138 Ft/m²
145 m²
673 m²
4+2 fél szoba
Eladó Ház, Igal
Igal településen 145 m2-es családi ház eladó, pár száz méterre a méltán híres gyógyfürdőtől
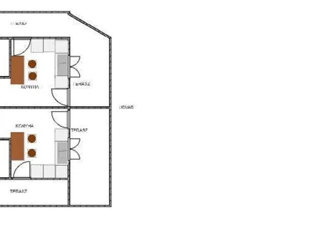
Az ingatlan a dombokkal ölelt somogyi kisváros északi felében található. Az iker jellegű, padlásteres, tégla falazatú, kívül szigetelt házat körben szép telek övezi.
Az épület földszintjén mindkét oldalon egy-egy nappali, konyha, fürdőszoba + wc. valamint egy kisebb tárolóhelyiség található. Mindkét földszinti nappaliból lépcső vezet a felső szintre, ahol két-két szoba, és szintén egy-egy fürdőszoba + wc kapott helyet. Mivel az emeleti szobák tájolása keleti, illetve nyugati, így a nap bármely szakában van benapozott helyiség a házban.
Az épület lakószintje alatt az utcafronti részen egy-egy garázs nyújt lehetőséget a biztonságos gépkocsitárolásra. A lakás padozata a földszinti konyhák, ill. mindkét szint tároló- és mellékhelyiségei vonatkozásában járólap, a szobák pedig - a lenti- és a fenti szinten egyaránt - parketta borításúak.
Az udvar elülső részében a különféle dísznövények, virágok látványa nyújt kellemes élményt, a kert hátulsó részében pedig néhány fa ad árnyékot a meleg nyári napokon. A településen az iskola, óvoda, bölcsőde, orvosi rendelő ugyanúgy megtalálható, mint a különböző szolgáltatást nyújtó boltok és szupermarketek.
Mivel az ingatlan csupán pár száz méterre található a méltán híres gyógyfürdőtől, így egész évben adott a lehetőség a kellemes feltöltődésre úgy az itt lakóknak, mint az ide látogató üdülni, pihenni vágyóknak egyaránt. Amennyiben az ingatlan felkeltette az érdeklődését, hívjon bizalommal! Az OTP Ingatlanpont ajánlásával!
M297356
Referencia szám: M297356-ZE
Tulajdonságok
1994
B
Vedd fel a kapcsolatot a hirdetővel
+36 30 204 0
Hitelkalkulátor
Második évtől
214 747 Ft A 13. hónaptól
7,99%
Végig fix Futamidő: 20 év Banki visszahívás
Az OTP Bank munkatársai a neked megfelelő napszakban veszik fel veled a kapcsolatot. A becslés a hirdető által megadott adatokon alapul. A jelen tájékoztatás nem minősül ajánlattételnek és nem teljes körű, az egyes feltételek a hitelbírálat eredményétől függően változhatnak. Kérjük, a részletekről tájékozódj az OTP Bank fiókjaiban vagy az OTP Bank honlapján közzétett vonatkozó Üzletszabályzatokból és Hirdetményekből.
Vedd fel a kapcsolatot a hirdetővel
+36 30 204 0
Vedd fel a kapcsolatot a hirdetővel
+36 30 204 0
UI_KIT.CHARACTER_COUNTER__COMPONENT.REMAINING_SPACE__SR_ONLYUI_KIT.CHARACTER_COUNTER__COMPONENT.MAXIMUM_CHARACTER__SR_ONLY
Hasonló eladó ingatlanok Igalon
Frissítve: 11 napja

20
45 M Ft 236 842 Ft/m²
Eladó családi ház, Igal, Szent István utca

Feltöltve: 10 hónapja

18
49,9 M Ft 499 000 Ft/m²
Eladó családi ház, Igal
Frissítve: 10 napja

20
49,9 M Ft 344 138 Ft/m²
Eladó családi ház, Igal


Fedezd fel a
hasonló házakat!Még további házak Somogy megyében 49,9 M Ft körüli értékben
Tovább a hirdetésekhez Frissítve: 11 napja

13
48,9 M Ft 425 217 Ft/m²
Eladó családi ház, Igal

Frissítve: 6 hónapja

9
46,9 M Ft 177 652 Ft/m²
Eladó családi ház, Igal
Frissítve: 11 napja

20
49,9 M Ft 479 808 Ft/m²
Eladó ikerház, Igal


Töltsd fel hirdetésed ingyenesen!
Egyszerű