

+18 fotó
Hirdetéskód: 8744482
Referenciaszám: M311495-5060199
Feltöltve: ma
Isaszeg eladó családi ház 4 szobás: 73 millió Ft
73 millió Ft
314 655 Ft/m²
232 m²
600 m²
4 szoba
Eladó Ház, Isaszeg
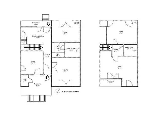
Eladó 4 szobás 232 négyzetméteres családi ház Isaszegen! Csendes utcában, rendezett szomszédokkal! Ez a négy szobás tágas otthon téglából épült és öt éve a teljes tetőhéjazat felújítása megtörtént. Fűtése gázkazánnal és vegyes tüzelésű kazánnal is megoldható. Pár éve jó minőségű thermo üvegezésű borovi fenyő ablakokra cserélték a régieket. Az épület teljes egészében alá van pincézve aminek külön bejárata van, a garázs is itt kapott helyet de a kertben is van egy 6 méter * 4 méteres garázs is. Ajánlom családosoknak és több generációs családoknak is. Az épületben akár saját vállalkozás indítására is van hely mivel a pincében iroda és raktár is könnyen kialakítható! A házat könnyen két lakrészre lehet osztani az emeleten egy konyha kialakításához minden adott. Jöjjön el és tekintse meg ezt a remek lehetőséget! Hívjon és egyeztessünk időpontot a megtekintéshez! Kérdéseire az esti órákban és hétvégén is szívesen válaszolok! Ha az új ingatlana megvásárlásához a jelenlegi ingatlanát el kell adnia, abban is szívesen segítünk.
Teljes körű ügyintézéssel állunk az eladók és a vevők rendelkezésére! A kínálatunkból választott ingatlan finanszírozásához minősített fogyasztóbarát, piaci és kedvezményes hitel- és lízingkonstrukciókat kínálunk (Otthon Start Hitelprogram, lakásvásárlási hitel, szabad felhasználású hitel, babaváró hitel, CSOK Plusz intézés, Otthonfelújítási Támogatás, egyéb felújítási hitelek). Az adásvételi szerződés megkötéséhez igény szerint megbízható ügyvédi közreműködést biztosítunk, és segítséget nyújtunk az adásvételhez kapcsolódó egyéb ügyek intézéséhez.
Tulajdonságok
Családi ház
Átlagos
Gázkazán
1987
Nem adta meg a hirdető
Vedd fel a kapcsolatot a hirdetővel
Szilveszter Noémi OTPip - Szigetszentmiklós Tököli út 19.B - OTP Ingatlanpont Iroda Az iroda összes hirdetése
+36 30 439 4
Hitelkalkulátor
Második évtől
314 159 Ft A 13. hónaptól
7,99%
Végig fix Futamidő: 20 év Banki visszahívás
Az OTP Bank munkatársai a neked megfelelő napszakban veszik fel veled a kapcsolatot. A becslés a hirdető által megadott adatokon alapul. A jelen tájékoztatás nem minősül ajánlattételnek és nem teljes körű, az egyes feltételek a hitelbírálat eredményétől függően változhatnak. Kérjük, a részletekről tájékozódj az OTP Bank fiókjaiban vagy az OTP Bank honlapján közzétett vonatkozó Üzletszabályzatokból és Hirdetményekből.
Vedd fel a kapcsolatot a hirdetővel
Szilveszter Noémi OTPip - Szigetszentmiklós Tököli út 19.B - OTP Ingatlanpont Iroda Az iroda összes hirdetése
+36 30 439 4
Vedd fel a kapcsolatot a hirdetővel
Szilveszter Noémi OTPip - Szigetszentmiklós Tököli út 19.B - OTP Ingatlanpont Iroda Az iroda összes hirdetése
+36 30 439 4
UI_KIT.CHARACTER_COUNTER__COMPONENT.REMAINING_SPACE__SR_ONLYUI_KIT.CHARACTER_COUNTER__COMPONENT.MAXIMUM_CHARACTER__SR_ONLY
Hasonló eladó ingatlanok Isaszegen
Frissítve: 19 napja

4
68 M Ft 693 878 Ft/m²
Eladó ikerház, Isaszeg

Frissítve: 19 napja

4
78 M Ft 804 124 Ft/m²
Eladó ikerház, Isaszeg

Frissítve: ma

4
78 M Ft 804 124 Ft/m²
Eladó ikerház, Isaszeg


Fedezd fel a
hasonló házakat!Még további házak Isaszegen 73 M Ft körüli értékben
Tovább a hirdetésekhez Feltöltve: 1 éve

17
74,9 M Ft 380 203 Ft/m²
Eladó családi ház, Isaszeg
Frissítve: 22 napja

18
80 M Ft 551 724 Ft/m²
Eladó családi ház, Isaszeg
Frissítve: 22 napja

20
74,9 M Ft 380 203 Ft/m²
Eladó családi ház, Isaszeg

Töltsd fel hirdetésed ingyenesen!
Egyszerű