

+3 fotó
Hirdetéskód: 8490612
Referenciaszám: 380879
Frissítve: 12 napja
Iszkaszentgyörgy eladó családi ház 4 szobás: 82 millió Ft
82 millió Ft
901 099 Ft/m²
91 m²
630 m²
4 szoba
Eladó családi ház Iszkaszentgyörgy, 91nm, 82.000.000Ft - Márványkert szomszédságában
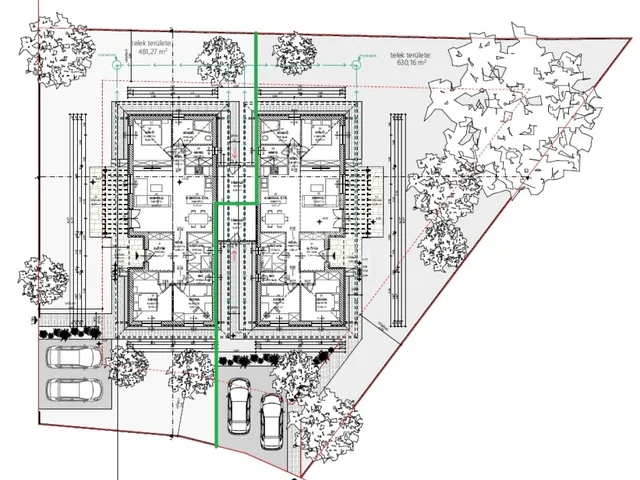
Vh-004398 Iszkaszentgyörgyön, a Márványkert szomszédságában, csendes, kedvelt részen egyszintes, igényes és egyedi kivitelezésű nappali+ 3 szobás, újépítésű ikerházi egység saját 630m2-es telken eladó!
Az ingatlan könnyen megközelíthető, a környék tömegközlekedése jó, a településen minden elérhető, ami a kényelmes életvitelhez elengedhetetlen ( orvosi rendelő, gyógyszertár, posta, bölcsőde, óvoda, polgármesteri hivatal, boltok, piac, fitness-terem, tanösvény, Kastély Park, sportpálya, szépészeti szolgáltatások, kutyaiskola és panzió, cukrászdák).
A ház tágas, világos, körbe napozott, a mai kor igényszintjének megfelelő, minőségi anyagokból, korszerű dizájnnal és kialakítással készül.
Műszaki paraméterek:
- a homlokzati falak 30 cm vastag téglafalazatúak 10cm vastag szigeteléssel, a válaszfalak szintén tégla szerkezetűek
- a lábazat 5cm vastag XPS szigetelést kap
- a tetőszerkezet szeglemezes, könnyített födém készül Isocell cellulóz szigeteléssel, Bramac beton cserép fedéssel. ( a padlástér felár ellenében opcionálisan rakodhatóvá/járhatóvá tehető)
- A fűtést hőszivattyú biztosítja padlófűtéses hőleadással, melynek köszönhetően a ház H-tarifás kedvezményben részesül fűtési szezonban.
- a nyílászárók műanyagok, 6 kamrás, 3 rétegű üvegezésűek
A ház hideg,-meleg burkolatjai, szaniterei, nyílászárók színei, homlokzati színei előre megadott ár kategóriákon belül választhatók.
(Egyéb speciális munkák kivitelezésének igénye (pl: klíma, szellőző rendszer, központi porszívó, kandalló, kémény kialakítás, víztisztító kiállás stb.) külön egyeztetést igényel)
(részletes műszaki leírás igényével kapcsolatban, kérem írjon üzenetet)
Elosztását tekintve 91m2 hasznos alapterületű
Előszoba, amerikai konyhás nappali kamrával, 3db 9m2-es hálószoba, vendég wc és háztartási helyiség kerül kialakításra. A házhoz kapcsolódik egy fedett terasz, egy 16,5m2-es terasz és egy 8,4m2-es kerti tároló is.
Fontosabb paraméterek:
● 2025 év végi átadás
● 630 m2 önálló telekterület
● Nappali + 3 hálószoba
● H tarifás villany
● Hőszivattyú
● Alacsony rezsiköltség
Megbízható és tapasztalt ingatlanfejlesztő, kivitelező jegyzi a ház építését, számtalan referenciaépülettel rendelkezik. A vásárláshoz, a jelenleg aktuális családok „újépítésű” otthonteremtésére vonatkozó összes támogatás igénybe vehető.
AZ INGATLAN ALKALMAS 5%-os ÁFA, CSOK, CSOK HITEL IGÉNYBEVÉTELÉRE!
Eladási irányár: 82 M Ft
Az ingatlan adottságainak, fekvésének köszönhetően alkalmas továbbá vállalkozásra, üzleti vagy befektetési célra, hiszen akár bérbe adható, vagy üzlet, szolgáltatás (pl: orvosi rendelő, fodrász, kozmetika, irodai tevékenység,(Csendes tevékenység engedélyezett).
Ha felkeltette érdeklődését, hívjon bizalommal, (hétvégén is) éljen ingyenes, személyre szabott hitelügyintézés szolgáltatásunkkal. Segítünk továbbá adásvételhez szükséges ügyvédi közreműködésben, energetikai tanúsítvány, valamint értékbecslés elkészítésében.
For English information please send a message. ...TOVÁBBI, TÖBBEZRES INGATLAN KÍNÁLAT: www.gdn-ingatlan.hu - GDN azonosító: 380879
Tulajdonságok
Családi ház
1
Jó állapotú
Hőszivattyú
2025
17 m²
A+
Vedd fel a kapcsolatot a hirdetővel
+36 20 583 7
Hitelkalkulátor
Második évtől
352 891 Ft A 13. hónaptól
7,99%
Végig fix Futamidő: 20 év Banki visszahívás
Az OTP Bank munkatársai a neked megfelelő napszakban veszik fel veled a kapcsolatot. A becslés a hirdető által megadott adatokon alapul. A jelen tájékoztatás nem minősül ajánlattételnek és nem teljes körű, az egyes feltételek a hitelbírálat eredményétől függően változhatnak. Kérjük, a részletekről tájékozódj az OTP Bank fiókjaiban vagy az OTP Bank honlapján közzétett vonatkozó Üzletszabályzatokból és Hirdetményekből.
Vedd fel a kapcsolatot a hirdetővel
+36 20 583 7
Vedd fel a kapcsolatot a hirdetővel
+36 20 583 7
UI_KIT.CHARACTER_COUNTER__COMPONENT.REMAINING_SPACE__SR_ONLYUI_KIT.CHARACTER_COUNTER__COMPONENT.MAXIMUM_CHARACTER__SR_ONLY
Hasonló eladó ingatlanok Iszkaszentgyörgyön
Frissítve: 6 napja

5
86,5 M Ft 709 016 Ft/m²
Eladó családi ház, Iszkaszentgyörgy

Frissítve: 6 napja

5
84,9 M Ft 719 492 Ft/m²
Eladó családi ház, Iszkaszentgyörgy

Frissítve: 12 napja

5
79,9 M Ft 878 022 Ft/m²
Eladó ikerház, Iszkaszentgyörgy


Fedezd fel a
hasonló házakat!Még további házak Fejér megyében 82 M Ft körüli értékben
Tovább a hirdetésekhez Frissítve: 12 napja

6
82 M Ft 796 117 Ft/m²
Eladó családi ház, Iszkaszentgyörgy

Frissítve: 12 napja

6
79,9 M Ft 775 728 Ft/m²
Eladó ikerház, Iszkaszentgyörgy

Frissítve: 1 napja

9
79,9 M Ft 707 080 Ft/m²
Eladó ikerház, Iszkaszentgyörgy

Töltsd fel hirdetésed ingyenesen!
Egyszerű