+17 fotó
Hirdetéskód: 8820004
Referenciaszám: M318072-5103118
Frissítve: 28 napja
Iváncsa eladó családi ház 2+1 fél szobás: 32,5 millió Ft
32,5 millió Ft
451 389 Ft/m²
72 m²
902 m²
2+1 fél szoba
Eladó Ház, Iváncsa
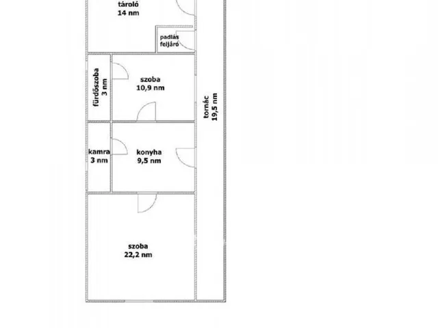
Fejér megye, Iváncsa 72 nm-es családi ház eladó. A tehermentes ingatlan a vasútállomástól 2 km-re, egy 902 nm-es bekerített telken helyezkedik el békés, csendes övezetben. Az összkomfortos házban nappali, szoba, félszoba, konyha, kamra, fürdőszoba található, valamint tartozik hozzá tornác és két különálló melléképület. A vegyes falazatú ingatlanban cserélték a nyílászárókat műanyagra, valamint a villanyvezetékeket is. A fűtésről gázkonvektorok gondoskodnak. A ház riasztóval felszerelt. Az ingatlan gyorsan birtokba vehető és költözhető. Teljes körű ügyintézésben segítjük ügyfeleinket díjtalanul: Falusi CSOK, CSOK igénylése, kedvezményes hitel mobil bankári szolgáltatással, adásvétel teljes lebonyolításával. Bővebb információkért, kérem keressen bizalommal, akár hétvégén is.
Tulajdonságok
1950
E
Vedd fel a kapcsolatot a hirdetővel
Darnai Henrietta OTPip - Székesfehérvár Palotai út 8 - OTP Ingatlanpont Iroda Az iroda összes hirdetése
+36 20 487 4
Hitelkalkulátor
Második évtől
139 865 Ft A 13. hónaptól
7,99%
Végig fix Futamidő: 20 év Banki visszahívás
Az OTP Bank munkatársai a neked megfelelő napszakban veszik fel veled a kapcsolatot. A becslés a hirdető által megadott adatokon alapul. A jelen tájékoztatás nem minősül ajánlattételnek és nem teljes körű, az egyes feltételek a hitelbírálat eredményétől függően változhatnak. Kérjük, a részletekről tájékozódj az OTP Bank fiókjaiban vagy az OTP Bank honlapján közzétett vonatkozó Üzletszabályzatokból és Hirdetményekből.
Vedd fel a kapcsolatot a hirdetővel
Darnai Henrietta OTPip - Székesfehérvár Palotai út 8 - OTP Ingatlanpont Iroda Az iroda összes hirdetése
+36 20 487 4
Vedd fel a kapcsolatot a hirdetővel
Darnai Henrietta OTPip - Székesfehérvár Palotai út 8 - OTP Ingatlanpont Iroda Az iroda összes hirdetése
+36 20 487 4
UI_KIT.CHARACTER_COUNTER__COMPONENT.ACTUAL_CHARACTER__SR_ONLY UI_KIT.CHARACTER_COUNTER__COMPONENT.MAXIMUM_CHARACTER__SR_ONLY
Hasonló eladó ingatlanok Iváncsán
Frissítve: 13 napja
20
33 M Ft 825 000 Ft/m²
Eladó családi ház, Iváncsa, Hunyadi utca

Frissítve: 21 napja
20
32,5 M Ft 451 389 Ft/m²
Eladó családi ház, Iváncsa

Frissítve: ma
20
32,5 M Ft 451 389 Ft/m²
Eladó családi ház, Iváncsa


Fedezd fel a
hasonló házakat!Még további házak Fejér megyében 32,5 M Ft körüli értékben
Tovább a hirdetésekhez Frissítve: 6 napja
20
32,5 M Ft 451 389 Ft/m²
Eladó családi ház, Iváncsa

Frissítve: 3 hónapja
17
29,5 M Ft 491 667 Ft/m²
Eladó családi ház, Bicske, Galagonyás II. dűlő út

Frissítve: 17 napja
16
35 M Ft 777 778 Ft/m²
Eladó családi ház, Vál

