+16 fotó
Hirdetéskód: 8959196
Feltöltve: 2 napja
Jánoshalma eladó családi ház 3 szobás: 6 millió Ft
Figyelem! Az eladó euróban kívánja értékesíteni vagy kiadni az ingatlant. Ezért az általa megadott árat 385 Ft/EUR árfolyamon váltottuk át. Az ingatlan tényleges vételára a forintban bemutatott hirdetési ártól az aktuális árfolyam következtében eltérhet. A forintban megadott összeg tájékoztató jellegű.
6 millió Ft
46 154 Ft/m²
15 584 Euro
119,88 Euro/m²
130 m²
810 m²
3 szoba
Bács-Kiskun vármegye Jánoshalma településen felújítandó 130 m²-es családi ház eladó.
Bács-Kiskun vármegye Jánoshalma településen felújítandó 130 m²-es családi ház eladó.
Ingatlan részletei:
Típus:Családi ház
Telek mérete:810m²
Elhelyezkedés: Bács-Kiskun vármegye, Jánoshalma
Alapterület: 130 m²
Szobák száma: 3
Konyha: 1
Fürdőszobák száma: 0
Falazat: Tégla és vályog
Ingatlan leírása:
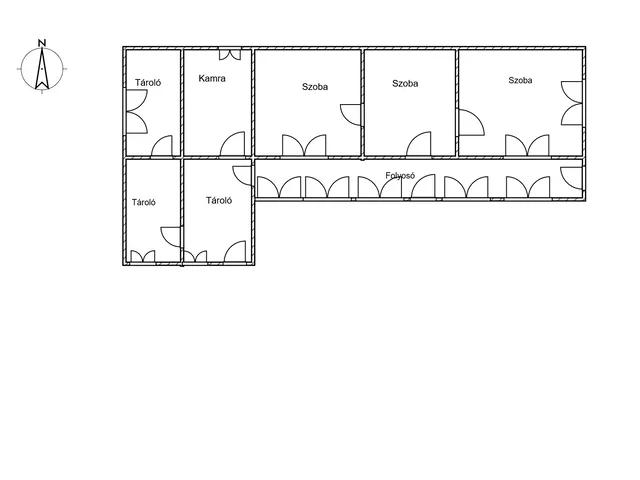
Az ingatlan Jánoshalma központhoz közeli részén fekszik. Az ingatlan felújítandó. A házban három szoba konyha, kamrák ,folyosó került kialakításra. Padlóburkolatok cementlap. illetve föld és pozdorja. Az ingatlanban a villanyhálózat lett kiépítve, de régi.A külső nyílászárok régi fa.
Külön épület:
Szoba: 21 m²
Szoba: 15,5 m²
Szoba: 21
Konyha v kamra:20 m²
Kamra:14,4 m²
Tároló:5m²
Tároló:12,6 m²
Folyosó:20m²
Összesen:130m²
A terület be van kerítve.
Fűtés és meleg víz:
Az ingatlan fűtését kályha , víz nincs csak az udvaron.
ár: 6.000.000 Ft
Ha érdekli az ingatlan, kérjük, lépjen kapcsolatba velünk az alábbi elérhetőségeken:
Elérhetőség:
Telefonszám: +36305090434
Email:juhaszk.ingatlan@gmail.com
· Whatsapp https://wa.me/36305090434 itt ingyenesen tud hívni illetve üzenetet küldeni!
Az ingatlan megtekintéséhez és további
Tulajdonságok
Családi ház
1
Felújítandó
Nincs fűtés
1943
G
Vedd fel a kapcsolatot a hirdetővel
Juhász Ingatlan Az iroda összes hirdetése
+36 30 509 0
Vedd fel a kapcsolatot a hirdetővel
Juhász Ingatlan Az iroda összes hirdetése
+36 30 509 0
Vedd fel a kapcsolatot a hirdetővel
Juhász Ingatlan Az iroda összes hirdetése
+36 30 509 0
UI_KIT.CHARACTER_COUNTER__COMPONENT.ACTUAL_CHARACTER__SR_ONLY UI_KIT.CHARACTER_COUNTER__COMPONENT.MAXIMUM_CHARACTER__SR_ONLY
Hasonló eladó ingatlanok Jánoshalmán
Frissítve: 4 hónapja
7
5,9 M Ft 60 825 Ft/m²
Eladó családi ház, Jánoshalma
Frissítve: 1 napja
12
5,5 M Ft 76 177 Ft/m²
Eladó családi ház, Jánoshalma, Kinizsi Pál utca

Frissítve: 1 napja
12
5,5 M Ft 76 389 Ft/m²
Eladó családi ház, Jánoshalma


Fedezd fel a
hasonló házakat!Még további házak Bács-Kiskun megyében 15 584 Euro körüli értékben
Tovább a hirdetésekhez Frissítve: 7 napja
1
6 M Ft 63 158 Ft/m²
Eladó családi ház, Jánoshalma
Frissítve: 1 napja
10
6,59 M Ft 82 375 Ft/m²
Eladó családi ház, Tataháza

Frissítve: 12 napja
11
6,49 M Ft 40 563 Ft/m²
Eladó családi ház, Kunbaja

