

+15 fotó
Hirdetéskód: 8727415
Referenciaszám: M311111-5047209
Frissítve: ma
Jászfényszaru eladó családi ház 3 szobás: 25 millió Ft
25 millió Ft
297 619 Ft/m²
84 m²
2131 m²
3 szoba
Eladó Ház, Jászfényszaru
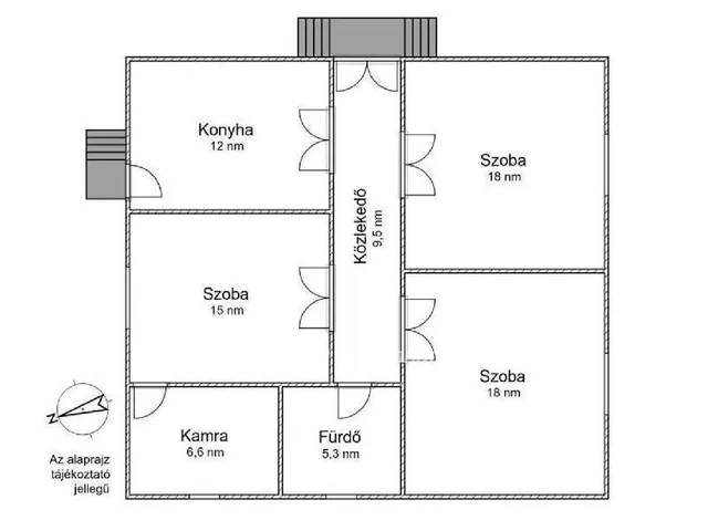
Jász-Nagykun-Szolnok vármegyében, Jászfényszaru óvárosi részén eladó egy 3 szobás, 84 nm-es családi ház, amelyhez egy tágas, 2131 nm-es telek tartozik. Az ingatlan 1970-ben épült beton alapra, tégla falazattal, a tető cserép borítást kapott. A ház klasszikus kockaház jellegű, két bejárattal rendelkezik, minden közművel ellátott, ugyanakkor felújítást igényel, így remek lehetőséget kínál új tulajdonosa számára, hogy saját ízlése és igényei szerint alakítsa ki otthonát. A telek mérete és adottságai bőven biztosítanak helyet kertészkedéshez, pihenőkert kialakításához vagy akár további építmények elhelyezéséhez is.
Jászfényszaru város Önkormányzata a letelepedni kívánó fiatalokat a feltételek megléte esetén otthonteremtési támogatással segíti, így az ingatlan fiatal családok számára különösen vonzó választás lehet. Ingatlanvásárláshoz az OTP Bank kedvező hitelkonstrukcióit ajánlom. Kérem, hívjon bizalommal, készséggel tájékoztatom a részletekről.
Referencia szám: M311111
Tulajdonságok
Családi ház
Felújítandó
Gáz (konvektor)
1970
Nem adta meg a hirdető
Vedd fel a kapcsolatot a hirdetővel
+36 20 329 3
Hitelkalkulátor
Második évtől
107 589 Ft A 13. hónaptól
7,99%
Végig fix Futamidő: 20 év Banki visszahívás
Az OTP Bank munkatársai a neked megfelelő napszakban veszik fel veled a kapcsolatot. A becslés a hirdető által megadott adatokon alapul. A jelen tájékoztatás nem minősül ajánlattételnek és nem teljes körű, az egyes feltételek a hitelbírálat eredményétől függően változhatnak. Kérjük, a részletekről tájékozódj az OTP Bank fiókjaiban vagy az OTP Bank honlapján közzétett vonatkozó Üzletszabályzatokból és Hirdetményekből.
Vedd fel a kapcsolatot a hirdetővel
+36 20 329 3
Vedd fel a kapcsolatot a hirdetővel
+36 20 329 3
UI_KIT.CHARACTER_COUNTER__COMPONENT.REMAINING_SPACE__SR_ONLYUI_KIT.CHARACTER_COUNTER__COMPONENT.MAXIMUM_CHARACTER__SR_ONLY
Hasonló eladó ingatlanok Jászfényszarun
Frissítve: 14 napja

18
26 M Ft 232 143 Ft/m²
Eladó családi ház, Jászfényszaru

Frissítve: 14 napja

18
26 M Ft 232 143 Ft/m²
Eladó családi ház, Jászfényszaru

Frissítve: ma

18
26 M Ft 232 143 Ft/m²
Eladó családi ház, Jászfényszaru


Fedezd fel a
hasonló házakat!Még további házak Jászfényszarun 25 M Ft körüli értékben
Tovább a hirdetésekhez Frissítve: 14 napja

18
26 M Ft 232 143 Ft/m²
Eladó családi ház, Jászfényszaru

Frissítve: 14 napja

18
26 M Ft 232 143 Ft/m²
Eladó családi ház, Jászfényszaru

Frissítve: ma

18
26 M Ft 232 143 Ft/m²
Eladó családi ház, Jászfényszaru


Töltsd fel hirdetésed ingyenesen!
Egyszerű