+14 fotó
Hirdetéskód: 8790158
Referenciaszám: M316986-5086657
Frissítve: 4 napja
Jászfényszaru eladó családi ház 3 szobás: 63 millió Ft
63 millió Ft
286 364 Ft/m²
220 m²
840 m²
3 szoba
Eladó Ház, Jászfényszaru
Jász-Nagykun-Szolnok vármegye, Jászfényszaru - kétszintes, részben felújított családi ház eladó!
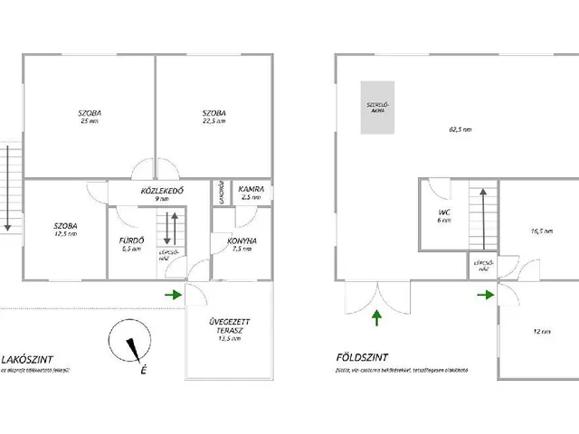
Jászfényszaru központi, mégis csendes utcájában kínálok megvételre egy 110 nm-es, kétszintes, tégla építésű családi házat, amely rengeteg lehetőséget rejt magában. Az emeleti lakótérben három kényelmes szoba, konyha, kamra, fürdőszoba, közlekedő és egy hangulatos fedett terasz található. A földszinti rész jelenleg műhelyként és garázsként funkcionál, azonban kialakításának köszönhetően könnyedén átalakítható külön bejáratú lakássá, irodává vagy akár üzlethelyiséggé is.
Az ingatlan 10 cm-es hőszigeteléssel rendelkezik, tetőszerkezete cserép borítású. Az elmúlt években több ponton megújult: új tetőszerkezetet, külső szigetelést és modern nyílászárókat kapott, továbbá új villamos hálózat, ipari áram és térkövezett udvar is növeli értékét. A fűtésről gázkazán, vegyestüzelésű kazán és hűtő-fűtő klíma gondoskodik, így az otthon minden évszakban kellemes hőmérsékletet biztosít.
Ez a ház tökéletes választás mindazoknak, akik tágas, jól alakítható otthont keresnek nyugodt környezetben, ugyanakkor céges hasznosításra is kiválóan alkalmas.
Ingatlanvásárláshoz az OTP Bank kedvező hitelkonstrukcióit ajánlom.
Kérem, hívjon bizalommal - készséggel tájékoztatom a részletekről!
Érd: Tamus Angéla +36 70 601 2099
Referencia szám: M316986
Tulajdonságok
Családi ház
Jó állapotú
Gázkazán
1980
Nem adta meg a hirdető
Vedd fel a kapcsolatot a hirdetővel
Tamus Angéla Erzsébet OTPip - Jászberény Gyöngyösi út 36 - OTP Ingatlanpont Iroda Az iroda összes hirdetése
+36 70 601 2
Hitelkalkulátor
Második évtől
271 123 Ft A 13. hónaptól
7,99%
Végig fix Futamidő: 20 év Banki visszahívás
Az OTP Bank munkatársai a neked megfelelő napszakban veszik fel veled a kapcsolatot. A becslés a hirdető által megadott adatokon alapul. A jelen tájékoztatás nem minősül ajánlattételnek és nem teljes körű, az egyes feltételek a hitelbírálat eredményétől függően változhatnak. Kérjük, a részletekről tájékozódj az OTP Bank fiókjaiban vagy az OTP Bank honlapján közzétett vonatkozó Üzletszabályzatokból és Hirdetményekből.
Vedd fel a kapcsolatot a hirdetővel
Tamus Angéla Erzsébet OTPip - Jászberény Gyöngyösi út 36 - OTP Ingatlanpont Iroda Az iroda összes hirdetése
+36 70 601 2
Vedd fel a kapcsolatot a hirdetővel
Tamus Angéla Erzsébet OTPip - Jászberény Gyöngyösi út 36 - OTP Ingatlanpont Iroda Az iroda összes hirdetése
+36 70 601 2
UI_KIT.CHARACTER_COUNTER__COMPONENT.ACTUAL_CHARACTER__SR_ONLY UI_KIT.CHARACTER_COUNTER__COMPONENT.MAXIMUM_CHARACTER__SR_ONLY
Hasonló eladó ingatlanok Jászfényszarun
Frissítve: 1 napja
13
63 M Ft
Eladó családi ház, Jászfényszaru
Frissítve: 4 napja
8
60 M Ft 545 455 Ft/m²
Eladó családi ház, Jászfényszaru

Frissítve: 4 napja
17
63 M Ft 572 728 Ft/m²
Eladó családi ház, Jászfényszaru


Fedezd fel a
hasonló házakat!Még további házak Jász-Nagykun-Szolnok megyében 63 M Ft körüli értékben
Tovább a hirdetésekhez Frissítve: 4 napja
5
60 M Ft 545 455 Ft/m²
Eladó családi ház, Jászfényszaru

Frissítve: 4 napja
17
63 M Ft 286 364 Ft/m²
Eladó családi ház, Jászfényszaru

Frissítve: 4 napja
17
64,9 M Ft 683 158 Ft/m²
Eladó családi ház, Jászfényszaru

