

+6 fotó
Hirdetéskód: 8741207
Feltöltve: ma
Kecskemét eladó családi ház 1+1 fél szobás: 39,9 millió Ft
39,9 millió Ft
997 500 Ft/m²
40 m²
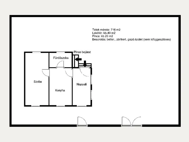
716 m²
1+1 fél szoba
Eladó szép kis házikó a Halasi úti hobbysoron!
Kecskemét kertvárosi részén, a Halasi úti hobbysoron eladóvá vált egy teljes körűen felújított kis házikó.
Jellemzői:
- Telek mérete: 716 m2
- Összközműves
- Besorolása: belterület, zártkert, gazdasági épület
- Lakótér: br.40 m2 : nappali, konyha, fürdőszoba, hálószoba
- Pince: 20 m2
- Teljeskörűen felújított (2020/2021: cserélt nyílászárók, burkolatok, konyhabútor, fürdőszoba, vezetékek, fűtéskorszerűsítés)
- Szigetelés, új külső színezés a házon (2023)
Tulajdonságok
Családi ház
1
Felújított
Elektromos
Nem adta meg a hirdető
Vedd fel a kapcsolatot a hirdetővel
B.Berente Imre Az iroda összes hirdetése
+36 70 418 0
Hitelkalkulátor
Második évtől
171 711 Ft A 13. hónaptól
7,99%
Végig fix Futamidő: 20 év Banki visszahívás
Az OTP Bank munkatársai a neked megfelelő napszakban veszik fel veled a kapcsolatot. A becslés a hirdető által megadott adatokon alapul. A jelen tájékoztatás nem minősül ajánlattételnek és nem teljes körű, az egyes feltételek a hitelbírálat eredményétől függően változhatnak. Kérjük, a részletekről tájékozódj az OTP Bank fiókjaiban vagy az OTP Bank honlapján közzétett vonatkozó Üzletszabályzatokból és Hirdetményekből.
Vedd fel a kapcsolatot a hirdetővel
B.Berente Imre Az iroda összes hirdetése
+36 70 418 0
Vedd fel a kapcsolatot a hirdetővel
B.Berente Imre Az iroda összes hirdetése
+36 70 418 0
UI_KIT.CHARACTER_COUNTER__COMPONENT.REMAINING_SPACE__SR_ONLYUI_KIT.CHARACTER_COUNTER__COMPONENT.MAXIMUM_CHARACTER__SR_ONLY
Hasonló eladó ingatlanok Halasi úti kiskertek városrészben
Frissítve: 11 napja

9
37 M Ft 616 667 Ft/m²
Eladó családi ház, Kecskemét, Halasi úti kiskertek
Feltöltve: 11 napja

7
39,9 M Ft 997 500 Ft/m²
Eladó családi ház, Kecskemét, Halasi úti kiskertek
Frissítve: 11 napja

9
39,55 M Ft 527 333 Ft/m²
Eladó családi ház, Kecskemét, Katonatelep

Fedezd fel a
hasonló házakat!Még további házak Kecskeméten 39,9 M Ft körüli értékben
Tovább a hirdetésekhez Frissítve: 11 napja

14
43,3 M Ft 618 571 Ft/m²
Eladó ikerház, Kecskemét, Kecskemét-Hetényegyháza
Frissítve: 11 napja

10
43,2 M Ft 664 615 Ft/m²
Eladó családi ház, Kecskemét, Felsőszéktó
Frissítve: 16 napja

11
CSOKRA ALKALMAS A+ --os családi ház V.ÜTEM
43 M Ft 43 000 000 Ft/m²
Eladó családi ház, Kecskemét, Ladánybenei út


Töltsd fel hirdetésed ingyenesen!
Egyszerű