+17 fotó
Hirdetéskód: 8781991
Referenciaszám: 389153
Feltöltve: 8 napja
Kecskemét eladó családi ház 3 szobás: 55 millió Ft
55 millió Ft
523 810 Ft/m²
105 m²
900 m²
3 szoba
Eladó családi ház Kecskemét, 105nm, 55.000.000Ft - Boróka lakópark közelében
Eladó önálló családi ház Kecskeméten!
Kecskeméten a Boróka lakópark közelében kínálunk megvételre egy 105 nm alapterületű, 1972-ben salaktéglából épült, önálló családi házat 900 nm-es telken.
Az ingatlan közepes állapotú, tágas, nagy terekkel rendelkezik.
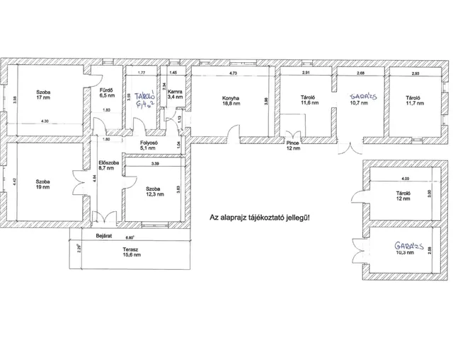
Beosztása:
- előszoba 8,7 mm,
- szoba 17 nm,
- szoba 19 nm,
- szoba 12,3 nm,
- konyha 18,8 nm,
- kamra 3,4 nm,
- fűrdőszoba+ WC 6,5 nm,
- folyosó 5,1 nm,
- tároló 6,4 nm,
_------------------------------
Összesen: 97,2 nm
- fedett terasz 15,6 nm,
- pince 12,0 nm,
- tároló 11,6 nm,
- tároló 11,7 nm,
- tároló 12,0 nm,
- garázs 10,7 nm,
- garázs 10,3 nm,
Közművek tekintetében, víz, villany a házba bekötve, gázcsonk az udvarban, csatorna nincs.
Az ingatlan ügyvédi megosztással kerül értékesítésre, akár nagyobb telekkel is megvásárolható. Teljes telek terület 2502 nm.
Amivel segítjük az Ön ingatlanvásárlását:
- ingyenes hitelügyintézés,
- jogi háttér,
- földhivatali ügyintézés,
- energetikai tanúsítvány,
- a vevő számára az ingatlanközvetítés ingyenes.
Irodánk 30 éves szakmai tapasztalattal áll ügyfelei rendelkezésére!
Várom szíves megkeresését! ...TOVÁBBI, TÖBBEZRES INGATLAN KÍNÁLAT: www.gdn-ingatlan.hu - GDN azonosító: 389153
Tulajdonságok
Családi ház
1
Átlagos
Egyéb
1972
16 m²
Nem adta meg a hirdető
Vedd fel a kapcsolatot a hirdetővel
+36 70 269 5
Hitelkalkulátor
Második évtől
236 695 Ft A 13. hónaptól
7,99%
Végig fix Futamidő: 20 év Banki visszahívás
Az OTP Bank munkatársai a neked megfelelő napszakban veszik fel veled a kapcsolatot. A becslés a hirdető által megadott adatokon alapul. A jelen tájékoztatás nem minősül ajánlattételnek és nem teljes körű, az egyes feltételek a hitelbírálat eredményétől függően változhatnak. Kérjük, a részletekről tájékozódj az OTP Bank fiókjaiban vagy az OTP Bank honlapján közzétett vonatkozó Üzletszabályzatokból és Hirdetményekből.
Vedd fel a kapcsolatot a hirdetővel
+36 70 269 5
Vedd fel a kapcsolatot a hirdetővel
+36 70 269 5
UI_KIT.CHARACTER_COUNTER__COMPONENT.REMAINING_SPACE__SR_ONLYUI_KIT.CHARACTER_COUNTER__COMPONENT.MAXIMUM_CHARACTER__SR_ONLY
Hasonló eladó ingatlanok Homokbánya városrészben
Frissítve: 1 éve
9
Green Lakópark
55 M Ft 604 396 Ft/m²
Eladó családi ház, Kecskemét, Alsószéktó, Alsószéktó 138.
Frissítve: 26 napja
20
Rezsi nélküli, tégla építésű, prémium családi házak, akár 6 hónap alatt - Ár-garancia / Kötbér-garancia / Előfinanszírozás
54,5 M Ft 545 000 Ft/m²
Eladó családi ház, Kecskemét, Vacsi köz

Frissítve: 26 napja
13
94,91
50,3 M Ft 50 300 000 Ft/m²
Eladó családi ház, Kecskemét, Tatár sor


Fedezd fel a
hasonló házakat!Még további házak Kecskeméten 55 M Ft körüli értékben
Tovább a hirdetésekhez Feltöltve: 1 éve
3
54,67 M Ft 600 769 Ft/m²
Eladó családi ház, Kecskemét
Frissítve: 3 napja
14
59,1 M Ft 557 547 Ft/m²
Eladó családi ház, Kecskemét, Katonatelep
Frissítve: 26 napja
10
49,9 M Ft 380 916 Ft/m²
Eladó családi ház, Kecskemét, Csongrádi út


Töltsd fel hirdetésed ingyenesen!
Egyszerű
