+3 fotó
Hirdetéskód: 8941198
Referenciaszám: 3620657-5182402
Feltöltve: ma
Kecskemét eladó családi ház 4 szobás: 89,9 millió Ft
89,9 millió Ft
864 423 Ft/m²
104 m²
846 m²
4 szoba
2026 júniusi átadással - Kadafalva határán, új családi ház eladó!
Kadafalvahatárán, a Határ út közvetlen közelében, új építésű családi házak szomszédságában, 846 m2-es telken épülő, nappali + 3 szobás családi ház eladó - CSOK, 3 %-os hitel is igénybevehető !!!!!!!
Jellemzők:
telekméret: 846 m2, egyszerű drótkerítéssel bekerített,
közmű: villany, gáz és városi víz,
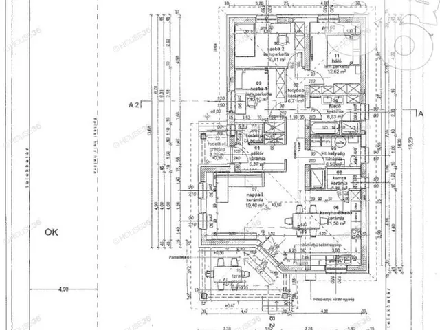
Lakótér mérete: bruttó 149,52 m2 – nettó 104,17 m2
Fedett előtér és a terasz mérete együttesen: 18,38 m2
Helyiségek:
előtér (5,37 m2), folyosó (6,71m2), WC (1,8 m2),2 db fürdő (4 m2 + 6,83 m2), Ht helyiség (6,58m2),
konyha + étkező (21,56m2), nappali (19,4m2), kamra (2,39m2), szoba1(10,1 m2), szoba2(10,81m2), szoba3 (12,68m2)
Burkolatok: kerámia és laminált parketta
Tetőszerkezet: ácsolt
Falazat: síkra csiszolt Wienerberger tégla, 15 cm-es homlokzat szigeteléssel
Fűtés: gázcirkó
EXTRA: 5 Kw-os napelem
Nyílászárók: fehér műanyag, 3 rétegű üveggel
Konyhabútor: adás-vétel esetén,megegyezés szerint
Fedett kocsibeálló fagerendából ácsolt / ár tartalmazza /
Vételár nem tartalmazza a kertrendezést, Átadás várható időpontja: 2026. JÚNIUS
Figyelem az adatlap megbízótól kapott adatok alapján készült, pontosságáért felelősséget vállalni nem tudunk !
A HOUSE36 kínálatában található összes ingatlannal kapcsolatban tudok felvilágosítást nyújtani !
Hívjon bizalommal !
Az iroda legfrissebb, aktuális kínálatát a HOUSE36 saját weboldalán találja!
Referencia szám: 3620657
Tulajdonságok
Családi ház
Új építésű
Gázkazán
2025
A
Vedd fel a kapcsolatot a hirdetővel
+36 30 161 2
Hitelkalkulátor
Második évtől
386 889 Ft A 13. hónaptól
7,99% 8,49%
Végig fix Futamidő: 20 év Banki visszahívás
Az OTP Bank munkatársai a neked megfelelő napszakban veszik fel veled a kapcsolatot. A becslés a hirdető által megadott adatokon alapul. A jelen tájékoztatás nem minősül ajánlattételnek és nem teljes körű, az egyes feltételek a hitelbírálat eredményétől függően változhatnak. Kérjük, a részletekről tájékozódj az OTP Bank fiókjaiban vagy az OTP Bank honlapján közzétett vonatkozó Üzletszabályzatokból és Hirdetményekből.
Vedd fel a kapcsolatot a hirdetővel
+36 30 161 2
Vedd fel a kapcsolatot a hirdetővel
+36 30 161 2
UI_KIT.CHARACTER_COUNTER__COMPONENT.ACTUAL_CHARACTER__SR_ONLY UI_KIT.CHARACTER_COUNTER__COMPONENT.MAXIMUM_CHARACTER__SR_ONLY
Hasonló eladó ingatlanok Kadafalva városrészben
Frissítve: 29 napja
5
85,9 M Ft 913 830 Ft/m²
Eladó ikerház, Kecskemét, Kadafalva
Frissítve: 29 napja
4
89,9 M Ft 917 347 Ft/m²
Eladó ikerház, Kecskemét, Kadafalva
Frissítve: ma
3
81,6 M Ft 906 667 Ft/m²
Eladó családi ház, Kecskemét, Kadafalva

Fedezd fel a
hasonló házakat!Még további házak Kecskemét, Kadafalva városrészben 89,9 M Ft körüli értékben
Tovább a hirdetésekhez Frissítve: ma
16
91 M Ft 728 000 Ft/m²
Eladó családi ház, Kecskemét, Kadafalva

Frissítve: 1 napja
7
84,9 M Ft 854 039 Ft/m²
Eladó ikerház, Kecskemét, Kadafalva

Frissítve: 1 napja
7
89,9 M Ft 885 017 Ft/m²
Eladó ikerház, Kecskemét, Kadafalva

