+5 fotó
Hirdetéskód: 8849971
Referenciaszám: HZ028178-5123354
Feltöltve: 6 napja
Kecskemét eladó családi ház 4 szobás: 82,99 millió Ft
82,99 millió Ft
1 024 568 Ft/m²
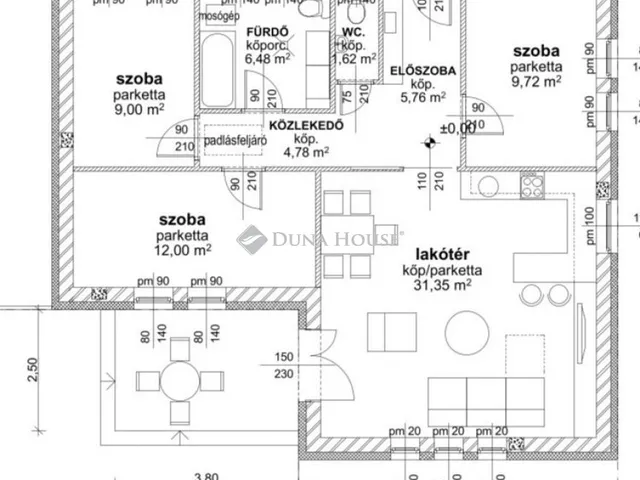
81 m²
506 m²
4 szoba
ÚJ ÉPÍTÉSŰ CSALÁDI HÁZ KATONATELEPEN
***Lakás helyett vegyen új építésű családi házat***
Kecskemét - Katonatelepen már megépült 81 m2-es , nappali+3 szobás családi ház bekerített, összközműves telken eladó!
Az ár tartalmazza a telek árát is!
Jellemzői:
- telek 500 m2 ( összközműves)
- lakótér 81 m2
- 10 m2 térkövezett terasz
- gáz-cirkó fűtés, Bosch 2300 kazánnal,
- padlófűtés
- 3 BOSCH hűtő-fűtő klíma
- Porotherm főfalak
- 10 cm-es tégla válaszfalak (belső)
- szeglemezes tető, 30 cm vtg.-ban befújt cellulóz szigetelés
- fekete beton cserép tetőfedés
- műanyag, Gelan tipusú bukó-nyíló nyílászárók (3 rétegű, 6 légkamrás),
- biztonsági bejárati ajtó
- redőny, szúnyogháló
- 15 cm EPS homlokzati hőszigetelés
- elektromos kapu
A ház cégtől eladó alkalmas CSOK+-ra, 3%-os hitelre is!!!
Azonnal költözhető! Hívjon ne maradjon le erről a remek lehetőségről!
82990000 Ft
LAKÁSELADÁS? HÍVJON!
Igény esetén hitel/banki finanszírozásban is segítséget nyújtunk! Bankfüggetlen hitelszakértőnk a legjobb piaci csomagot választja ki Önnek,
Zöldhitel, CSOK, babaváró hitel, áfa és illeték visszaigénylési lehetőségekről teljeskörű tájékoztatás.
+36-(20) 491-2889
uzsoras.eva@dh.hu
Referencia szám: HZ028178-ZE
Tulajdonságok
Családi ház
Új építésű
Gázkazán
2025
Nem adta meg a hirdető
Vedd fel a kapcsolatot a hirdetővel
+36 76 815 0
Hitelkalkulátor
Második évtől
357 151 Ft A 13. hónaptól
7,99% 8,49%
Végig fix Futamidő: 20 év Banki visszahívás
Az OTP Bank munkatársai a neked megfelelő napszakban veszik fel veled a kapcsolatot. A becslés a hirdető által megadott adatokon alapul. A jelen tájékoztatás nem minősül ajánlattételnek és nem teljes körű, az egyes feltételek a hitelbírálat eredményétől függően változhatnak. Kérjük, a részletekről tájékozódj az OTP Bank fiókjaiban vagy az OTP Bank honlapján közzétett vonatkozó Üzletszabályzatokból és Hirdetményekből.
Vedd fel a kapcsolatot a hirdetővel
+36 76 815 0
Vedd fel a kapcsolatot a hirdetővel
+36 76 815 0
UI_KIT.CHARACTER_COUNTER__COMPONENT.REMAINING_SPACE__SR_ONLYUI_KIT.CHARACTER_COUNTER__COMPONENT.MAXIMUM_CHARACTER__SR_ONLY
Hasonló eladó ingatlanok Katonatelep városrészben
Frissítve: 15 napja
20
89,9 M Ft 599 333 Ft/m²
Eladó családi ház, Kecskemét, Katonatelep

Frissítve: 1 napja
18
89,9 M Ft 599 333 Ft/m²
Eladó családi ház, Kecskemét, Katonatelep

Frissítve: ma
20
89,9 M Ft 599 333 Ft/m²
Eladó családi ház, Kecskemét, Katonatelep


Fedezd fel a
hasonló házakat!Még további házak Kecskeméten 82,99 M Ft körüli értékben
Tovább a hirdetésekhez Frissítve: 25 napja
15
75,5 M Ft 551 095 Ft/m²
Eladó családi ház, Kecskemét, Katonatelep
Frissítve: 3 hónapja
13
80,6 M Ft 995 062 Ft/m²
Eladó családi ház, Kecskemét, Katonatelep
Frissítve: 25 napja
13
82,9 M Ft 1 023 457 Ft/m²
Eladó családi ház, Kecskemét, Katonatelep
