

+2 fotó
Hirdetéskód: 8533599
Referenciaszám: 3619701-4933287
Frissítve: ma
Kecskemét eladó családi ház 4 szobás: 63,9 millió Ft
63,9 millió Ft
710 000 Ft/m²
90 m²
400 m²
4 szoba
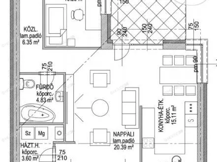
Új építésű nappali + 3 szobás ház eladó!
Kecskeméten,új építésű, nappali + 3 szobás családi háza legmodernebb technológiákkal,prémium anyagokkal!
Nettó 90 m² - tágas nappali + 3 szoba, ideális a családi élethez
400 m²-es telek - elegendő tér a pihenéshez és szórakozáshoz
Porotherm Wienerberger X-Therm tégla - kiemelkedő hőtartás a téli hónapokban
15 cm-es hőszigetelés - energiahatékony otthon, alacsony fenntartási költségek
Hőszivattyús fűtésrendszer - környezetbarát, gazdaságos megoldás
Padlófűtés - egyenletes meleg, maximális komfort
Prémium minőségű műanyag nyílászárók - hosszú távú megbízhatóság és biztonság
Kiváló hidegburkolatok - 9000 Ft/m²-ig, a legjobb minőség az árban
Szaniterek - akár 1 millió Ft értékben, a komplett fürdőszoba megoldás biztosított
kialakítható gépkocsi beálló vagy garázs
oldalhatáros beépítés
a tervezési költséget az ár tartalmazza, módosítások megoldhatók!
Építési idő:10-12 hónap
Árgarancia, Időgarancia, ingyenes hitelügyintézés
Képeinken referencia házat láthatnak.
Az iroda legfrissebb, aktuális kínálatát a HOUSE36 saját weboldalán találja!
Tulajdonságok
Családi ház
Új építésű
Egyéb
2025
Nem adta meg a hirdető
Vedd fel a kapcsolatot a hirdetővel
+36 30 341 3
Hitelkalkulátor
Második évtől
274 996 Ft A 13. hónaptól
7,99% 8,49%
Végig fix Futamidő: 20 év Banki visszahívás
Az OTP Bank munkatársai a neked megfelelő napszakban veszik fel veled a kapcsolatot. A becslés a hirdető által megadott adatokon alapul. A jelen tájékoztatás nem minősül ajánlattételnek és nem teljes körű, az egyes feltételek a hitelbírálat eredményétől függően változhatnak. Kérjük, a részletekről tájékozódj az OTP Bank fiókjaiban vagy az OTP Bank honlapján közzétett vonatkozó Üzletszabályzatokból és Hirdetményekből.
Vedd fel a kapcsolatot a hirdetővel
+36 30 341 3
Vedd fel a kapcsolatot a hirdetővel
+36 30 341 3
UI_KIT.CHARACTER_COUNTER__COMPONENT.REMAINING_SPACE__SR_ONLYUI_KIT.CHARACTER_COUNTER__COMPONENT.MAXIMUM_CHARACTER__SR_ONLY
Hasonló eladó ingatlanok Kecskeméten
Frissítve: 7 napja

8
64 M Ft 780 488 Ft/m²
Eladó családi ház, Kecskemét, Vacsiköz
Frissítve: 7 napja

12
62,5 M Ft 679 348 Ft/m²
Eladó családi ház, Kecskemét, Irsai Olivér utca
Frissítve: 12 napja

20
Rezsi nélküli, tégla építésű, prémium családi házak, akár 6 hónap alatt - Ár-garancia / Kötbér-garancia / Előfinanszírozás
62,32 M Ft 515 000 Ft/m²
Eladó családi ház, Kecskemét, Vacsi köz


Fedezd fel a
hasonló házakat!Még további házak Kecskeméten 63,9 M Ft körüli értékben
Tovább a hirdetésekhez Frissítve: 7 napja

6
58 M Ft 580 000 Ft/m²
Eladó egyéb ház, Kecskemét
Frissítve: 12 napja

18
Rezsi nélküli, tégla építésű, prémium családi házak, akár 6 hónap alatt - Ár-garancia / Kötbér-garancia / Előfinanszírozás
62,54 M Ft 530 000 Ft/m²
Eladó családi ház, Kecskemét, Vacsi köz

Frissítve: 12 napja

20
Rezsi nélküli, tégla építésű, prémium családi házak, akár 6 hónap alatt - Ár-garancia / Kötbér-garancia / Előfinanszírozás
64,89 M Ft 515 000 Ft/m²
Eladó családi ház, Kecskemét, Vacsi köz


Töltsd fel hirdetésed ingyenesen!
Egyszerű