

+6 fotó
Hirdetéskód: 8726722
Referenciaszám: 3620553-5048868
Frissítve: ma
Kecskemét eladó családi ház 2 szobás: 39,9 millió Ft
39,9 millió Ft
997 500 Ft/m²
40 m²
716 m²
2 szoba
Eladó szép kis házikó a Halasi úti hobbysoron!
Kecskemét kertvárosi részén, a Halasi úti hobbysoron eladóvá vált egy teljes körűen felújított kis házikó.
Jellemzői:
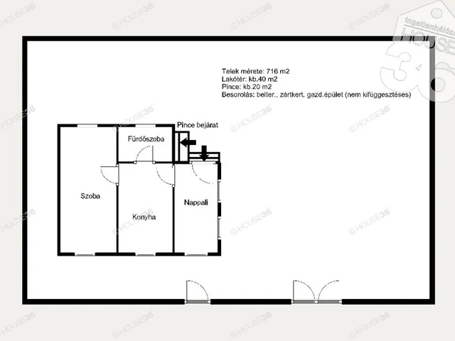
- Telek mérete: 716 m2
- Összközműves
- Besorolása: belterület, zártkert, gazdasági épület
- Lakótér: br.40 m2 : nappali, konyha, fürdőszoba, hálószoba
- Pince: 20 m2
- Teljeskörűen felújított (2020/2021: cserélt nyílászárók, burkolatok, konyhabútor, fürdőszoba, vezetékek, fűtéskorszerűsítés)
- Szigetelés, új külső színezés a házon (2023)
Figyelem az adatlap megbízónktól kapott adatok alapján készült, pontosságáért felelősséget nem tudunk vállalni!
Szolgáltatásaink Kereső ügyfeleink számára INGYENESEK!
Amennyiben eladó-kiadó ingatlana van vagy finanszírozási megoldást keres , hívjon, megtaláljuk a legjobb lehetőséget Önnek!
A HOUSE36 kínálatában található összes ingatlannal kapcsolatban tudok felvilágosítást nyújtani!
Hívjon bizalommal!
Az iroda legfrissebb, aktuális kínálatát a HOUSE36 saját weboldalán találja!
Tulajdonságok
Családi ház
Jó állapotú
Egyéb
1975
Nem adta meg a hirdető
Vedd fel a kapcsolatot a hirdetővel
+36 30 724 8
Hitelkalkulátor
Második évtől
171 711 Ft A 13. hónaptól
7,99%
Végig fix Futamidő: 20 év Banki visszahívás
Az OTP Bank munkatársai a neked megfelelő napszakban veszik fel veled a kapcsolatot. A becslés a hirdető által megadott adatokon alapul. A jelen tájékoztatás nem minősül ajánlattételnek és nem teljes körű, az egyes feltételek a hitelbírálat eredményétől függően változhatnak. Kérjük, a részletekről tájékozódj az OTP Bank fiókjaiban vagy az OTP Bank honlapján közzétett vonatkozó Üzletszabályzatokból és Hirdetményekből.
Vedd fel a kapcsolatot a hirdetővel
+36 30 724 8
Vedd fel a kapcsolatot a hirdetővel
+36 30 724 8
UI_KIT.CHARACTER_COUNTER__COMPONENT.REMAINING_SPACE__SR_ONLYUI_KIT.CHARACTER_COUNTER__COMPONENT.MAXIMUM_CHARACTER__SR_ONLY
Hasonló eladó ingatlanok Kecskeméten
Frissítve: 20 napja

11
42 M Ft 233 333 Ft/m²
Eladó családi ház, Kecskemét

Frissítve: 22 napja

11
CSOKRA ALKALMAS A+ --os családi ház V.ÜTEM
43 M Ft 43 000 000 Ft/m²
Eladó családi ház, Kecskemét, Ladánybenei út

Frissítve: 22 napja

10
39,9 M Ft 362 727 Ft/m²
Eladó családi ház, Kecskemét


Fedezd fel a
hasonló házakat!Még további házak Kecskeméten 39,9 M Ft körüli értékben
Tovább a hirdetésekhez Frissítve: 17 napja

14
43,3 M Ft 618 571 Ft/m²
Eladó ikerház, Kecskemét, Kecskemét-Hetényegyháza
Frissítve: 22 napja

16
71
39 M Ft 39 000 000 Ft/m²
Eladó családi ház, Kecskemét, Tatár sor

Frissítve: 20 napja

14
71-S
42,6 M Ft 600 000 Ft/m²
Eladó családi ház, Kecskemét, Tatár sor


Töltsd fel hirdetésed ingyenesen!
Egyszerű