+3 fotó
Hirdetéskód: 8870582
Referenciaszám: HZ017644-5130875
Frissítve: ma
Kóka eladó családi ház 4 szobás: 69,9 millió Ft
69,9 millió Ft
720 619 Ft/m²
97 m²
700 m²
4 szoba
Eladó ház, Kóka
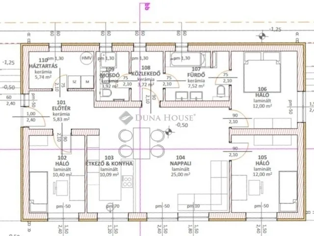
Kókán eladó egy 2026- ban épülő 3 szoba, nappalis ház 700m2-es telken.
A ház terve, és minden dokumentációja megtekinthető, ezen kívül referencia munkát is tudunk mutatni.
A házat a cég megrendelés esetén 20% befizetés esetén azonnal elkezdi építeni és maximum 10 hónap alatt kulcsrakészen átadásra kerül.
Vasalt beton alappal , porotherm 30-as téglából kerül megépítésre.
Koszorú monolit vasbeton, a födém fagerendás, gipszkarton álmennyezettel.
3 rétegű fehér műanyag nyílászárók kerülnek beépítésre, a belső ajtók MDF szerkezetűek .
A ház elrendezése kiváló, 3 szoba-amerikai konyhás nappalis kialakítású.
2 fürdőszoba, egyik tusolós másik kádas.
A cég a burkolatokat 4000ft/m2-ig állja, afelett a vevő terhe.
Szaniterek közép kategóriáig az ár részét képezik, prémium vagy egyedi igény esetén megbeszélés szerint a vevőt terheli. Ez összegben azt jelenti hogy 300.000 ft -ig a kivitelező állja a szanitereket, afeletti rész a vevő terhe.
A fűtést hőszivattyú biztosítja padlófűtéssel, puffertartályos rendszerleválasztással.
Amennyiben új építésű ingatlanban gondolkodik Budapest közelében ne habozzon, beszéljük át a részleteket!
Ügyvédi hátteret és a hitel teljes lebonyolítását végző szakértőt is biztosítunk!
Érd: Giczi Andrea Tel: 06-20-917-8625 E-mail: giczi.andrea@dh.hu
Referencia szám: HZ017644
Tulajdonságok
Családi ház
Új építésű
Hőszivattyú
2026
Nem adta meg a hirdető
Vedd fel a kapcsolatot a hirdetővel
+36 29 769 7
Hitelkalkulátor
Második évtől
300 818 Ft A 13. hónaptól
7,99% 8,49%
Végig fix Futamidő: 20 év Banki visszahívás
Az OTP Bank munkatársai a neked megfelelő napszakban veszik fel veled a kapcsolatot. A becslés a hirdető által megadott adatokon alapul. A jelen tájékoztatás nem minősül ajánlattételnek és nem teljes körű, az egyes feltételek a hitelbírálat eredményétől függően változhatnak. Kérjük, a részletekről tájékozódj az OTP Bank fiókjaiban vagy az OTP Bank honlapján közzétett vonatkozó Üzletszabályzatokból és Hirdetményekből.
Vedd fel a kapcsolatot a hirdetővel
+36 29 769 7
Vedd fel a kapcsolatot a hirdetővel
+36 29 769 7
UI_KIT.CHARACTER_COUNTER__COMPONENT.ACTUAL_CHARACTER__SR_ONLY UI_KIT.CHARACTER_COUNTER__COMPONENT.MAXIMUM_CHARACTER__SR_ONLY
Hasonló eladó ingatlanok Kókán
Frissítve: 27 napja
17
64 M Ft 320 000 Ft/m²
Eladó családi ház, Kóka

Frissítve: 29 napja
16
65 M Ft 384 616 Ft/m²
Eladó családi ház, Kóka

Frissítve: 27 napja
5
63,9 M Ft 625 000 Ft/m²
Eladó ikerház, Kóka


Fedezd fel a
hasonló házakat!Még további házak Kókán 69,9 M Ft körüli értékben
Tovább a hirdetésekhez Frissítve: ma
5
63,9 M Ft 626 471 Ft/m²
Eladó ikerház, Kóka

Frissítve: 27 napja
20
67 M Ft 509 196 Ft/m²
Eladó családi ház, Kóka

Frissítve: 3 hónapja
20
67 M Ft 511 450 Ft/m²
Eladó családi ház, Kóka

