+10 fotó
Hirdetéskód: 8929946
Referenciaszám: HZ016127-5174152
Frissítve: ma
Kóka eladó családi ház 4 szobás: 61,99 millió Ft
61,99 millió Ft
696 517 Ft/m²
89 m²
512 m²
4 szoba
Eladó ház, Kóka
Új építésű házak között, nyugodt békés utcában épül az ingatlan.
920m2 sarok telek , ügyvédi megosztóval ketté választva, teljesen privát elkerített telekkel.
tetőtér beépítéses lakás:
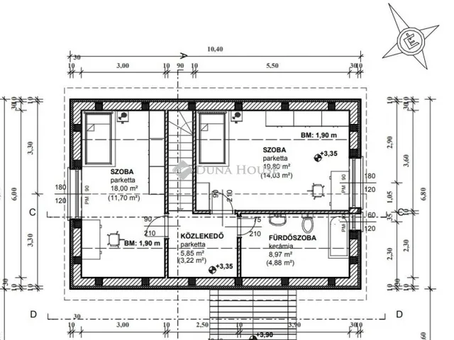
- nettó hasznos alapterület: 89,53 (az emeleten csak 1,8 m felett mérve, tehát valójában nagyobb)
- 30 cm PTH teherhordó tégla falazat 10 cm grafitos dryvit szigeteléssel
- monoblokkos hőszivattyús padlófűtési rendszer
- split klíma előkészítés egy végpontra
- szigetelt fafödém
- beton vagy kerámia cserépfedés
Burkolatok 5000ft/m2
Burkolatok:
- előtér, konyha, HTH-WC, fürdőszoba mázas kerámia járólap 33x33 cm méretig, fürdőszobában 2,0 m-ig fali csempe, konyhapult felett fali csempe, szoba, nappali laminált lap (5000ft/m2-ig állja a kivitelező)
Glettelés, festés:
- bandázsolás, glettelés, két réteg diszperziós falfestés fehér színre, látszó fa felületeken lazúrozás
Nyílászárók:
- műanyag homlokzati nyílászárók 3 réteg üvegezéssel min 76 mm vtg szerkezettel, bejárati ajtó MABISZ minősítéssel, beltéri ajtók CPL kivitelben utólag szerelhető tokkal fém kilinccsel
gépészet:
- monoblokkos levegő-víz hőszivattyús fűtés és meleg víz termelés, padlófűtés programozható WIFI-s termosztáttal, fürdőben 1 db elektromos fűtésű törölközőszárító radiátor, Alföldi vagy KOLO szaniterek, MOFÉM csaptelepek,
170 cm akril vagy lemezkád, álló- alsó kifolyású WC-k falon kívüli tartállyal, klíma előkészítés, (zuhanyfülke opcióban rendelhető)
A szanitereket a cég 500.000 ft-ig állja.
Elektromos szerelések:
- 3x16A elektromos áram bekötés légkábellel, kapcsolók, aljzatok Asfora vagy hasonló minőségben, 0,75-s MBCU vezetékek védőcsőben vezetve, internet részére egy végpontra csövezés
Helyiségenként 3 dugaj és 1 kapcsoló van az árban.
Külső munkák:
- közműbekötések, 150 cm drótkerítés betonoszlopokkal, simított beton járda bejáratnál, kb.: 16 m2 simított beton terasz, gk beálló zúzott kőből murva terítéssel.
A cég 25 éves makulátlan múlttal rendelkező, leellenőrizhető. Számtalan referencia munka!
Minden hitelre alkalmas az ingatlan!
- kivitelezés kezdete: 2026.1. negyedév
- kivitelezés befejezése : 2026.4. negyedév
Bármi kérdése van hívjon bizalommal!
Érd: Giczi Andrea Tel: 06-20-917-8625 E-mail: giczi.andrea@dh.hu
Referencia szám: HZ016127
Tulajdonságok
Családi ház
Új építésű
Hőszivattyú
2026
Nem adta meg a hirdető
Vedd fel a kapcsolatot a hirdetővel
+36 29 769 7
Hitelkalkulátor
Második évtől
266 777 Ft A 13. hónaptól
7,99% 8,49%
Végig fix Futamidő: 20 év Banki visszahívás
Az OTP Bank munkatársai a neked megfelelő napszakban veszik fel veled a kapcsolatot. A becslés a hirdető által megadott adatokon alapul. A jelen tájékoztatás nem minősül ajánlattételnek és nem teljes körű, az egyes feltételek a hitelbírálat eredményétől függően változhatnak. Kérjük, a részletekről tájékozódj az OTP Bank fiókjaiban vagy az OTP Bank honlapján közzétett vonatkozó Üzletszabályzatokból és Hirdetményekből.
Vedd fel a kapcsolatot a hirdetővel
+36 29 769 7
Vedd fel a kapcsolatot a hirdetővel
+36 29 769 7
UI_KIT.CHARACTER_COUNTER__COMPONENT.ACTUAL_CHARACTER__SR_ONLY UI_KIT.CHARACTER_COUNTER__COMPONENT.MAXIMUM_CHARACTER__SR_ONLY
Hasonló eladó ingatlanok Kókán
Frissítve: 29 napja
16
65 M Ft 384 616 Ft/m²
Eladó családi ház, Kóka

Frissítve: 27 napja
17
64 M Ft 320 000 Ft/m²
Eladó családi ház, Kóka

Frissítve: 27 napja
5
63,9 M Ft 625 000 Ft/m²
Eladó ikerház, Kóka


Fedezd fel a
hasonló házakat!Még további házak Kókán 61,99 M Ft körüli értékben
Tovább a hirdetésekhez Frissítve: ma
5
63,9 M Ft 626 471 Ft/m²
Eladó ikerház, Kóka

Frissítve: 27 napja
20
67 M Ft 509 196 Ft/m²
Eladó családi ház, Kóka

Frissítve: 3 hónapja
20
67 M Ft 511 450 Ft/m²
Eladó családi ház, Kóka

