+18 fotó
Hirdetéskód: 8758003
Referenciaszám: M313043-5067813
Feltöltve: 4 napja
Kőröstetétlen eladó családi ház 2+1 fél szobás: 17,9 millió Ft
17,9 millió Ft
192 473 Ft/m²
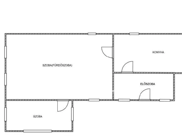
93 m²
1609 m²
2+1 fél szoba
Eladó Ház, Kőröstetétlen
Pest Vármegyében, Kőröstetétlenenen eladó egy 93 nm-es ingatlan, melyet kedved szerint csinosíthatsz. A ház felújítása megkezdődött, a villany vezeték átalakításának köszönhetően 3*16A került kialakításra. A régi csövek, vezetékek és válaszfalak bontása megtörtént. A gáz a telken belül található. A régi csövek, vezetékek és válaszfalak bontása megtörtént. Az ingatlan tehermentes, azonnal birtokba vehető. Kőröstetétlenről könnyen megközelíthető Budapest és környéke, így ideális lehet azok számára, akik a város közelségében szeretnének élni, ugyanakkor élvezni a vidéki élet nyugalmát. A lakosság barátságos és összetartó, ami kellemes és támogató környezetet teremt a lakók számára. Igény esetén ügyvédi közreműködést is biztosítunk az adásvételhez.
Tulajdonságok
Családi ház
Felújítandó
Egyéb
1960
Nem adta meg a hirdető
Vedd fel a kapcsolatot a hirdetővel
Dr. Győri Csabáné OTPip - Szolnok Szapáry utca 23 - OTP Ingatlanpont Iroda Az iroda összes hirdetése
+36 30 998 8
Hitelkalkulátor
Második évtől
77 033 Ft A 13. hónaptól
7,99%
Végig fix Futamidő: 20 év Banki visszahívás
Az OTP Bank munkatársai a neked megfelelő napszakban veszik fel veled a kapcsolatot. A becslés a hirdető által megadott adatokon alapul. A jelen tájékoztatás nem minősül ajánlattételnek és nem teljes körű, az egyes feltételek a hitelbírálat eredményétől függően változhatnak. Kérjük, a részletekről tájékozódj az OTP Bank fiókjaiban vagy az OTP Bank honlapján közzétett vonatkozó Üzletszabályzatokból és Hirdetményekből.
Vedd fel a kapcsolatot a hirdetővel
Dr. Győri Csabáné OTPip - Szolnok Szapáry utca 23 - OTP Ingatlanpont Iroda Az iroda összes hirdetése
+36 30 998 8
Vedd fel a kapcsolatot a hirdetővel
Dr. Győri Csabáné OTPip - Szolnok Szapáry utca 23 - OTP Ingatlanpont Iroda Az iroda összes hirdetése
+36 30 998 8
UI_KIT.CHARACTER_COUNTER__COMPONENT.REMAINING_SPACE__SR_ONLYUI_KIT.CHARACTER_COUNTER__COMPONENT.MAXIMUM_CHARACTER__SR_ONLY
Hasonló eladó ingatlanok Kőröstetétlenben
Frissítve: 1 hónapja
1
17,9 M Ft 223 750 Ft/m²
Eladó családi ház, Kőröstetétlen, Széchenyi u. 1
Frissítve: 4 napja
20
17,9 M Ft 192 474 Ft/m²
Eladó családi ház, Kőröstetétlen

Frissítve: 7 napja
20
17,9 M Ft 192 473 Ft/m²
Eladó családi ház, Kőröstetétlen


Fedezd fel a
hasonló házakat!Még további házak Pest megyében 17,9 M Ft körüli értékben
Tovább a hirdetésekhez Frissítve: 3 napja
15
18,9 M Ft 359 316 Ft/m²
Eladó családi ház, Szentmártonkáta

Frissítve: 6 napja
8
17,9 M Ft 372 917 Ft/m²
Eladó családi ház, Sülysáp

Frissítve: 3 napja
7
16,98 M Ft 199 765 Ft/m²
Eladó családi ház, Galgahévíz


Töltsd fel hirdetésed ingyenesen!
Egyszerű