+17 fotó
Hirdetéskód: 8933619
Referenciaszám: M307699-4994691
Frissítve: 10 napja
Kunágota eladó családi ház 4 szobás: 13,2 millió Ft
13,2 millió Ft
114,8 ezer Ft/m²
115 m²
2089 m²
4 szoba
Eladó Ház, Kunágota
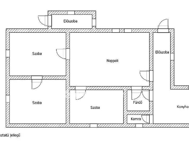
Tágas otthon Kunágotán nagy telekkel, tehermentes, azonnal költözhető! Ha vidéki nyugalomra vágyik, ez az ingatlan Önre vár! Eladásra kínálunk, Békés vármegyébe, egy 115 nm-es családi házat Kunágotán, csendes utcában, a központhoz közel. A tágas, 2089 nm-es telek számos lehetőséget rejt magában. A melléképületben nyárikonyha, több tárolóhelyiség, garázs, valamint állattartásra kialakított disznóólak és tyúkólak, disznóvágásra alkalmas terek találhatóak. A telek másik felében, gyümölcsfák vannak, kertészkedésre, gazdálkodásra tökéletesen alkalmas. A ház három szobával, nappalival, konyhával, fürdőszobával, kamrával és két előszobával rendelkezik, így ideális lehet nagyobb családok számára is. A mindennapok kényelméről gázkazános fűtés, bojleres meleg víz és klíma gondoskodik, így télen-nyáron kellemes hőmérséklet várja. Az ingatlan költözhető állapotú, csupán egy tisztasági festés után máris új élet költözhet a falak közé. Ráadásul tehermentes és hitelezhető, így akár azonnal belevághat új otthona megteremtésébe. Ha Ön is érzi, hogy ez lehet az a hely, ahol igazán otthonra találhat, hívjon bizalommal! Az OTP Ingatlanpont a banki háttérrel eladóink, és vevőink igényeit teljeskörűen ki tudja szolgálni, az eladástól a vevői finanszírozásig és az ingatlan birtokbaadásáig. Hitel igénylés esetén akár egyedi kamatkedvezménnyel, jogosultság esetén az állami támogatásokhoz kapcsolódó felvilágosítással, teljeskörű pénzügyi tanácsadással és ügyintézéssel állunk ügyfeleink rendelkezésére. A pénzügyi tanácsadás és ügyintézői szolgáltatásunk díjmentes. ***VÁLASSZUK KI EGYÜTT AZ ÖNNEK LEGMEGFELELŐBB AJÁNLATOT! BANKI SORBAN ÁLLÁS NÉLKÜL! ***
Az energetikai tanúsítvány készítése folyamatban van, amint rendelkezésre áll, úgy azzal a hirdetés frissítésre kerül.
Referencia szám: M307699-ZE
Tulajdonságok
Családi ház
Átlagos
Gázkazán
1950
Nem adta meg a hirdető
Vedd fel a kapcsolatot a hirdetővel

+36 30 732 8
Hitelkalkulátor
Második évtől
56 807 Ft A 13. hónaptól
7,99%
Végig fix Futamidő: 20 év Banki visszahívás
Az OTP Bank munkatársai a neked megfelelő napszakban veszik fel veled a kapcsolatot. A becslés a hirdető által megadott adatokon alapul. A jelen tájékoztatás nem minősül ajánlattételnek és nem teljes körű, az egyes feltételek a hitelbírálat eredményétől függően változhatnak. Kérjük, a részletekről tájékozódj az OTP Bank fiókjaiban vagy az OTP Bank honlapján közzétett vonatkozó Üzletszabályzatokból és Hirdetményekből.
Vedd fel a kapcsolatot a hirdetővel

+36 30 732 8
Vedd fel a kapcsolatot a hirdetővel

+36 30 732 8
UI_KIT.CHARACTER_COUNTER__COMPONENT.ACTUAL_CHARACTER__SR_ONLY UI_KIT.CHARACTER_COUNTER__COMPONENT.MAXIMUM_CHARACTER__SR_ONLY
Hasonló eladó ingatlanok Kunágotán
Frissítve: 10 napja
20
13,2 millió Ft 114,8 ezer Ft/m²
Eladó családi ház, Kunágota

Frissítve: 1 hónapja
18
14,5 millió Ft 127,2 ezer Ft/m²
Eladó családi ház, Kunágota
Frissítve: 10 napja
20
12 millió Ft 35,3 ezer Ft/m²
Eladó családi ház, Kötegyán

Fedezd fel a
hasonló házakat!Még további házak Békés megyében 13,2 M Ft körüli értékben
Tovább a hirdetésekhez Frissítve: 10 napja
20
12 millió Ft 146,3 ezer Ft/m²
Eladó családi ház, Mezőkovácsháza
Frissítve: 1 hónapja
19
14 millió Ft 128,8 ezer Ft/m²
Eladó családi ház, Füzesgyarmat

Frissítve: 9 hónapja
12
12,9 millió Ft 129 ezer Ft/m²
Eladó családi ház, Kétegyháza
