

 +11 fotó 
Hirdetéskód: 8442927
Referenciaszám: 3619348-4871282
 Frissítve: ma 
Lajosmizse eladó családi ház 4 szobás: 59,49 millió Ft
 59,49 millió Ft 
 347 895 Ft/m² 
 171 m²  
 726 m²  
 4 szoba 
Befektetésnek is kitűnő ingatlan eladó !
 Eladó Lajosmizsei családi ház!
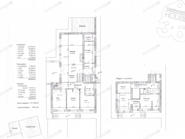
171 m2-es, 2024-ben részben felújított családi eladó Lajosmizse központjához közel, 726 m2-es telken.
Az ingatlanból akár 3 különálló lakás is kialakítható!
Főbb jellemzők:
	Kialakítás: három szoba, nappali, konyha, kamra, fürdőszoba és külön WC. A szobák szinteltolásos elrendezésűek.
	Fűtés: gázkazán és épített kandalló biztosítja a meleget
	Szigetelés: 5 cm részleges homlokzati, és 15 cm részleges födém szigetelés.
	Nyílászárók: műanyag ablakok redőnnyel és szúnyoghálóval (kivéve az alagsorban, ahol fa nyílászárók maradtak).
	Extrák: utcafronti garázs, udvari kocsibeálló 2 autónak, szaletli az épület végében, valamint melléképületek.
	Szuterén: az ingatlan alatt található egy 50 m2-es szuterén, amely korábban orvosi rendelőként szolgált - remek lehetőség vállalkozás indítására vagy tárolásra!
	Villamos hálózat: háromfázisú áram
Az ingatlan 300 m-re található a városközponttól, iskola 50 m-re, bolt 200 m-re, buszmegálló 300 m-re.
Figyelem, az adatlap kapott adatok alapján készült, pontosságáért felelősséget nem tudunk vállalni.
A tulajdonos kérésére az ingatlan bemutatása egy személyes konzultáció után történik, ahol részletes tájékoztatást kaphat az ingatlan paramétereiről és egyéb kényelmi szolgáltatásairól.
Amennyiben vásárlásához el kell adnia saját ingatlanát, szívesen segítek, forduljon hozzám bizalommal!
Az iroda legfrissebb, aktuális kínálatát a HOUSE36 saját weboldalán találja! 
Tulajdonságok
Családi ház
Jó állapotú
Gázkazán
1970
Nem adta meg a hirdető
Vedd fel a kapcsolatot a hirdetővel
 +36 70 645 0 
Hitelkalkulátor
 Második évtől 
 256 018 Ft  A 13. hónaptól 
 7,99% 
 Végig fix  Futamidő: 20 év Banki visszahívás
Az OTP Bank munkatársai a neked megfelelő napszakban veszik fel veled a kapcsolatot. A becslés a hirdető által megadott adatokon alapul. A jelen tájékoztatás nem minősül ajánlattételnek és nem teljes körű, az egyes feltételek a hitelbírálat eredményétől függően változhatnak. Kérjük, a részletekről tájékozódj az OTP Bank fiókjaiban vagy az OTP Bank honlapján közzétett vonatkozó Üzletszabályzatokból és Hirdetményekből. 
Vedd fel a kapcsolatot a hirdetővel
 +36 70 645 0 
Vedd fel a kapcsolatot a hirdetővel
 +36 70 645 0 
UI_KIT.CHARACTER_COUNTER__COMPONENT.REMAINING_SPACE__SR_ONLYUI_KIT.CHARACTER_COUNTER__COMPONENT.MAXIMUM_CHARACTER__SR_ONLY
Hasonló eladó ingatlanok Lajosmizsén
 Frissítve: 8 napja 

 11 
 54,9 M Ft  422 308 Ft/m² 
 Eladó családi ház, Lajosmizse 

 Frissítve: 3 hónapja 

 14 
 59,45 M Ft  396 333 Ft/m² 
 Eladó családi ház, Lajosmizse 
 Frissítve: 8 napja 

 15 
 65 M Ft  424 837 Ft/m² 
 Eladó családi ház, Lajosmizse 


Fedezd fel a 
hasonló házakat!Még további házak Lajosmizsén 59,49 M Ft körüli értékben
 Tovább a hirdetésekhez  Frissítve: 1 napja 

 15 
 65 M Ft  424 837 Ft/m² 
 Eladó családi ház, Lajosmizse 

 Frissítve: 7 napja 

 20 
 59,49 M Ft  331 735 Ft/m² 
 Eladó családi ház, Lajosmizse 

 Frissítve: ma 

 20 
 59,49 M Ft  332 346 Ft/m² 
 Eladó családi ház, Lajosmizse 


Töltsd fel hirdetésed ingyenesen!
Egyszerű 
