+14 fotó
Hirdetéskód: 8902540
Referenciaszám: M323194-5157082
Frissítve: 4 napja
Lepsény eladó családi ház 2 szobás: 72 millió Ft
72 millió Ft
857 143 Ft/m²
84 m²
2130 m²
2 szoba
Eladó Ház, Lepsény
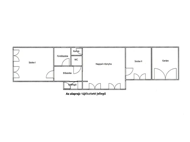
Eladó Fejér vármegyében, Lepsény központjában egy 82 nm-es, napfényes, felújított családi ház egy 2130 nm-es tágas telken. A ház praktikus elrendezésű: 2 külön nyíló szoba, tágas nappali-konyha és fürdőszoba. A nagy ablakoknak köszönhetően minden helyiség világos, barátságos hangulatú.
A műszaki tartalom kiemelkedő: új tető és szigetelés, napelemes rendszer az alacsony rezsiért, valamint többféle fűtési lehetőség. A telek számos lehetőséget rejt: kertészkedés, önellátó gazdálkodás, pihenőkert vagy akár további bővítés.
Lepsény jó közlekedésű település: az M7-es autópálya és a 7-es főút révén könnyen elérhető Székesfehérvár, Siófok és Budapest (kb. 1 óra). A környéken óvoda, iskola, boltok és orvosi ellátás biztosítja a kényelmes mindennapokat.
Ajánlott: családoknak nagy kerttel, nyugalmat keresőknek, gazdálkodásban gondolkodóknak, illetve befektetőknek.
Ne hagyja ki! További információért és megtekintésért keressen bizalommal!
Tulajdonságok
Családi ház
Felújított
Elektromos
1960
Nem adta meg a hirdető
Vedd fel a kapcsolatot a hirdetővel
+36 30 508 0
Hitelkalkulátor
Második évtől
309 855 Ft A 13. hónaptól
7,99%
Végig fix Futamidő: 20 év Banki visszahívás
Az OTP Bank munkatársai a neked megfelelő napszakban veszik fel veled a kapcsolatot. A becslés a hirdető által megadott adatokon alapul. A jelen tájékoztatás nem minősül ajánlattételnek és nem teljes körű, az egyes feltételek a hitelbírálat eredményétől függően változhatnak. Kérjük, a részletekről tájékozódj az OTP Bank fiókjaiban vagy az OTP Bank honlapján közzétett vonatkozó Üzletszabályzatokból és Hirdetményekből.
Vedd fel a kapcsolatot a hirdetővel
+36 30 508 0
Vedd fel a kapcsolatot a hirdetővel
+36 30 508 0
UI_KIT.CHARACTER_COUNTER__COMPONENT.ACTUAL_CHARACTER__SR_ONLY UI_KIT.CHARACTER_COUNTER__COMPONENT.MAXIMUM_CHARACTER__SR_ONLY
Hasonló eladó ingatlanok Lepsényen
Frissítve: 3 napja
20
64,9 M Ft 319 704 Ft/m²
Eladó családi ház, Lepsény, Róka sétány
Frissítve: 2 hónapja
1
67 M Ft 670 000 Ft/m²
Eladó családi ház, Lepsény
Frissítve: 4 napja
15
73,6 M Ft 981 334 Ft/m²
Eladó sorház, Lepsény


Fedezd fel a
hasonló házakat!Még további házak Lepsényen 72 M Ft körüli értékben
Tovább a hirdetésekhez Frissítve: 1 napja
15
73,6 M Ft 981 333 Ft/m²
Eladó sorház, Lepsény

Frissítve: 4 napja
15
73,6 M Ft 981 333 Ft/m²
Eladó sorház, Lepsény

Frissítve: 1 napja
15
73,6 M Ft 981 333 Ft/m²
Eladó sorház, Lepsény

